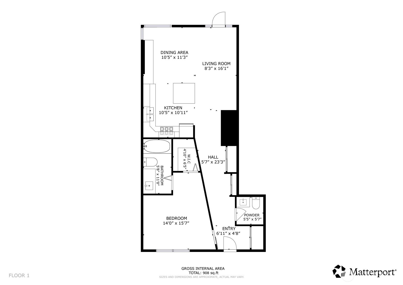
Welcome to the coveted "The Roberson". Secured Grand Lobby Entrance features local Art displays. 5th floor 1 bedroom, 1.5 baths unit lives like a 2 bdrm w/built in Murphy bed & pull down multiple use table/desk. Great room concept with over $70K in upgrades & renovations from 2022-2024 include: Newer HVAC interior exchange unit, Quartz counters in Kitchen & both baths. SS appliances, Hinkley Pendant Light fixture over expanded kitchen island seats 4, Recessed LED lights, Ceiling exhaust fan, soft close drawers & faucet. Added new interior doors throughout plus built-in's for storage and closet organizers. Primary bdrm w/walk-in closet, full bath w/heated flooring. New shower surround, new sink, faucet, mirror & lights. Balcony to enjoy the views of the city, night lights, mountains & fireworks off the bay. Experience the open air Tuscan style Courtyard Fountain all year around with lush landscaping. Connect with your Roberson Community at any of the monthly Summer concerts just outside your unit door. Work out in the gym and have gatherings in the Owners lounge. 1 secured garage parking space #53 accessed of 7th St. Site is ideally located within walking distance to the New Tacoma link, stops at the Tacoma Dome and connects to the Sounder Train to Seattle. Walk to shops, restaurants, night life, spa's parks and the Theater District. Rental cap is 8. EV chargers completed 4/26. HOA includes Ltd & Common Maintenance. 2nd rentable parking on-site possibly.
Listing Provided Courtesy of Vienna M. Waale, Skyline Properties, Inc.
General Information
NWM2490269
Condominium
17
DOM
1
0 SqFt
1.5
894
2007
Pierce
Travis
Hilltop Heritag
Stadium
Residential
Condominium
Listing Provided Courtesy of Vienna M. Waale, Skyline Properties, Inc.
Krishna Realty data last checked: Apr 15, 2026 15:56 | Listing last modified Apr 12, 2026 17:41,
Source:
Welcome to the coveted "The Roberson". Secured Grand Lobby Entrance features local Art displays. 5th floor 1 bedroom, 1.5 baths unit lives like a 2 bdrm w/built in Murphy bed & pull down multiple use table/desk. Great room concept with over $70K in upgrades & renovations from 2022-2024 include: Newer HVAC interior exchange unit, Quartz counters in Kitchen & both baths. SS appliances, Hinkley Pendant Light fixture over expanded kitchen island seats 4, Recessed LED lights, Ceiling exhaust fan, soft close drawers & faucet. Added new interior doors throughout plus built-in's for storage and closet organizers. Primary bdrm w/walk-in closet, full bath w/heated flooring. New shower surround, new sink, faucet, mirror & lights. Balcony to enjoy the views of the city, night lights, mountains & fireworks off the bay. Experience the open air Tuscan style Courtyard Fountain all year around with lush landscaping. Connect with your Roberson Community at any of the monthly Summer concerts just outside your unit door. Work out in the gym and have gatherings in the Owners lounge. 1 secured garage parking space #53 accessed of 7th St. Site is ideally located within walking distance to the New Tacoma link, stops at the Tacoma Dome and connects to the Sounder Train to Seattle. Walk to shops, restaurants, night life, spa's parks and the Theater District. Rental cap is 8. EV chargers completed 4/26. HOA includes Ltd & Common Maintenance. 2nd rentable parking on-site possibly.