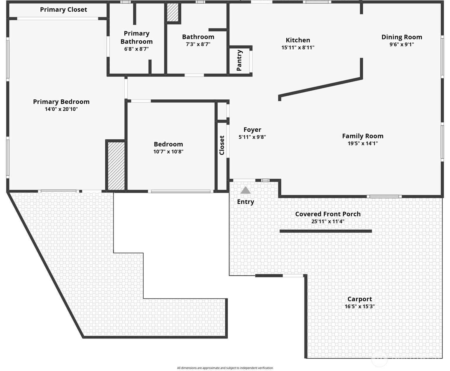
Welcome to easy, low-maintenance living in this beautifully updated 2-bedroom, 1.75-bath home in the well-kept 55+ community of Riverside Villas! Situated on a desirable corner lot, this spacious 1,236 sq ft double-wide offers a bright, open floor plan designed for comfort and functionality. Step inside to find newer flooring, updated appliances, and abundant natural light—including a skylight that adds warmth to the living space. The layout flows seamlessly from the living area to the kitchen and dining room, making it perfect for both everyday living and entertaining. Recent upgrades provide peace of mind, including a newer roof and a newly built carport for covered parking. Enjoy outdoor living on the large, entertainment-sized deck—ideal for relaxing or hosting guests. Accessibility features include a convenient ramp, offering ease of entry. The home also includes two generously sized bedrooms and well-appointed bathrooms for added comfort. Located in a pride-of-ownership community with a clubhouse and well-maintained surroundings, this home offers both convenience and connection. If you’ve been looking for a move-in ready home with thoughtful updates and great outdoor space, this one is worth a closer look—schedule your showing today!
Listing Provided Courtesy of John Hurlbut, Keller Williams Realty
General Information
NWM2503749
Manufactured Home
17
DOM
2
0 SqFt
2
1236
1972
Pierce
Waller Road Ele
Aylen Jnr High
Puyallup High
Residential
Manufactured Home
Listing Provided Courtesy of John Hurlbut, Keller Williams Realty
Krishna Realty data last checked: Apr 28, 2026 14:57 | Listing last modified Apr 24, 2026 15:54,
Source:
Welcome to easy, low-maintenance living in this beautifully updated 2-bedroom, 1.75-bath home in the well-kept 55+ community of Riverside Villas! Situated on a desirable corner lot, this spacious 1,236 sq ft double-wide offers a bright, open floor plan designed for comfort and functionality. Step inside to find newer flooring, updated appliances, and abundant natural light—including a skylight that adds warmth to the living space. The layout flows seamlessly from the living area to the kitchen and dining room, making it perfect for both everyday living and entertaining. Recent upgrades provide peace of mind, including a newer roof and a newly built carport for covered parking. Enjoy outdoor living on the large, entertainment-sized deck—ideal for relaxing or hosting guests. Accessibility features include a convenient ramp, offering ease of entry. The home also includes two generously sized bedrooms and well-appointed bathrooms for added comfort. Located in a pride-of-ownership community with a clubhouse and well-maintained surroundings, this home offers both convenience and connection. If you’ve been looking for a move-in ready home with thoughtful updates and great outdoor space, this one is worth a closer look—schedule your showing today!