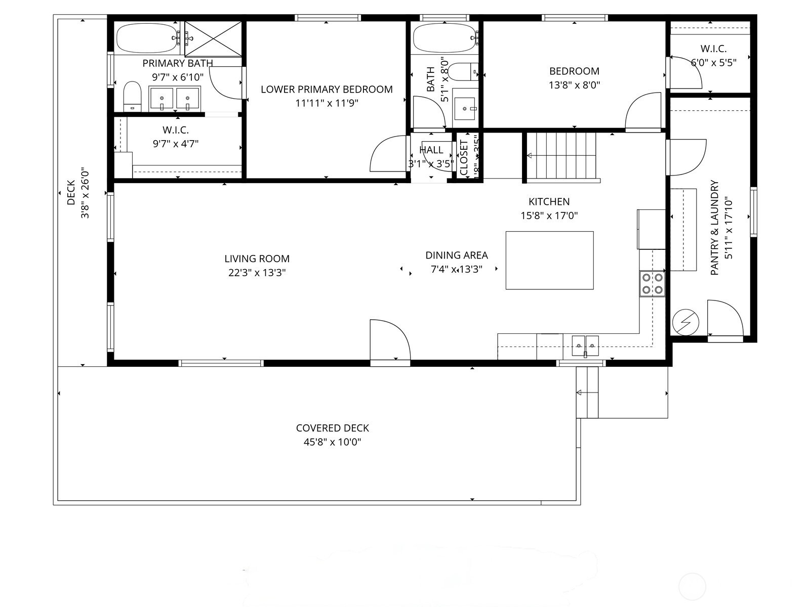
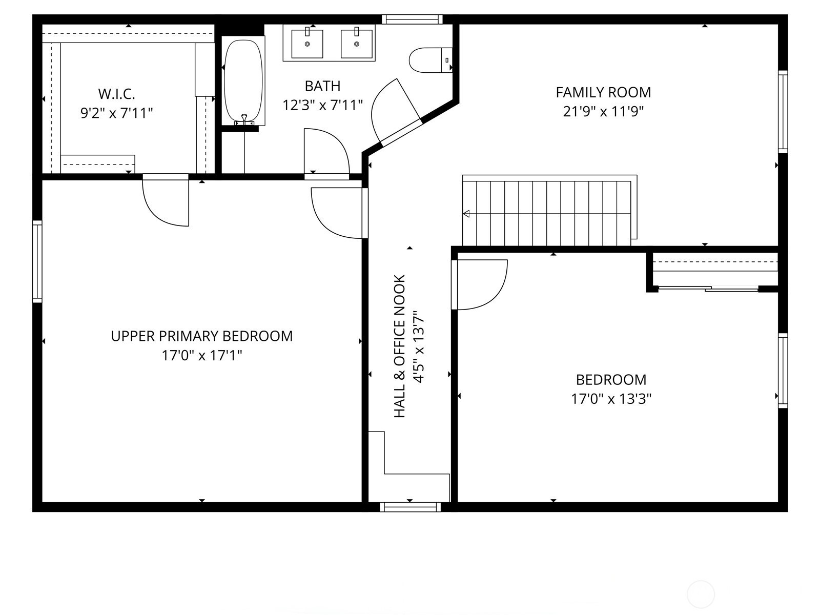
Looking for a multi-generational setup? This 2021 full-rebuild has a layout that truly works for modern life, including TWO Primary Suites & no HOA! Step inside to 2484 sq ft., tall ceilings & an open concept. The kitchen is a showstopper, starring a massive island with storage & black stainless appliances. A clever use of space includes a built-in nook tucked perfectly under the staircase, along with a possible pet bed area, these special features await your personalization, perhaps a coffee station?. With a walk-in pantry, dedicated dining space, & seamless flow into the living room, you’ll never be separated from the action. The first level features a full primary suite, ideal for guests, in-laws, or those looking to avoid stairs. Upstairs, the second level opens up with dramatic vaulted ceilings, housing the second primary suite, an additional large bedroom, family room & an office area. The LVP flooring throughout features a mix of cool & warm tones, ensuring your existing furniture will look right at home. Custom blinds, new plush carpet & fresh paint provide a turn-key experience for the new owners. Enjoy the outdoor living on the wrap around deck & expansive patio while having peace of mind knowing the major components of this 4 bedroom 3 bath home are only 5 years old. Walkability to local businesses & an easy commute location off of I5 make this property a must see! Current road resurfacing & sidewalk additions by Tacoma near this home will be the cherry on top.
Listing Provided Courtesy of Rebecca L. Bell, ANB Homes
General Information
NWM2496606
Single Family Residence
20
DOM
4
5749.92 SqFt
3
2484
2021
Pierce
Edison
Giaudrone Mid S
Foss
Residential
Single Family Residence
Listing Provided Courtesy of Rebecca L. Bell, ANB Homes
Krishna Realty data last checked: Apr 28, 2026 11:12 | Listing last modified Apr 28, 2026 03:43,
Source:
Looking for a multi-generational setup? This 2021 full-rebuild has a layout that truly works for modern life, including TWO Primary Suites & no HOA! Step inside to 2484 sq ft., tall ceilings & an open concept. The kitchen is a showstopper, starring a massive island with storage & black stainless appliances. A clever use of space includes a built-in nook tucked perfectly under the staircase, along with a possible pet bed area, these special features await your personalization, perhaps a coffee station?. With a walk-in pantry, dedicated dining space, & seamless flow into the living room, you’ll never be separated from the action. The first level features a full primary suite, ideal for guests, in-laws, or those looking to avoid stairs. Upstairs, the second level opens up with dramatic vaulted ceilings, housing the second primary suite, an additional large bedroom, family room & an office area. The LVP flooring throughout features a mix of cool & warm tones, ensuring your existing furniture will look right at home. Custom blinds, new plush carpet & fresh paint provide a turn-key experience for the new owners. Enjoy the outdoor living on the wrap around deck & expansive patio while having peace of mind knowing the major components of this 4 bedroom 3 bath home are only 5 years old. Walkability to local businesses & an easy commute location off of I5 make this property a must see! Current road resurfacing & sidewalk additions by Tacoma near this home will be the cherry on top.