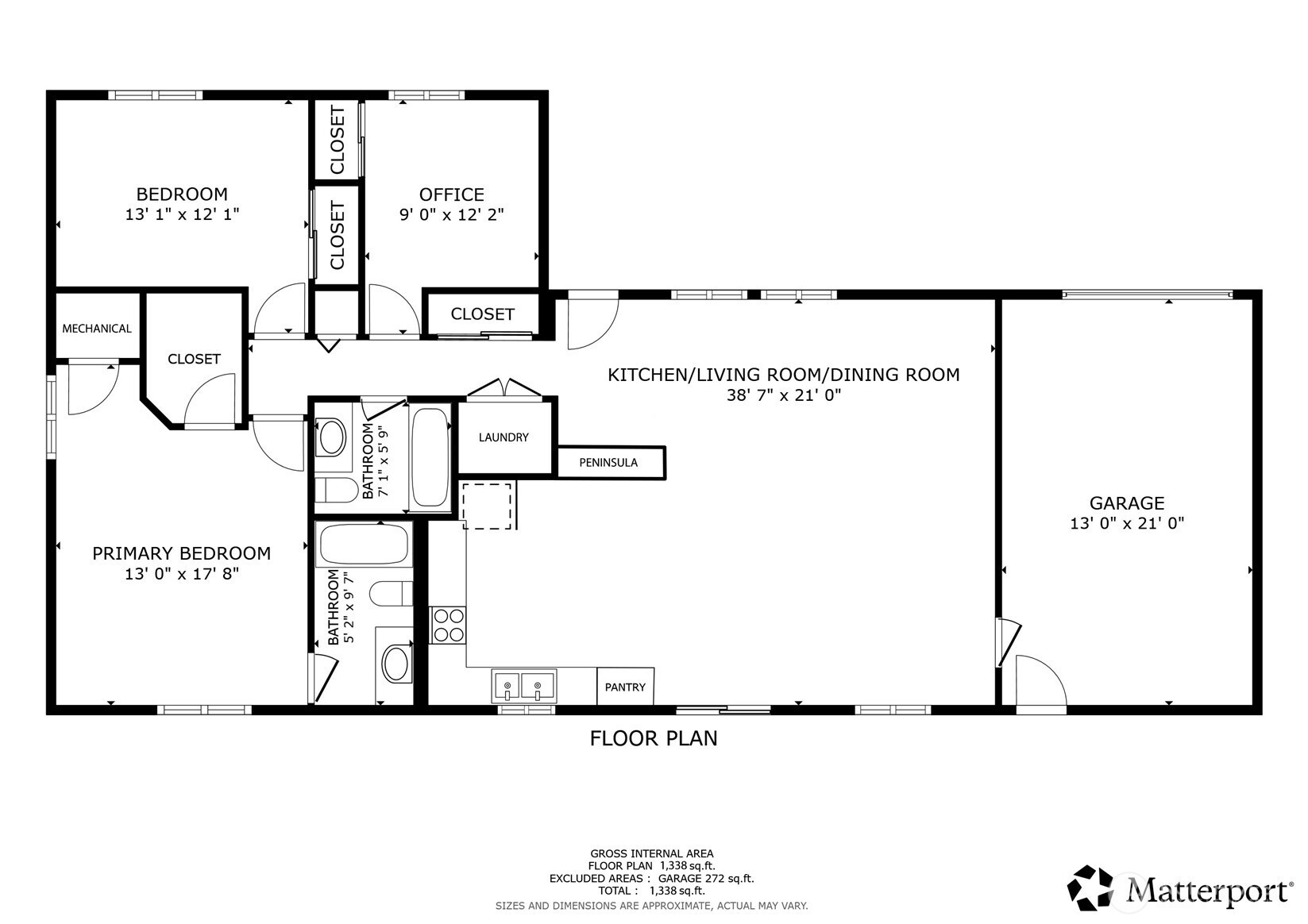
Beautifully refreshed and thoughtfully remodeled, this easy-living rambler in North Tacoma rests gracefully on a .205-acre corner lot. Designed with an open-concept layout and contemporary finishes, the home offers a seamless blend of style and comfort. Featuring 3 bedrooms and 2 full baths, the light-filled interior creates an inviting atmosphere throughout. A heat pump system ensures year-round comfort—cozy in the winter and cool in the summer. The stunning kitchen is appointed with quartz countertops and stainless steel appliances, perfect for both everyday living and entertaining. The serene primary suite includes a walk-in closet with built-in shelving and a private full bath. An additional closet within the suite conveniently houses the hot water tank and electrical panel. The 1-car garage is deep & has built-in shelving in the ceiling area & an automatic opener with an exterior access pad. The comprehensive 2016 remodel included a new roof and fully permitted electrical and plumbing updates for added peace of mind. Ideally located near Point Defiance Zoo, the Vashon Ferry, and the vibrant shops, theater, and dining at Point Ruston Waterfront, this home offers both tranquility and accessibility. Pre-inspected and with the sewer line already scoped, it is truly move-in ready for its next chapter.
Listing Provided Courtesy of Sheryl A. McLaren, Best Choice Realty LLC
General Information
NWM2489690
Single Family Residence
1
DOM
3
8916.73 SqFt
2
1338
1981
Pierce
Point Defiance
Truman
Silas High Scho
Residential
Single Family Residence
Listing Provided Courtesy of Sheryl A. McLaren, Best Choice Realty LLC
Krishna Realty data last checked: Apr 25, 2026 05:27 | Listing last modified Apr 25, 2026 12:01,
Source:
Beautifully refreshed and thoughtfully remodeled, this easy-living rambler in North Tacoma rests gracefully on a .205-acre corner lot. Designed with an open-concept layout and contemporary finishes, the home offers a seamless blend of style and comfort. Featuring 3 bedrooms and 2 full baths, the light-filled interior creates an inviting atmosphere throughout. A heat pump system ensures year-round comfort—cozy in the winter and cool in the summer. The stunning kitchen is appointed with quartz countertops and stainless steel appliances, perfect for both everyday living and entertaining. The serene primary suite includes a walk-in closet with built-in shelving and a private full bath. An additional closet within the suite conveniently houses the hot water tank and electrical panel. The 1-car garage is deep & has built-in shelving in the ceiling area & an automatic opener with an exterior access pad. The comprehensive 2016 remodel included a new roof and fully permitted electrical and plumbing updates for added peace of mind. Ideally located near Point Defiance Zoo, the Vashon Ferry, and the vibrant shops, theater, and dining at Point Ruston Waterfront, this home offers both tranquility and accessibility. Pre-inspected and with the sewer line already scoped, it is truly move-in ready for its next chapter.