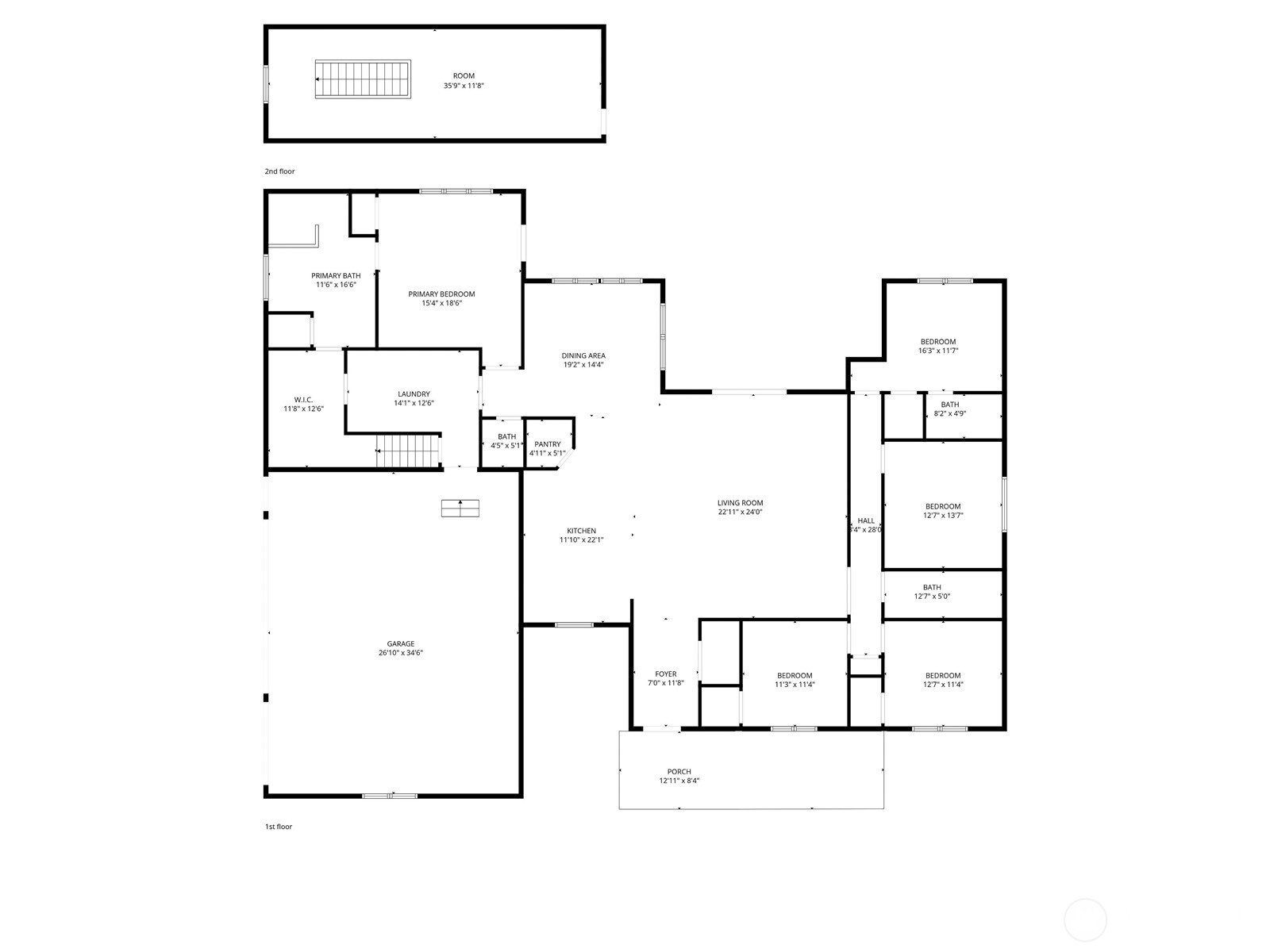
Welcome to this stunning 4-bedroom, 3.5-bath, 3,478 sqft home set on a peaceful 1.19-acre property in desirable Carbonado. The open-concept layout is ideal for both comfort and entertaining, featuring vaulted ceilings, built-in surround sound, and a spacious living room that flows seamlessly into the chef’s kitchen with quartz countertops, stainless steel appliances, and walk-in pantry. The private primary suite is tucked away on its own wing and features a large walk-in closet with custom shelving and a luxurious 5-piece bath with soaking tub and spa-like tiled shower. The opposite side of the home offers 3 additional bedrooms, including one with a private bath, plus a versatile office/den. Upstairs bonus space provides endless possibilities for a media room, playroom, or additional living area. Step outside to the covered patio with surround sound, propane BBQ hookup, and electrical ready for a future spa or sauna—perfect for year-round entertaining—overlooking a flat, park-like backyard that backs to greenbelt. The property offers RV parking and plenty of room for all your toys. Stay comfortable year-round with a heat pump providing A/C along with three furnaces for efficient heating. Oversized 1,120 sqft 3-car garage with 220 power. Excellent access to the Foothills Trail with miles of walking and biking. Located in the award-winning, highly sought-after Carbonado School District, School grades EK through 8th. Homes like this rarely come available in Carbonado.
Listing Provided Courtesy of Paul Coleman, Terrafin
General Information
NWM2508514
Single Family Residence
14
DOM
4
1.2 acres
3.5
3478
2018
Pierce
Carbonado Histo
Out of District
Residential
Single Family Residence
Listing Provided Courtesy of Paul Coleman, Terrafin
Krishna Realty data last checked: May 07, 2026 13:47 | Listing last modified Apr 30, 2026 16:28,
Source:
Welcome to this stunning 4-bedroom, 3.5-bath, 3,478 sqft home set on a peaceful 1.19-acre property in desirable Carbonado. The open-concept layout is ideal for both comfort and entertaining, featuring vaulted ceilings, built-in surround sound, and a spacious living room that flows seamlessly into the chef’s kitchen with quartz countertops, stainless steel appliances, and walk-in pantry. The private primary suite is tucked away on its own wing and features a large walk-in closet with custom shelving and a luxurious 5-piece bath with soaking tub and spa-like tiled shower. The opposite side of the home offers 3 additional bedrooms, including one with a private bath, plus a versatile office/den. Upstairs bonus space provides endless possibilities for a media room, playroom, or additional living area. Step outside to the covered patio with surround sound, propane BBQ hookup, and electrical ready for a future spa or sauna—perfect for year-round entertaining—overlooking a flat, park-like backyard that backs to greenbelt. The property offers RV parking and plenty of room for all your toys. Stay comfortable year-round with a heat pump providing A/C along with three furnaces for efficient heating. Oversized 1,120 sqft 3-car garage with 220 power. Excellent access to the Foothills Trail with miles of walking and biking. Located in the award-winning, highly sought-after Carbonado School District, School grades EK through 8th. Homes like this rarely come available in Carbonado.