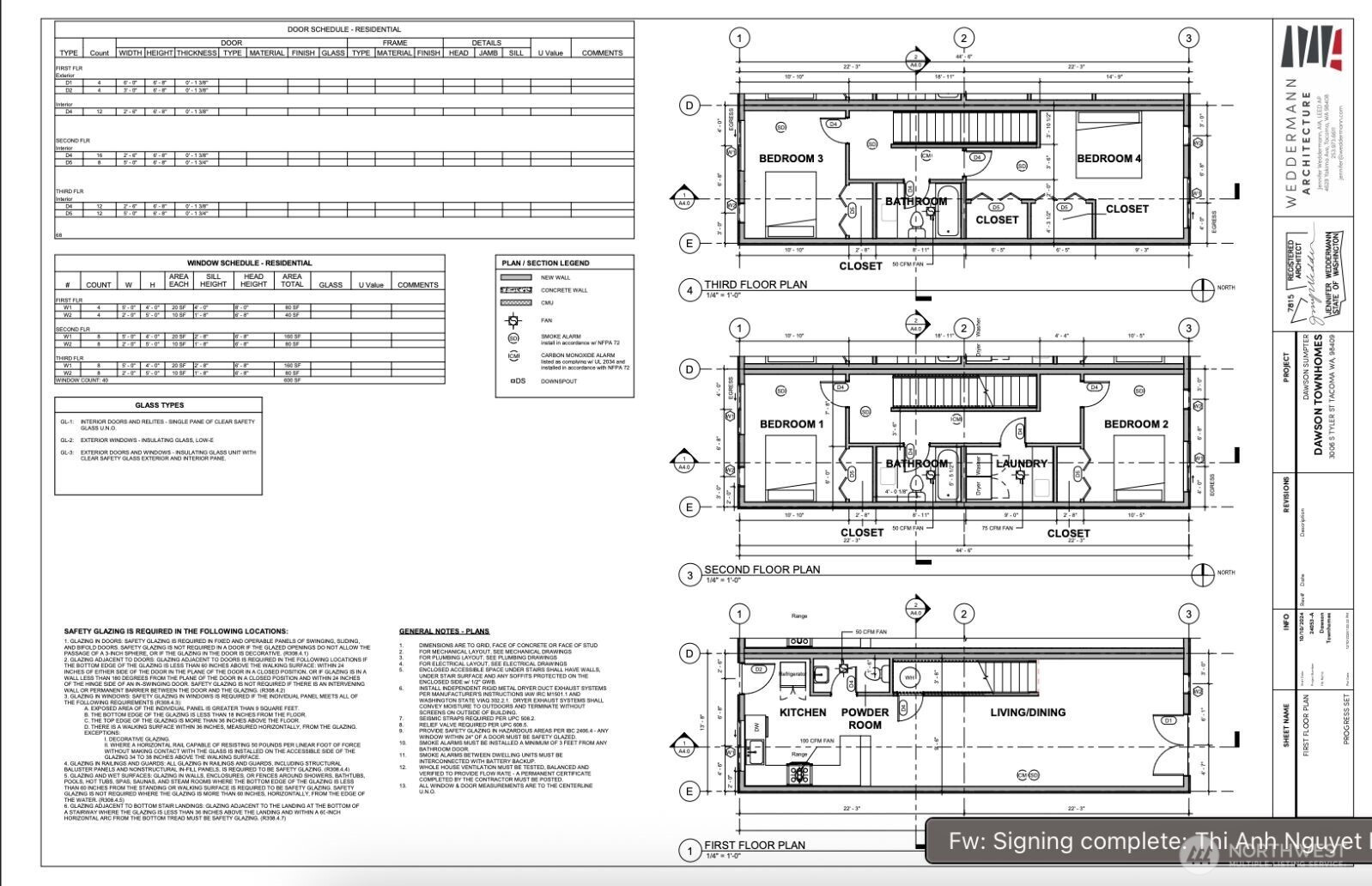
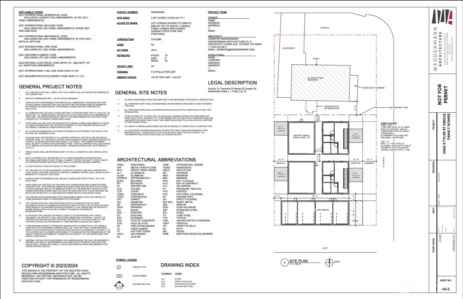
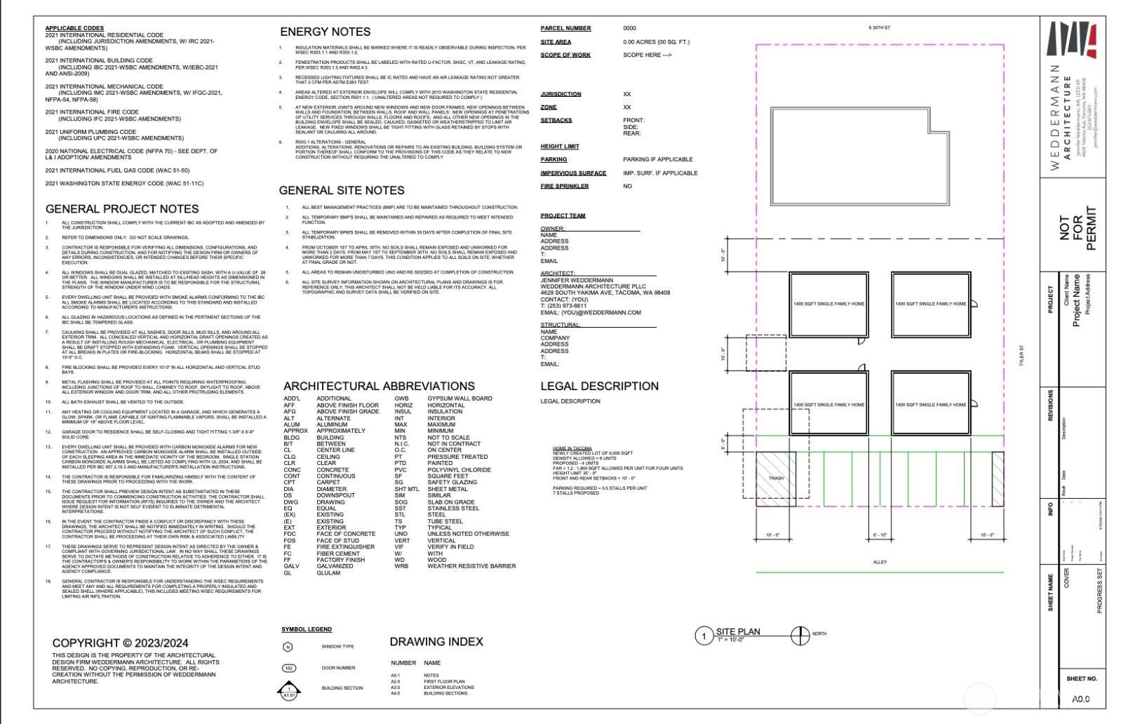
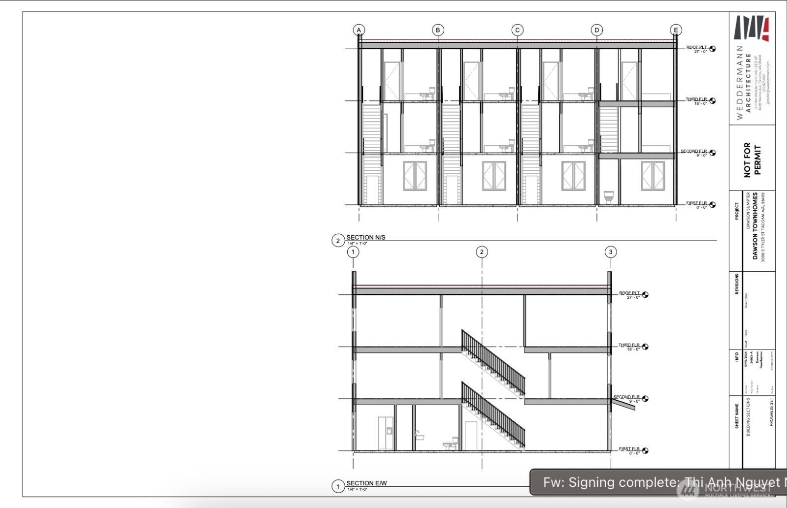
Short plat approval for Proposed 4-Unit Townhome Development plus an updated 1770 sqft home. Listing contains architectural and site plan documents related to the proposed development of four townhomes. The home is centrally located and has been updated with quartz counter tops, hardwood floors and tile bathrooms with room to put an additional bedroom. This updated home offers immediate rental income and compelling development upside. The property is currently rented at approximately $1,000 per room and features recent upgrades including quartz countertops, updated cabinetry, stainless steel appliances, tile shower/tub surround, LVP flooring, fresh interior paint, and updated trim, making it turnkey for continued rental use or resale. Reach out for more information site plan and development information. great opportunity to condo-minimize all 5 units. Builder resources available price range from $250-$300 a square ft.
Listing Provided Courtesy of Haruichi Bearden, Keller Williams Eastside
General Information
NWM2482990
Single Family Residence
9
DOM
4
10497.96 SqFt
2
1770
1915
Pierce
Buyer To Verify
Buyer To Verify
Buyer To Verify
Residential
Single Family Residence
Listing Provided Courtesy of Haruichi Bearden, Keller Williams Eastside
Krishna Realty data last checked: Mar 18, 2026 15:15 | Listing last modified Mar 06, 2026 17:50,
Source:
Short plat approval for Proposed 4-Unit Townhome Development plus an updated 1770 sqft home. Listing contains architectural and site plan documents related to the proposed development of four townhomes. The home is centrally located and has been updated with quartz counter tops, hardwood floors and tile bathrooms with room to put an additional bedroom. This updated home offers immediate rental income and compelling development upside. The property is currently rented at approximately $1,000 per room and features recent upgrades including quartz countertops, updated cabinetry, stainless steel appliances, tile shower/tub surround, LVP flooring, fresh interior paint, and updated trim, making it turnkey for continued rental use or resale. Reach out for more information site plan and development information. great opportunity to condo-minimize all 5 units. Builder resources available price range from $250-$300 a square ft.