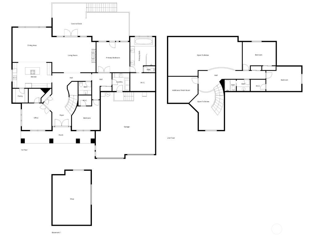
Located in the desirable Lake Tapps community of Orion Ridge and within the highly sought-after Dieringer School District, this beautifully crafted custom home features a coveted main floor primary suite and a finished 20’x20’ shop with 220V—perfect for hobbies, storage, or workspace. Enjoy partial Olympic Mountain views and a light-filled open concept floor plan designed for both comfort and entertaining. A grand double entry door with curved staircase welcomes you inside to Santos mahogany hardwood floors, wood-wrapped windows, solid-core fir doors, & surround sound. The spacious kitchen offers granite countertops, stainless steel appliances, crown-molded cabinetry, under-cabinet lighting, walk-in pantry, and a dining room with custom barrel-vaulted ceilings. The main level primary retreat showcases double door entry, French doors to the covered back deck, walk-in closet, and a luxurious 5-piece bath with vaulted ceilings- plus a main floor office/den with walk-in closet and 1 addtl. finished room/opt 4th bedroom on the main! While upstairs offers two more guest bedrooms and a versatile extra-finished room. Outdoor living shines with a covered deck featuring built-in speakers and BBQ gas stub for year-round enjoyment. Additional highlights include A/C, cedar siding with stone accents, and recent updates including furnace and septic pump and exterior paint. Exceptional quality in a prime Lake Tapps location! Ask for our Features List!
Listing Provided Courtesy of Stephanie Gurden, Keller Williams Realty
General Information
NWM2475848
Single Family Residence
1
DOM
3
0.46 acres
2.5
3161
2001
Pierce
Dieringer Hs El
North Tapps Mid
Buyer To Verify
Residential
Single Family Residence
Listing Provided Courtesy of Stephanie Gurden, Keller Williams Realty
Krishna Realty data last checked: Feb 22, 2026 00:53 | Listing last modified Feb 20, 2026 21:06,
Source:
Located in the desirable Lake Tapps community of Orion Ridge and within the highly sought-after Dieringer School District, this beautifully crafted custom home features a coveted main floor primary suite and a finished 20’x20’ shop with 220V—perfect for hobbies, storage, or workspace. Enjoy partial Olympic Mountain views and a light-filled open concept floor plan designed for both comfort and entertaining. A grand double entry door with curved staircase welcomes you inside to Santos mahogany hardwood floors, wood-wrapped windows, solid-core fir doors, & surround sound. The spacious kitchen offers granite countertops, stainless steel appliances, crown-molded cabinetry, under-cabinet lighting, walk-in pantry, and a dining room with custom barrel-vaulted ceilings. The main level primary retreat showcases double door entry, French doors to the covered back deck, walk-in closet, and a luxurious 5-piece bath with vaulted ceilings- plus a main floor office/den with walk-in closet and 1 addtl. finished room/opt 4th bedroom on the main! While upstairs offers two more guest bedrooms and a versatile extra-finished room. Outdoor living shines with a covered deck featuring built-in speakers and BBQ gas stub for year-round enjoyment. Additional highlights include A/C, cedar siding with stone accents, and recent updates including furnace and septic pump and exterior paint. Exceptional quality in a prime Lake Tapps location! Ask for our Features List!