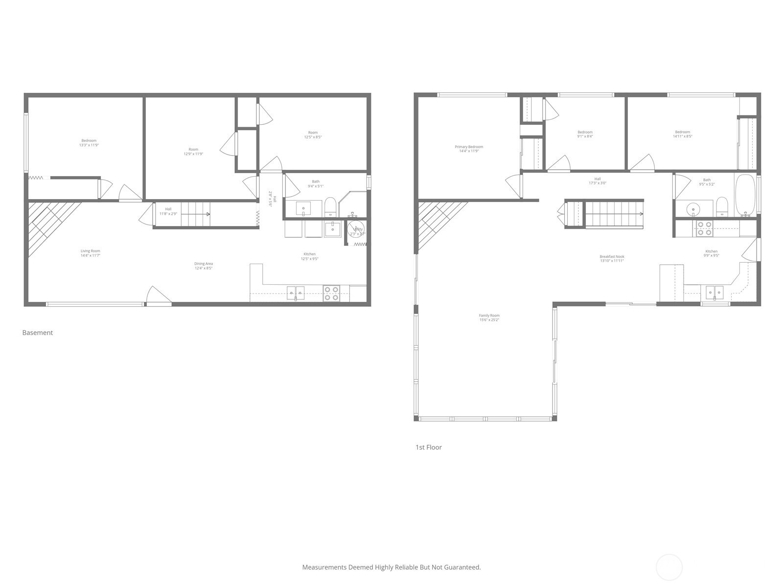
There’s something special about these classic 1960's Lake Tapps waterfront homes - this one captures the details of the era perfectly. With 70’ of low-bank, sandy beach waterfront this home has been lovingly maintained and is ready for its next chapter. Priced to give you the space to invest in waterfront while bringing your own design to refresh the home and build equity. The main level lives casual & comfortable w/ open kitchen, dining & living spaces w/ garden windows that pull in your lake views. Enjoy meals or coffee on either of the 2 decks off living room or dining room. Perfect spot to start your lake days and end summer evenings after a day on the water. Downstairs offers flexibility w/ a second kitchen, bedroom, bonus rooms, + ¾ bath, making it ideal for multigenerational living, guest space, or future income potential w/ the convenience of a separate entrance. Your private back yard is a fenced level open space that gives you shade from the sun + open sunny spaces to soak up the vitamin D. Launch your kayak, boat or paddleboard right from your own private dock, including a covered boat lift. Carport attached to a large shop for hobbies or outdoor bar + additional storage room for your water toys. Driftwood Point HOA gives residents access to a private, gated park offering beaches, boat launch, sport courts, cabanas + community events year-round making it one of Lake Tapps’ most loved neighborhoods. Located in Dieringer school district.
Listing Provided Courtesy of Shelley Heck, Windermere Abode
General Information
NWM2508757
Single Family Residence
0
DOM
4
0.29 acres
2
2176
1964
Pierce
Dieringer Hs El
North Tapps Mid
Out of District
Residential
Single Family Residence
Listing Provided Courtesy of Shelley Heck, Windermere Abode
Krishna Realty data last checked: Apr 23, 2026 18:08 | Listing last modified Apr 23, 2026 21:43,
Source:
There’s something special about these classic 1960's Lake Tapps waterfront homes - this one captures the details of the era perfectly. With 70’ of low-bank, sandy beach waterfront this home has been lovingly maintained and is ready for its next chapter. Priced to give you the space to invest in waterfront while bringing your own design to refresh the home and build equity. The main level lives casual & comfortable w/ open kitchen, dining & living spaces w/ garden windows that pull in your lake views. Enjoy meals or coffee on either of the 2 decks off living room or dining room. Perfect spot to start your lake days and end summer evenings after a day on the water. Downstairs offers flexibility w/ a second kitchen, bedroom, bonus rooms, + ¾ bath, making it ideal for multigenerational living, guest space, or future income potential w/ the convenience of a separate entrance. Your private back yard is a fenced level open space that gives you shade from the sun + open sunny spaces to soak up the vitamin D. Launch your kayak, boat or paddleboard right from your own private dock, including a covered boat lift. Carport attached to a large shop for hobbies or outdoor bar + additional storage room for your water toys. Driftwood Point HOA gives residents access to a private, gated park offering beaches, boat launch, sport courts, cabanas + community events year-round making it one of Lake Tapps’ most loved neighborhoods. Located in Dieringer school district.