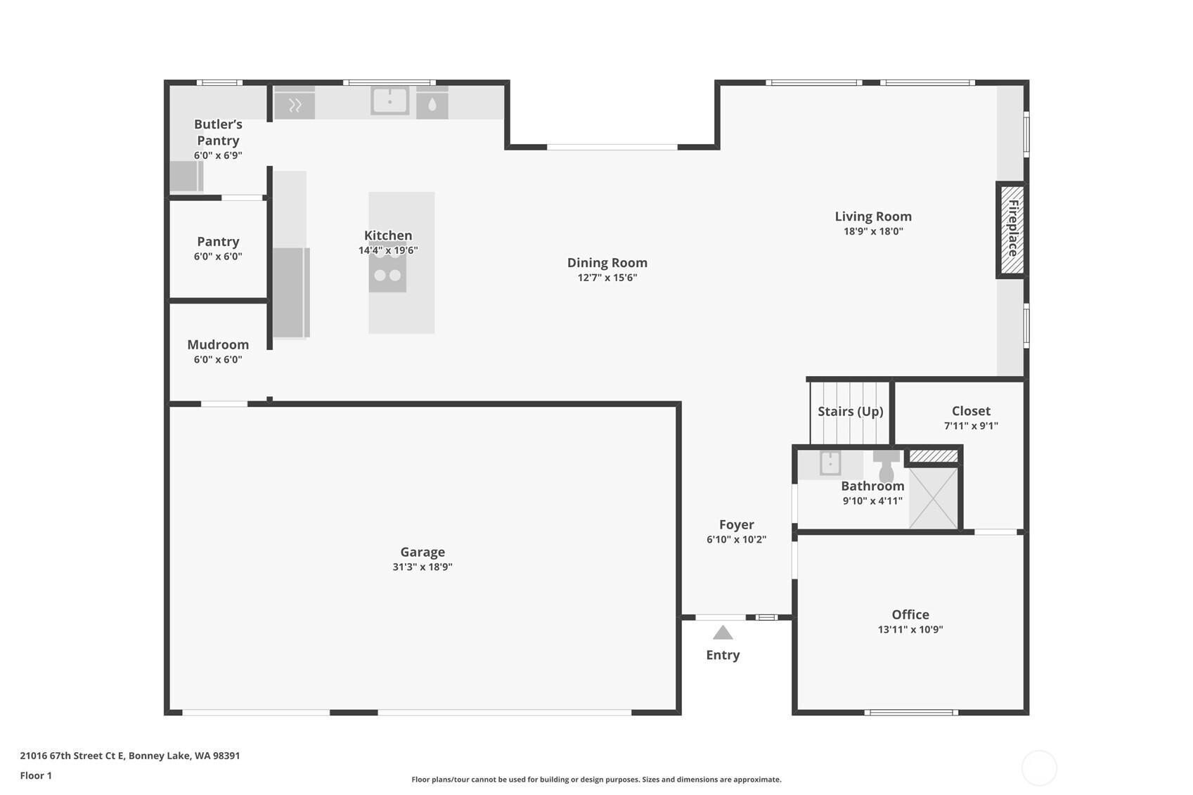
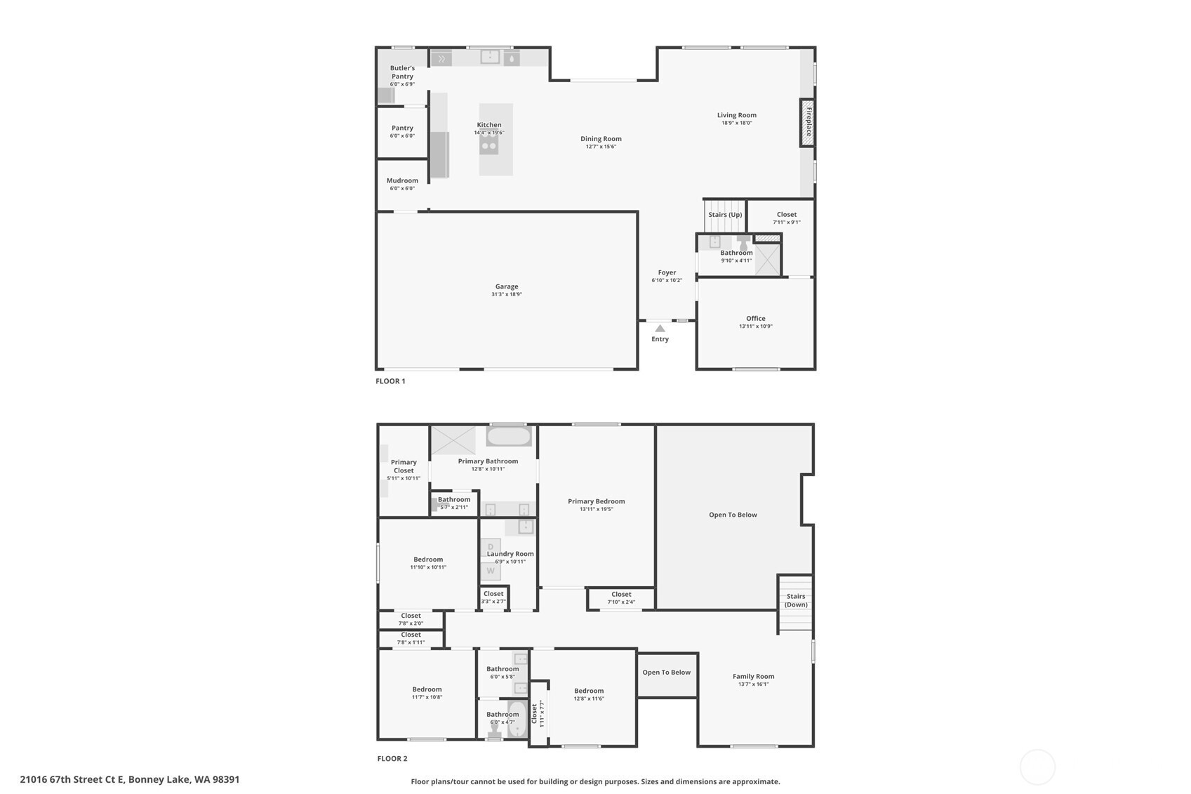
Modern elegance meets everyday functionality in this 3,108 sq ft residence at Enclave at the Lake—minutes from Lk Tapps, top-rated schools, shopping & local amenities. Built by High Country Homes, this modern Craftsman showcases a soaring 2-story great room with tile-surround & gas fireplace. The chef’s kitchen features SS appliances, 6-burner gas range, side-by-side Frigidaire fridge, undermount sink, walk-in pantry w/ wood shelving & beverage fridge. Main level offers fully sound proofed guest room + nearby ¾ bath. Upstairs: primary suite with 5-pc spa-inspired bath, freestanding tub, frameless glass shower & custom walk-in closet, plus 3 add’l bedrooms & a loft. Covered patio w/ overhead heater, fully fenced yard, 3 car garage, & AC.
Listing Provided Courtesy of Brandon Newell, Portico Real Estate
General Information
NWM2495040
Single Family Residence
183
DOM
5
7509.74 SqFt
3
3108
2024
Pierce
Residential
Single Family Residence
Listing Provided Courtesy of Brandon Newell, Portico Real Estate
Krishna Realty data last checked: Apr 30, 2026 01:15 | Listing last modified Mar 20, 2026 12:01,
Source:
Modern elegance meets everyday functionality in this 3,108 sq ft residence at Enclave at the Lake—minutes from Lk Tapps, top-rated schools, shopping & local amenities. Built by High Country Homes, this modern Craftsman showcases a soaring 2-story great room with tile-surround & gas fireplace. The chef’s kitchen features SS appliances, 6-burner gas range, side-by-side Frigidaire fridge, undermount sink, walk-in pantry w/ wood shelving & beverage fridge. Main level offers fully sound proofed guest room + nearby ¾ bath. Upstairs: primary suite with 5-pc spa-inspired bath, freestanding tub, frameless glass shower & custom walk-in closet, plus 3 add’l bedrooms & a loft. Covered patio w/ overhead heater, fully fenced yard, 3 car garage, & AC.