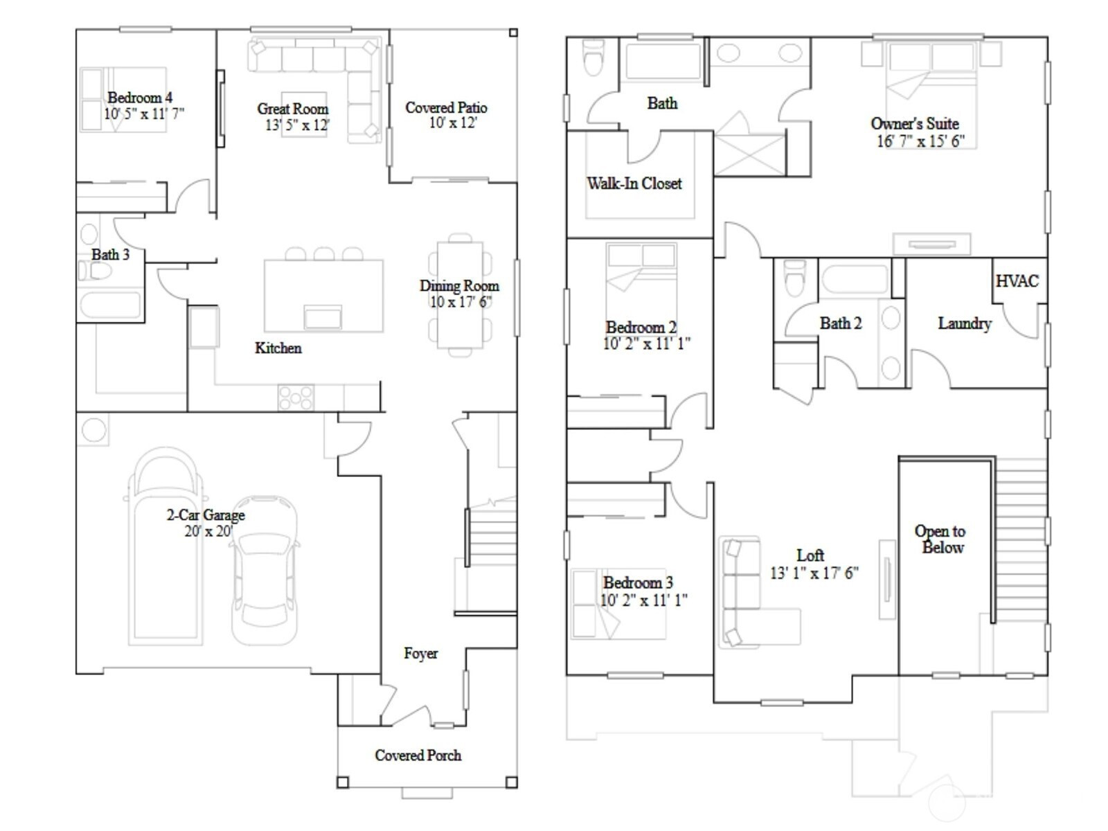
Welcome to the Blossom at Tehaleh Glacier Pointe by Lennar! This two-story home features an open-concept main floor where the kitchen, dining and living areas connect seamlessly to a covered patio. A private secondary bedroom is tucked away downstairs, while upstairs offers a versatile loft, two additional bedrooms, and a luxurious owner’s suite with a spa-inspired bath and walk-in closet. Situated on a desirable corner homesite along a quiet cul-de-sac street, this home offers a spacious backyard with plenty of room to relax, play, or entertain. With Lennar’s signature Everything’s Included®, you’ll find stainless steel appliances, quartz countertops, shaker-style cabinetry and more—all at no extra cost. Buyer’s broker must be registered during the customer’s first interaction with a Lennar Associate to be eligible for compensation.
Listing Provided Courtesy of Jeffrey Napalan, Lennar Sales Corp.
General Information
NWM2483989
Single Family Residence
7
DOM
4
6751.8 SqFt
3
2724
2026
Pierce
Buyer To Verify
Buyer To Verify
Buyer To Verify
Residential
Single Family Residence
Listing Provided Courtesy of Jeffrey Napalan, Lennar Sales Corp.
Krishna Realty data last checked: Mar 17, 2026 14:52 | Listing last modified Mar 03, 2026 17:49,
Source:
Download our Mobile app
Residence Information
2724
4
3
0
3
Composition
12 - 2 Story
2026
None
None
Poured Concrete
Features and Utilities
Dishwasher(s), Disposal, Microwave(s), Refrigerator(s), See Remarks, Stove(s)/Range(s)
Welcome to the Blossom at Tehaleh Glacier Pointe by Lennar! This two-story home features an open-concept main floor where the kitchen, dining and living areas connect seamlessly to a covered patio. A private secondary bedroom is tucked away downstairs, while upstairs offers a versatile loft, two additional bedrooms, and a luxurious owner’s suite with a spa-inspired bath and walk-in closet. Situated on a desirable corner homesite along a quiet cul-de-sac street, this home offers a spacious backyard with plenty of room to relax, play, or entertain. With Lennar’s signature Everything’s Included®, you’ll find stainless steel appliances, quartz countertops, shaker-style cabinetry and more—all at no extra cost. Buyer’s broker must be registered during the customer’s first interaction with a Lennar Associate to be eligible for compensation.