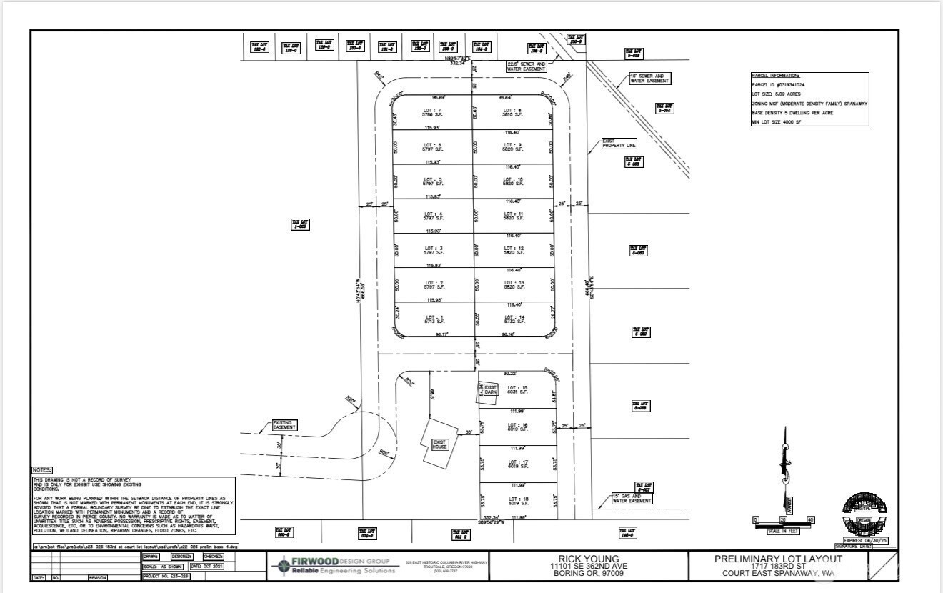
Rare opportunity for builders and developers to capitalize on just shy of 6 flat, usable acres in a private and serene setting. Zoned NMSF, this property comes with preliminary engineering in place & water rights secure for a thoughtfully designed 18-lot subdivision—offering a strong head start for your next project. Existing neighborhoods built all around the property. Maximize the potential by developing and building across all 18 lots while also adding value to the existing 3,070 sq ft home—ideal for renovation, resale, or holding as an income-producing asset during development. With its combination of scale, usability, and forward planning already underway, this is a standout investment opportunity in a sought-after location.
Listing Provided Courtesy of Brandon Hjelseth, Keller Williams Rty Tacoma
General Information
NWM2511885
Single Family Residence
0
DOM
5
5.09 acres
2.5
3070
1986
Pierce
Residential
Single Family Residence
Listing Provided Courtesy of Brandon Hjelseth, Keller Williams Rty Tacoma
Krishna Realty data last checked: Apr 23, 2026 18:10 | Listing last modified Apr 23, 2026 23:26,
Source:
Rare opportunity for builders and developers to capitalize on just shy of 6 flat, usable acres in a private and serene setting. Zoned NMSF, this property comes with preliminary engineering in place & water rights secure for a thoughtfully designed 18-lot subdivision—offering a strong head start for your next project. Existing neighborhoods built all around the property. Maximize the potential by developing and building across all 18 lots while also adding value to the existing 3,070 sq ft home—ideal for renovation, resale, or holding as an income-producing asset during development. With its combination of scale, usability, and forward planning already underway, this is a standout investment opportunity in a sought-after location.