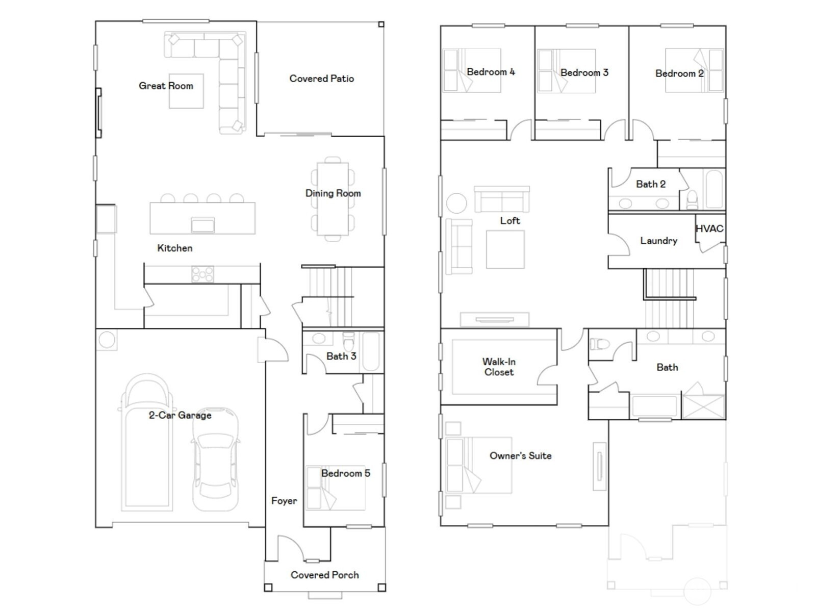
Welcome to the Lilac at Tehaleh Glacier Pointe by Lennar! Live at Tehaleh to enjoy an active lifestyle with miles of trails, parks, and community amenities, plus convenient access to schools, shopping, and dining nearby. Set on a spacious homesite along a quiet cul-de-sac street, this property features a large 37' backyard backing to open space with no neighbors behind for added privacy. Located in the highly sought after Sumner Bonney Lake School District. The home features an open-concept living and dining areas flow seamlessly from the kitchen with sliding glass doors leading you to a covered patio that extends the living space outdoors. A main floor bedroom adds convenience with an adjacent bathroom offering a great space for guests. Upstairs, the owner’s suite and three additional bedrooms are connected by a versatile loft, offering flexible space for work, play, or leisure. With Lennar’s signature Everything’s Included®, you’ll find stainless steel appliances, quartz countertops, shaker-style cabinetry and more—all at no extra cost. Buyer’s broker must be registered during the customer’s first interaction with a Lennar Associate to be eligible for compensation.
Listing Provided Courtesy of Jeffrey Napalan, Lennar Sales Corp.
General Information
NWM2495021
Single Family Residence
12
DOM
5
5222.84 SqFt
3
3360
2026
Pierce
Donald Eismann
Mtn View Middle
Bonney Lake Hig
Residential
Single Family Residence
Listing Provided Courtesy of Jeffrey Napalan, Lennar Sales Corp.
Krishna Realty data last checked: Apr 08, 2026 20:34 | Listing last modified Mar 31, 2026 22:09,
Source:
Download our Mobile app
Residence Information
3360
1/Gas
5
3
0
3
Composition
12 - 2 Story
2026
None
None
Poured Concrete
Features and Utilities
Dishwasher, Disposal, Microwave, Refrigerator, See Remarks, Stove(s)/Range(s)
Welcome to the Lilac at Tehaleh Glacier Pointe by Lennar! Live at Tehaleh to enjoy an active lifestyle with miles of trails, parks, and community amenities, plus convenient access to schools, shopping, and dining nearby. Set on a spacious homesite along a quiet cul-de-sac street, this property features a large 37' backyard backing to open space with no neighbors behind for added privacy. Located in the highly sought after Sumner Bonney Lake School District. The home features an open-concept living and dining areas flow seamlessly from the kitchen with sliding glass doors leading you to a covered patio that extends the living space outdoors. A main floor bedroom adds convenience with an adjacent bathroom offering a great space for guests. Upstairs, the owner’s suite and three additional bedrooms are connected by a versatile loft, offering flexible space for work, play, or leisure. With Lennar’s signature Everything’s Included®, you’ll find stainless steel appliances, quartz countertops, shaker-style cabinetry and more—all at no extra cost. Buyer’s broker must be registered during the customer’s first interaction with a Lennar Associate to be eligible for compensation.
Similar Properties
Download our Mobile app
$1,023,995
5 Bed
3.5 Bath
3858 SqFt
0 DOM
20540 165th Street E,
Bonney Lake, 98391
$871,950
5 Bed
3 Bath
3134 SqFt
0 DOM
20401 145th Street E,
Bonney Lake, 98391
$575,000
4 Bed
1.5 Bath
1704 SqFt
0 DOM
19002 63rd Street E,
Lake Tapps, 98391
$1,274,950
3 Bed
2 Bath
2410 SqFt
0 DOM
12622 170th Avenue Ct E #Lot194,
Bonney Lake, 98391