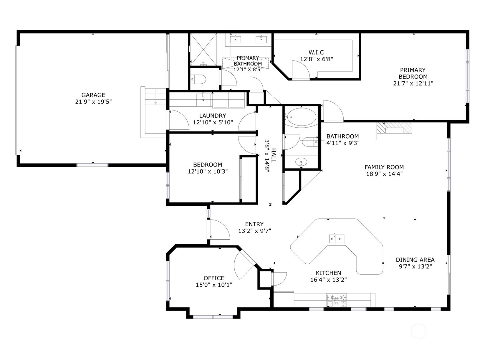
Experience luxury and effortless living in the prestigious gated 55+ community of Palisades at Lakeland. This meticulously maintained home captures your attention from the moment you arrive, greeted by an elegant front walkway with refreshed landscaping. Inside, you'll find a masterclass in modern elegance with an open-concept floor plan that seamlessly connects the entry to the living & dining spaces. The refined kitchen has been updated with a massive granite slab island that serves as a beautiful centerpiece for meal prep or a quiet morning coffee. You’ll appreciate the stainless steel appliances, gorgeous hardwood floors, generous pantry, and convenient instant hot water dispenser. Whether you choose to enjoy a meal in the dining room or step through the slider to the partially covered back deck, fully refreshed in 2024, the transition between indoor and outdoor living is seamless and serene. Relax in the living room featuring stately crown molding and a cozy gas fireplace, or retreat to the spacious primary suite, complete with a walk-in closet and a beautifully updated 3/4 bath with dual sinks & bright skylight. A flexible den/office offers the perfect quiet workspace or hobby room, while the laundry/mudroom adds ultimate functionality with a utility sink, built-in cabinetry & beverage fridge. Enjoy a true low-maintenance lifestyle as the HOA manages all lawn care and landscaping. Welcome home to a peaceful, year-round retreat in a convenient Lakeland Hills location.
Listing Provided Courtesy of Josh Hall, John L. Scott, Inc
General Information
NWM2502265
Single Family Residence
1
DOM
2
0 SqFt
2
1754
2005
Pierce
Residential
Single Family Residence
Listing Provided Courtesy of Josh Hall, John L. Scott, Inc
Krishna Realty data last checked: Apr 03, 2026 13:52 | Listing last modified Apr 03, 2026 16:38,
Source:
Experience luxury and effortless living in the prestigious gated 55+ community of Palisades at Lakeland. This meticulously maintained home captures your attention from the moment you arrive, greeted by an elegant front walkway with refreshed landscaping. Inside, you'll find a masterclass in modern elegance with an open-concept floor plan that seamlessly connects the entry to the living & dining spaces. The refined kitchen has been updated with a massive granite slab island that serves as a beautiful centerpiece for meal prep or a quiet morning coffee. You’ll appreciate the stainless steel appliances, gorgeous hardwood floors, generous pantry, and convenient instant hot water dispenser. Whether you choose to enjoy a meal in the dining room or step through the slider to the partially covered back deck, fully refreshed in 2024, the transition between indoor and outdoor living is seamless and serene. Relax in the living room featuring stately crown molding and a cozy gas fireplace, or retreat to the spacious primary suite, complete with a walk-in closet and a beautifully updated 3/4 bath with dual sinks & bright skylight. A flexible den/office offers the perfect quiet workspace or hobby room, while the laundry/mudroom adds ultimate functionality with a utility sink, built-in cabinetry & beverage fridge. Enjoy a true low-maintenance lifestyle as the HOA manages all lawn care and landscaping. Welcome home to a peaceful, year-round retreat in a convenient Lakeland Hills location.