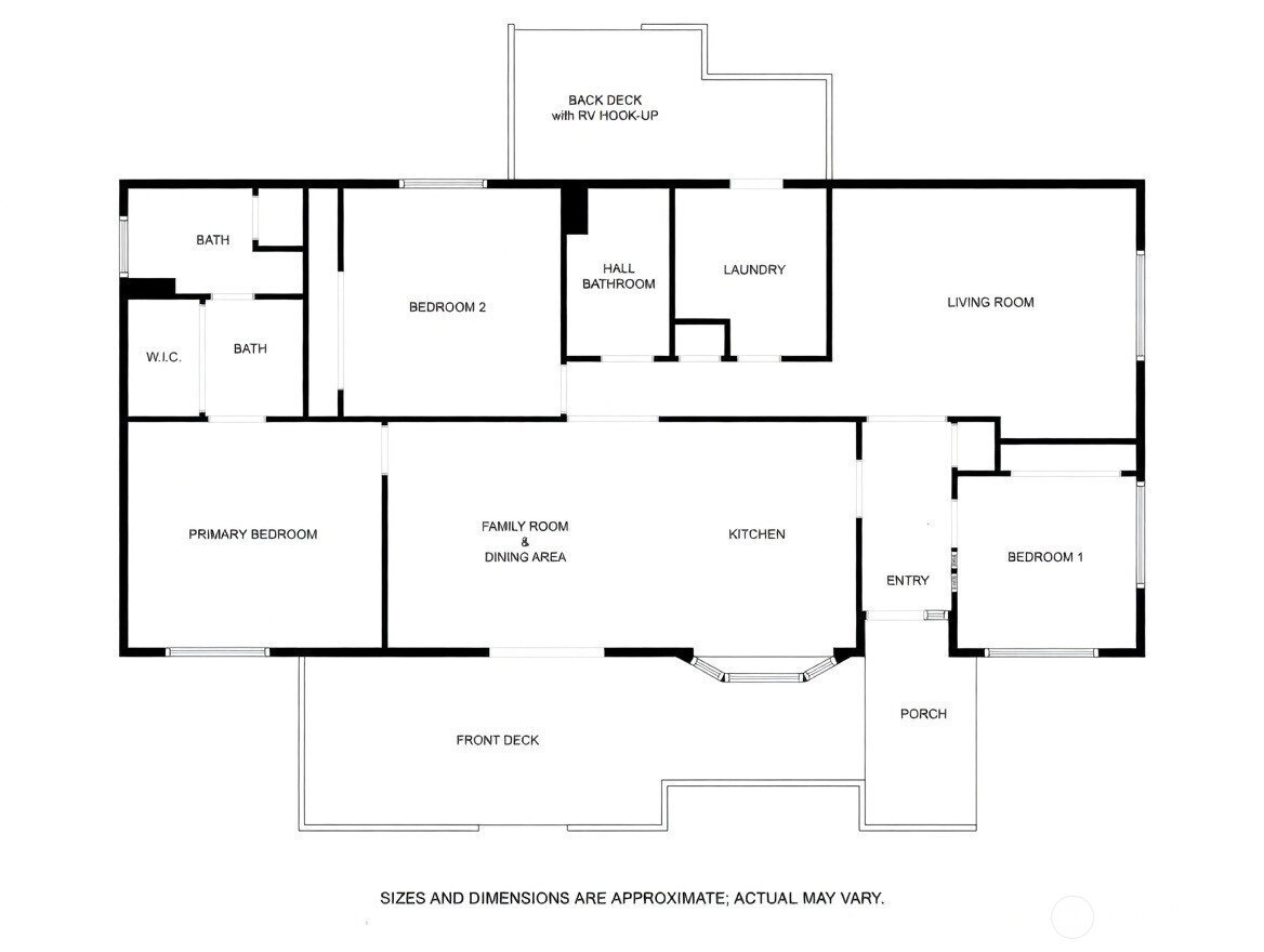
Space, flexibility & location come together in this Parkland property set on over half acre w/ rare NCOR zoning. Enjoy room to spread out while staying close to everything, just minutes from JBLM, Pacific Lutheran University & I-5 for an easy commute. Located near Midland within Franklin Pierce School District, this home offers a more open, residential feel while still within walking distance to local restaurants, shopping & everyday amenities. Expansive lot features fruit trees, garden space, RV parking & EV charging outlet, offering both lifestyle & long-term flexibility. Whether you're looking for space to live, work, or simply enjoy quieter setting without sacrificing convenience, this property delivers options rarely found at this price point. Recent updates & care shine through w/ newer roof (Nov 2024), 10 new foundation tie-downs (2024), regular professional maintenance & systems consistently serviced & tuned. Stay comfortable year-round w/ central A/C & heat pump. Inside, this 3-bed/2-bath home offers spacious layout w/ large living areas & bright kitchen featuring bay window for natural light. Enjoy both living room & separate family room, w/ sliding door access to entertainment-sized deck perfect for hosting, barbecues & gathering. Primary suite includes private bath & walk-in closet, while additional bedrooms are generously sized. Whether you're looking for move-in ready home, extra space or flexible use, this property offers it all! VA or Non-VA Assumable @ 6.125%
Listing Provided Courtesy of Rachel Veary, 1 Percent Lists Tacoma
General Information
NWM2508228
Manufactured On Land
1
DOM
3
0.55 acres
2
1682
1984
Pierce
Residential
Manufactured On Land
Listing Provided Courtesy of Rachel Veary, 1 Percent Lists Tacoma
Krishna Realty data last checked: Apr 17, 2026 05:22 | Listing last modified Apr 17, 2026 12:01,
Source:
Open House
Sat, Apr 18th, 2PM to 5PM
Download our Mobile app
Residence Information
1682
3
2
0
2
Composition
21 - Manuf-Double Wide
1984
None
None
Tie Down
Features and Utilities
Dishwasher, Disposal, Dryer, Microwave, Refrigerator, See Remarks, Stove(s)/Range(s), Washer
Space, flexibility & location come together in this Parkland property set on over half acre w/ rare NCOR zoning. Enjoy room to spread out while staying close to everything, just minutes from JBLM, Pacific Lutheran University & I-5 for an easy commute. Located near Midland within Franklin Pierce School District, this home offers a more open, residential feel while still within walking distance to local restaurants, shopping & everyday amenities. Expansive lot features fruit trees, garden space, RV parking & EV charging outlet, offering both lifestyle & long-term flexibility. Whether you're looking for space to live, work, or simply enjoy quieter setting without sacrificing convenience, this property delivers options rarely found at this price point. Recent updates & care shine through w/ newer roof (Nov 2024), 10 new foundation tie-downs (2024), regular professional maintenance & systems consistently serviced & tuned. Stay comfortable year-round w/ central A/C & heat pump. Inside, this 3-bed/2-bath home offers spacious layout w/ large living areas & bright kitchen featuring bay window for natural light. Enjoy both living room & separate family room, w/ sliding door access to entertainment-sized deck perfect for hosting, barbecues & gathering. Primary suite includes private bath & walk-in closet, while additional bedrooms are generously sized. Whether you're looking for move-in ready home, extra space or flexible use, this property offers it all! VA or Non-VA Assumable @ 6.125%