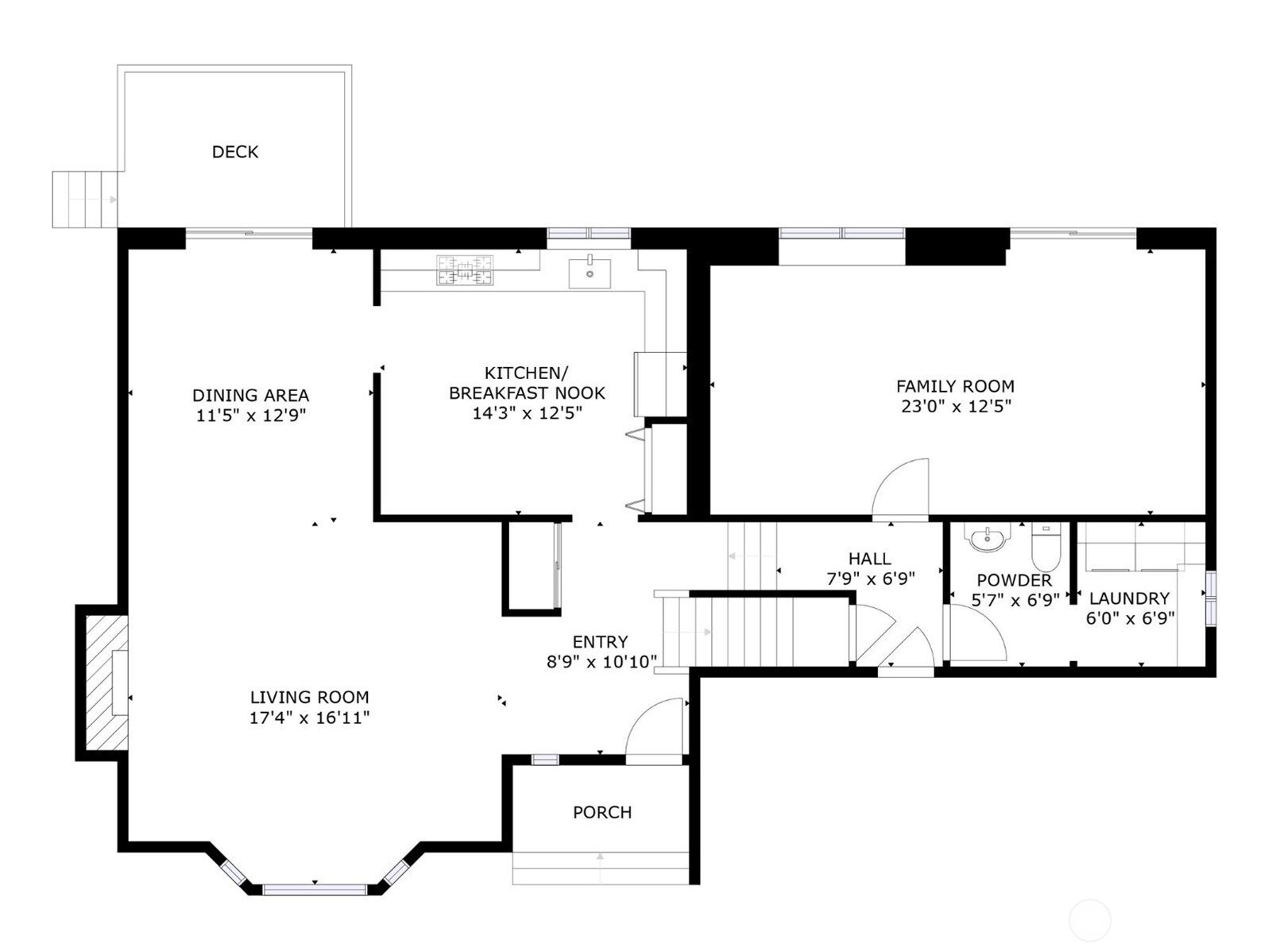
Located at the end of a cul-de-sac in the English Woods community, this move-in ready home offers a functional layout and numerous recent updates. The main level features a living room that flows through the dining area into the kitchen and out to the back deck, creating a connected layout for everyday living and gatherings. A lower-level family room provides additional space for entertainment, recreation, or a home office. Interior updates completed in 2026 include refinished hardwood floors, new carpet, fresh interior paint, refinished kitchen cabinets, quartz countertops, an updated bathroom, and a new sliding glass door leading to the backyard and deck. Additional improvements in recent years include a roof replaced in 2020, solar panels installed in 2021, crawlspace improvements in 2021, LifeProof vinyl plank flooring installed throughout the lower level in 2020, gutters with a leaf filter system installed in 2022, and a gas fireplace insert added in 2024. Outdoor features include a deck built in 2024 overlooking the large fully fenced backyard, outbuildings, a fire pit and space for outdoor activities, gardening, or entertaining. Conveniently located near local amenities, such as, Top Gun Bar & Grill, shopping and dining at South Hill Mall and Sunrise Village, and outdoor recreation at Frontier Park and Spanaway Lake Park.
Listing Provided Courtesy of Aaron Lawrenson, Coldwell Banker Bain
General Information
NWM2488449
Single Family Residence
0
DOM
3
0.36 acres
1.5
1984
1992
Pierce
Nelson Elem
Frontier Jnr Hi
Graham-Kapowsin
Residential
Single Family Residence
Listing Provided Courtesy of Aaron Lawrenson, Coldwell Banker Bain
Krishna Realty data last checked: Apr 16, 2026 15:18 | Listing last modified Apr 16, 2026 21:04,
Source:
Located at the end of a cul-de-sac in the English Woods community, this move-in ready home offers a functional layout and numerous recent updates. The main level features a living room that flows through the dining area into the kitchen and out to the back deck, creating a connected layout for everyday living and gatherings. A lower-level family room provides additional space for entertainment, recreation, or a home office. Interior updates completed in 2026 include refinished hardwood floors, new carpet, fresh interior paint, refinished kitchen cabinets, quartz countertops, an updated bathroom, and a new sliding glass door leading to the backyard and deck. Additional improvements in recent years include a roof replaced in 2020, solar panels installed in 2021, crawlspace improvements in 2021, LifeProof vinyl plank flooring installed throughout the lower level in 2020, gutters with a leaf filter system installed in 2022, and a gas fireplace insert added in 2024. Outdoor features include a deck built in 2024 overlooking the large fully fenced backyard, outbuildings, a fire pit and space for outdoor activities, gardening, or entertaining. Conveniently located near local amenities, such as, Top Gun Bar & Grill, shopping and dining at South Hill Mall and Sunrise Village, and outdoor recreation at Frontier Park and Spanaway Lake Park.