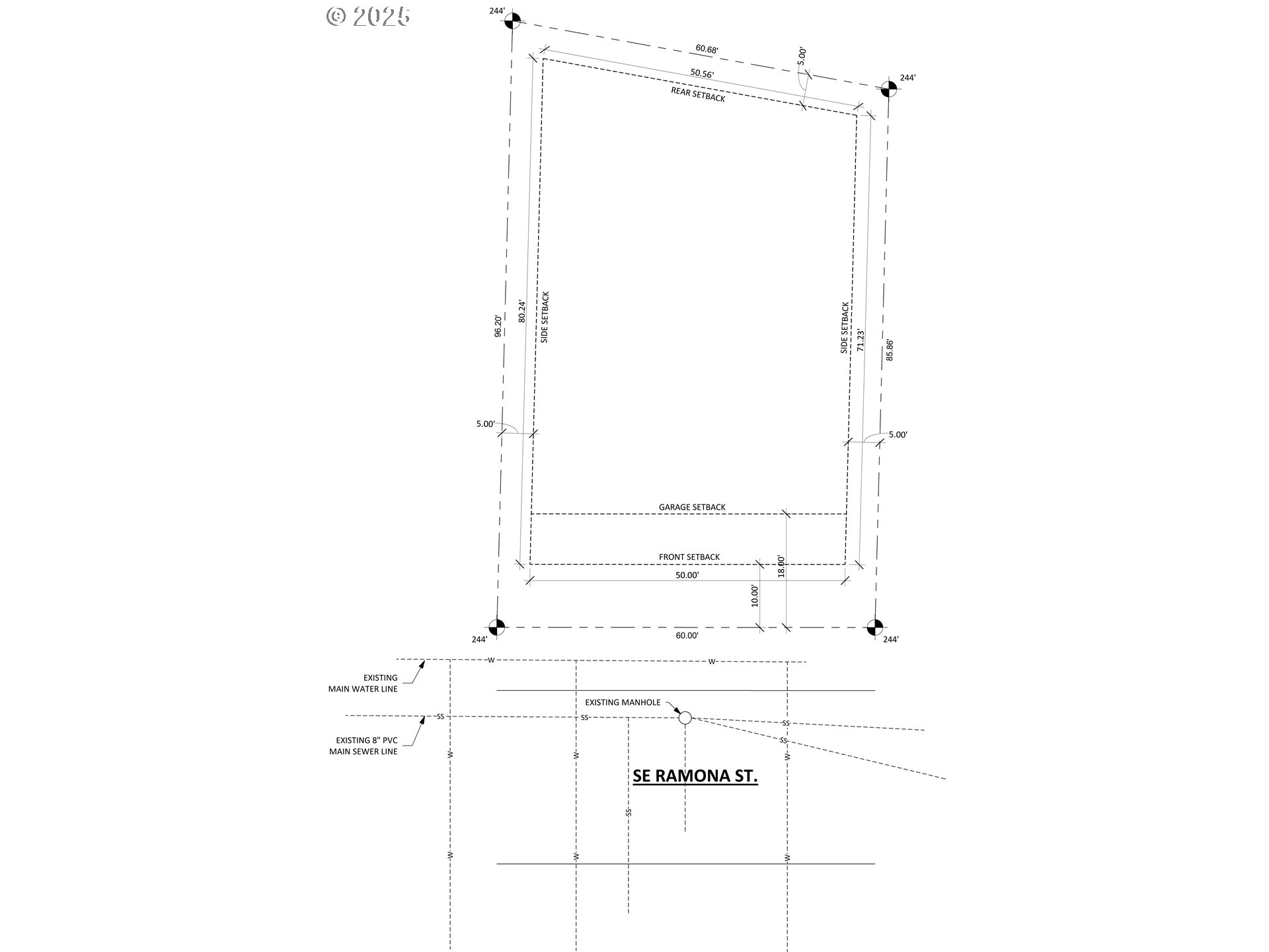
Raw vacant land located at 13851 SE Ramona St. Flat buildable lot in SE Portland, ideally located adjacent to the Springwater Corridor walking trail. This vacant parcel is zoned R5 with versatile residential development options—single-family, multifamily, or more (buyer to verify). A site plan is included in the images, as well as a few visual ideas of buildings that would fit on site. Don’t miss this opportunity in a rapidly developing area.
Listing Provided Courtesy of Eric Lehouiller, Real Broker
General Information
524460608
SingleFamilyResidence
195
DOM
5662.8 SqFt
R5
Multnomah
R723400
Gilbert Park 7/10
Alice Ott 6/10
David Douglas
Land
SingleFamilyResidence
LAMARGENT HTS, LOT 20 TL 802
Listing Provided Courtesy of Eric Lehouiller, Real Broker
Krishna Realty data last checked: Apr 30, 2026 00:55 | Listing last modified Apr 22, 2026 09:59,
Source:
Download our Mobile app
Residence Information
No
Features and Utilities
Financial
1740.03
0
Cash,Conventional
10-09-2025
No
No
Comparable Information
195
203
Cash,Conventional
$139,000
$130,000
Apr 22, 2026 09:59
Schools
public Elementary : Gilbert Park
7/10Ratingspublic Middle : Alice Ott
6/10Ratings High : David DouglasN/ARatings
Raw vacant land located at 13851 SE Ramona St. Flat buildable lot in SE Portland, ideally located adjacent to the Springwater Corridor walking trail. This vacant parcel is zoned R5 with versatile residential development options—single-family, multifamily, or more (buyer to verify). A site plan is included in the images, as well as a few visual ideas of buildings that would fit on site. Don’t miss this opportunity in a rapidly developing area.