Gresham, 97030
4 Bed
2 Bath
3204 SqFt
102 DOM
Built: 1947
$625,000
$625000
4 Bed
2 Bath
3204 SqFt
102 DOM
Built: 1947
Principal Broker
(503) 893-8874Beautifully Updated 4-Bedroom Home with Income Potential in Gresham! Welcome to this exceptional 4-bedroom, 2-bath home offering flexibility, charm, and a unique opportunity for additional income or multigenerational living. The fully private lower-level unit features its own entrance, full kitchen, laundry, and living space — perfect for guests, extended family, or rental income. Upstairs, the bright open-concept main floor is designed for modern living, showcasing an updated kitchen with granite countertops, bar seating, and ample cabinetry. Spacious living and dining areas flow seamlessly for easy entertaining and everyday comfort. Garden lovers will adore the 24’ x 14’ greenhouse, complete with natural gas heat, utility sink, and commercial fans — ideal for year-round gardening, hobby growing, or small-scale production. Step outside to your private backyard oasis, featuring a relaxing hot tub, tranquil water feature with koi pond, and a fully fenced yard that’s perfect for outdoor enjoyment. Located close to top-rated schools, Bella Vista Park, Gresham Station shopping, and with easy access to freeways and public transit, this home offers the perfect balance of convenience, versatility, and serenity. Don’t miss this rare opportunity — schedule your private tour today!
Listing Provided Courtesy of Ruben Isai, Modern Realty
373046555
SingleFamilyResidence
102 DOM
4
0.25 acres
2
3204
1947
Multnomah
R129523
East Gresham
Dexter McCarty
Gresham
Residential
SingleFamilyResidence
CASCADE VIEW AC, N 10' OF W 100' OF LOT 4, EXC PT IN ST-W 100' LO
Listing Provided Courtesy of Ruben Isai, Modern Realty
Krishna Realty data last checked: Jan 21, 2026 19:38 | Listing last modified Jan 20, 2026 16:04,
Source:
Download our Mobile app
0
2115
1089
3204
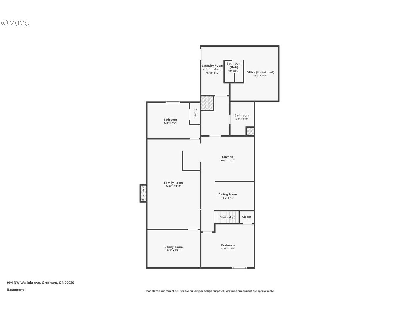
Floorplan
2115
2/Gas
4
2
0
2
Composition
2, Attached
Stories2
Driveway
2
1947
No
Cedar
Finished,FullBasement,SeparateLivingQuartersApartmentAuxLivingUnit
RVBoatStorage
Finished,FullBasemen
ConcretePerimeter
AluminumFrames,Doubl
BuiltinOven, BuiltinRefrigerator, Dishwasher, Granite, StainlessSteelAppliance
Granite, Laundry, SeparateLivingQuartersApartmentAuxLivingUnit
FreeStandingHotTub, Greenhouse, RVBoatStorage, ToolShed, WaterFeature, Yard
GarageonMain, MainFloorBedroomBath
CentralAir
Electricity
ForcedAir, GasStove
PublicSewer
Electricity
Electricity, Gas
5260.75
0
Cash,Conventional,FHA,VALoan
10-11-2025
No
No
102
102
Cash,Conventional,FHA,VALoan
$675,000
$625,000
Jan 20, 2026 16:04
Listing courtesy of Modern Realty.
The content relating to real estate for sale on this site comes in part from the IDX program of the RMLS of Portland, Oregon.
Real Estate listings held by brokerage firms other than this firm are marked with the RMLS logo, and
detailed information about these properties include the name of the listing's broker.
Listing content is copyright © 2019 RMLS of Portland, Oregon.
All information provided is deemed reliable but is not guaranteed and should be independently verified.
Krishna Realty data last checked: Jan 21, 2026 19:38 | Listing last modified Jan 20, 2026 16:04.
Some properties which appear for sale on this web site may subsequently have sold or may no longer be available.
Principal Broker
(503) 893-8874Beautifully Updated 4-Bedroom Home with Income Potential in Gresham! Welcome to this exceptional 4-bedroom, 2-bath home offering flexibility, charm, and a unique opportunity for additional income or multigenerational living. The fully private lower-level unit features its own entrance, full kitchen, laundry, and living space — perfect for guests, extended family, or rental income. Upstairs, the bright open-concept main floor is designed for modern living, showcasing an updated kitchen with granite countertops, bar seating, and ample cabinetry. Spacious living and dining areas flow seamlessly for easy entertaining and everyday comfort. Garden lovers will adore the 24’ x 14’ greenhouse, complete with natural gas heat, utility sink, and commercial fans — ideal for year-round gardening, hobby growing, or small-scale production. Step outside to your private backyard oasis, featuring a relaxing hot tub, tranquil water feature with koi pond, and a fully fenced yard that’s perfect for outdoor enjoyment. Located close to top-rated schools, Bella Vista Park, Gresham Station shopping, and with easy access to freeways and public transit, this home offers the perfect balance of convenience, versatility, and serenity. Don’t miss this rare opportunity — schedule your private tour today!
Download our Mobile app