Portland, 97212
4 Bed
3 Bath
2247 SqFt
85 DOM
Built: 1909
$783,900
Price cut: $100 (04-24-2026)
Portland 97212
$783900
Open House
Request Tour, Ask a Question or Start an Offer
Principal Broker
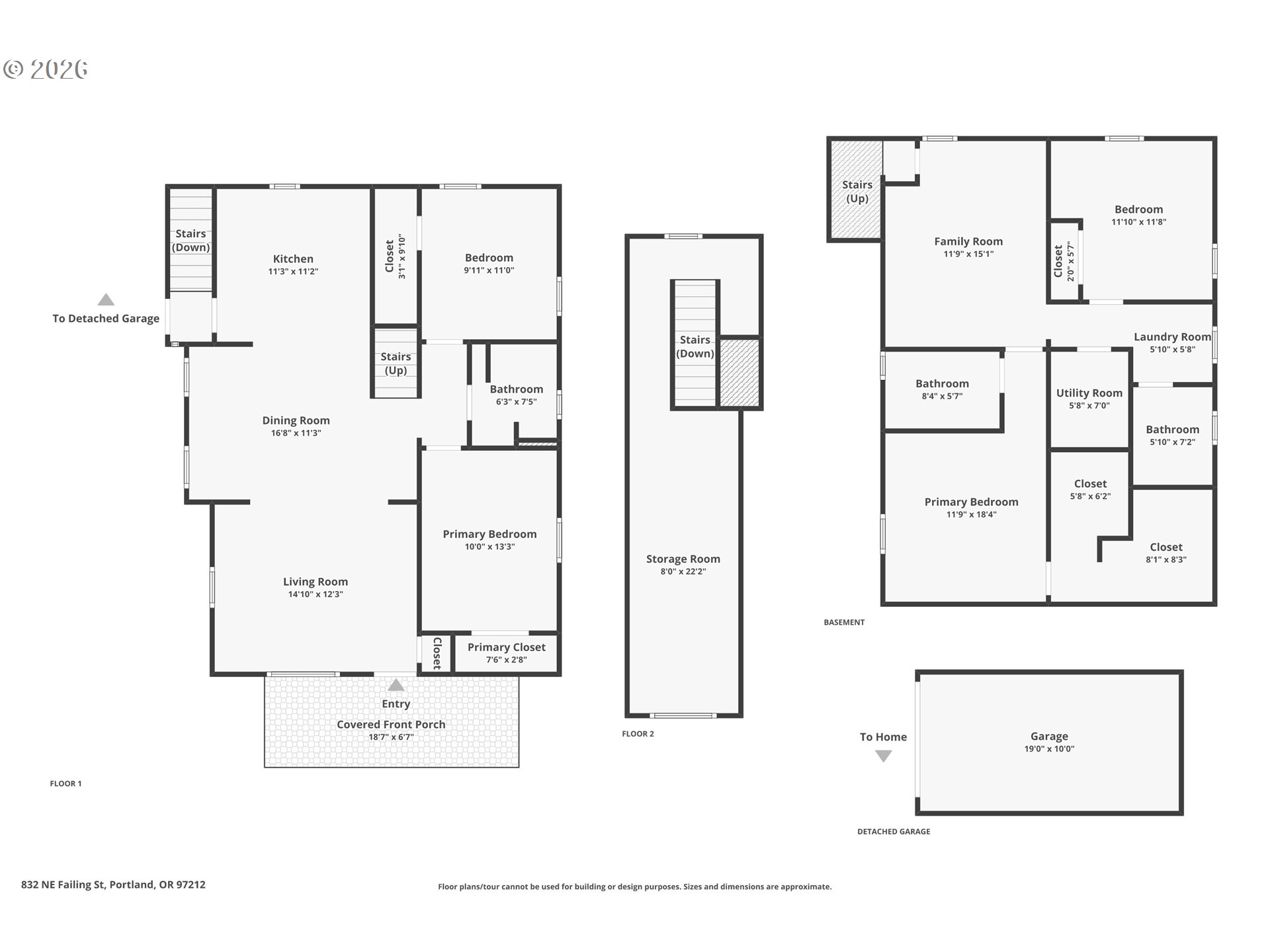
Located in the vibrant King–Alberta neighborhood, just minutes from the cafés, shops, galleries of the Alberta Arts District and dining along North Williams Avenue, this beautifully restored 1909 Craftsman blends timeless character with modern updates throughout.Offering a flexible and versatile layout designed for today’s lifestyle, this home features 4 bedrooms and 3 full bathrooms, including two primary-suite style configurations. Each level includes two bedrooms, a full bathroom, and a separate entrance, providing ideal separation for guests, extended living, or multi-generational living.The fully permitted lower level expands the home’s functionality with two bedrooms, a full bathroom, luxury vinyl flooring, and a private entrance—well-suited for guest quarters, home office, or extended household use.The main level features 10-foot ceilings, refinished hardwood floors, and a cozy electric fireplace. The fully updated kitchen includes new cabinetry, countertops, lighting, doors, and trim, complemented by three remodeled bathrooms.Extensive system and exterior upgrades include a new roof, updated plumbing and electrical, central HVAC with A/C, tankless water heater, restored cedar siding, new garage door, updated retaining walls and concrete stairs, French drain, and refreshed landscaping.Situated on a corner lot with a detached garage, this move-in-ready home offers a low-maintenance lifestyle in one of Northeast Portland’s most desirable and walkable neighborhoods. Ideal for buyers seeking flexible living space in a vibrant urban setting near parks, restaurants, schools, and local amenities.A rare opportunity to own a fully updated historic home combining charm, function, and location in the heart of Northeast Portland.Property taxes approx. $1,792.92/yr (buyer to verify).
Listing Provided Courtesy of Ahmed Elsayed, Realty One Group Prestige
MLS #305414519
TypeSingleFamilyResidence
Days on Market 85 DOM
Beds4
Lot Size 3484.8 SqFt
Baths3
SqFt2247
Year built1909
Zoning
CountyMultnomah
Tax IDR226469
ElemSabin 6/10
MiddleHarriet Tubman
HighJefferson
PropCategoryResidential
PropTypeSingleFamilyResidence
Neighborhood (Legal)NORTH IRVINGTON, BLOCK E, E 1/2 OF LOT 2
Krishna Realty data last checked: Apr 26, 2026 16:55 | Listing last modified Apr 24, 2026 10:03, Source:
Please Sign In or Create Account to view more details.
Download our Mobile app
Upper SqFt244
Main SqFt1014
Lower SqFt989
Total SqFt2247
SFSrcA Quailty
TotUp/Mn1258
Fireplaces1/Gas
Bdrms4
Full Bath3
Partial Bath0
Total Bath3
RoofShingle
Garage1, Detached
StyleStories2,Craftsman
Parking
Levels2
Year Built1909
Green CertNo
Energy Eff
ExteriorWoodSiding
Bsmt/FndFullBasement,Other
RV
URM
BasementFullBasement,Other
Foundation
WindowsDoublePaneWindows
Amenities
LivingFireplace, HardwoodFloors
KitchenDishwasher, Disposal, FreeStandingRange, Pantry, Quartz
InteriorLaminateFlooring, Laundry, LuxuryVinylPlank, Quartz, TileFloor, WasherDryer, WoodFloors
ExteriorPorch, Yard
Accessibility
CoolCentralAir
WaterGas
HeatForcedAir
SewerPublicSewer
Hot WaterGas
FuelGas
PTax/Yr1792.92
HOA0
HOA Incl
HOA Fee
Other Dues
Terms ConsideredCash,Conventional,FHA,OwnerWillCarry,Trade,VALoan
List Date01-29-2026
Rent (If Rented)
Bank Owned/REONo
Short SaleNo
Pending Date
DOM 85
CDOM 87
Sold Date
TermsCash,Conventional,FHA,OwnerWillCarry,Trade,VALoan
Original Price$895,000
List Price$783,900
Sold Price
Last ModifiedApr 24, 2026 10:03
Listing courtesy of Realty One Group Prestige.
The content relating to real estate for sale on this site comes in part from the IDX program of the RMLS of Portland, Oregon. Real Estate listings held by brokerage firms other than this firm are marked with the RMLS logo, and detailed information about these properties include the name of the listing's broker. Listing content is copyright © 2019 RMLS of Portland, Oregon. All information provided is deemed reliable but is not guaranteed and should be independently verified. Krishna Realty data last checked: Apr 26, 2026 16:55 | Listing last modified Apr 24, 2026 10:03. Some properties which appear for sale on this web site may subsequently have sold or may no longer be available.
Please Sign In or Create Account to view more listings.
$949,000
2 Bath
2250 SqFt
2 DOM
$1,100,000
3396 SqFt
$850,000
3 Bed
2519 SqFt
$845,000
1.5 Bath
2738 SqFt
3 DOM
<
>
Choose at least one recipient
You don't have access to share. Please contact admin.