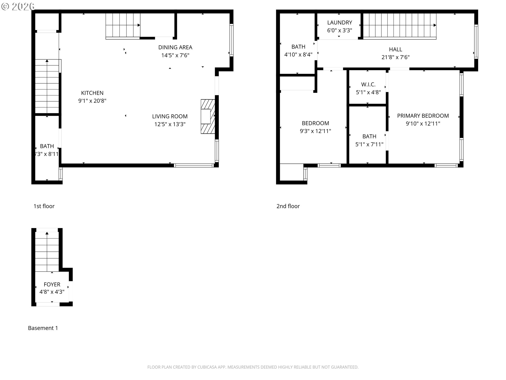
Welcome to this thoughtfully designed townhouse-style condo in the heart of St. Johns, one of North Portland’s most vibrant and community-driven neighborhoods. Scoring a 10 out of 10 home energy score, this 2-bedroom, 2.5-bath home features Earth Advantage certified construction, superior energy efficiency, comfort, and long-term sustainability. The open-concept main level is filled with natural light and designed for both everyday living and entertaining. Clean lines, modern finishes, and smart use of space create a warm, contemporary feel throughout. Upstairs, two spacious bedrooms, including a primary with its own ensuite bath and walk-in closet, providing privacy and flexibility for guests, roommates, or a home office setup. Appliances are included! Enjoy the peace of mind that comes with high-performance construction, lower utility costs, and environmentally conscious design. All of this is just moments from St. Johns’ local shops, restaurants, parks, and iconic Cathedral Park, with easy access to downtown Portland and beyond. A stylish, efficient home in a beloved North Portland neighborhood. This is St. Johns living at its best. [Home Energy Score = 10. HES Report at https://rpt.greenbuildingregistry.com/hes/OR10179179]
Listing Provided Courtesy of Devin Arthurs, Living Room Realty
General Information
355743326
Condominium
35
DOM
2
2.5
1264
2007
Multnomah
R588177
James John 2/10
George 1/10
Roosevelt 2/10
Residential
Condominium
MATTHEW FRANK CONDOMINIUM, LOT 6-1
Listing Provided Courtesy of Devin Arthurs, Living Room Realty
Krishna Realty data last checked: Mar 16, 2026 23:45 | Listing last modified Feb 19, 2026 10:44,
Source:
Welcome to this thoughtfully designed townhouse-style condo in the heart of St. Johns, one of North Portland’s most vibrant and community-driven neighborhoods. Scoring a 10 out of 10 home energy score, this 2-bedroom, 2.5-bath home features Earth Advantage certified construction, superior energy efficiency, comfort, and long-term sustainability. The open-concept main level is filled with natural light and designed for both everyday living and entertaining. Clean lines, modern finishes, and smart use of space create a warm, contemporary feel throughout. Upstairs, two spacious bedrooms, including a primary with its own ensuite bath and walk-in closet, providing privacy and flexibility for guests, roommates, or a home office setup. Appliances are included! Enjoy the peace of mind that comes with high-performance construction, lower utility costs, and environmentally conscious design. All of this is just moments from St. Johns’ local shops, restaurants, parks, and iconic Cathedral Park, with easy access to downtown Portland and beyond. A stylish, efficient home in a beloved North Portland neighborhood. This is St. Johns living at its best. [Home Energy Score = 10. HES Report at https://rpt.greenbuildingregistry.com/hes/OR10179179]