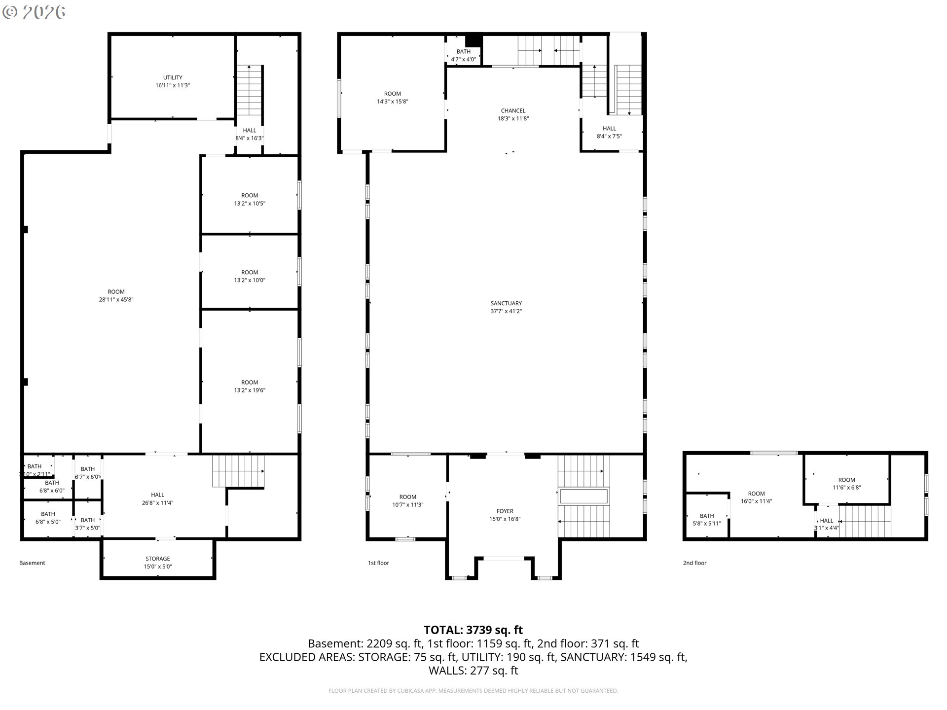
Charming church property in Northeast Portland’s desirable Concordia neighborhood, situated on a prominent corner lot spanning two tax lots totaling 0.53 acres. This unique offering includes the main church building and an adjacent lot, both zoned R5 (Residential 5,000), presenting exciting potential for future development such as middle housing options (cottage clusters, triplexes, fourplexes, sixplexes, and more). Buyer to perform all due diligence regarding development possibilities. The property includes Tax Lots R191035 (0.34 acres), featuring the church building and parking area, and R191036 (0.19 acres), both to be sold together. Inside, the main-level sanctuary seats approximately 160 and includes additional office space. The lower level features a kitchen that opens to a large multi-purpose area, along with two restrooms. An additional half bath is located on the upper level. The building offers abundant space and storage throughout. This property is being sold as-is, with no repairs to be made by the seller. Shown by appointment only. With its flexible layout and prime location, this property also presents excellent potential for alternative uses such as a childcare center, private or charter school, or other community-focused opportunities.
Listing Provided Courtesy of Joey McNamara, Real Broker
General Information
271844724
Church
24
DOM
0.53 acres
2915
1953
R5
Multnomah
R191035
CommercialSale
Church
IRVINGTON PK, BLOCK 94, LOT 6-8 & LOT 9-10
Listing Provided Courtesy of Joey McNamara, Real Broker
Krishna Realty data last checked: Apr 21, 2026 03:13 | Listing last modified Apr 21, 2026 00:12,
Source:
Charming church property in Northeast Portland’s desirable Concordia neighborhood, situated on a prominent corner lot spanning two tax lots totaling 0.53 acres. This unique offering includes the main church building and an adjacent lot, both zoned R5 (Residential 5,000), presenting exciting potential for future development such as middle housing options (cottage clusters, triplexes, fourplexes, sixplexes, and more). Buyer to perform all due diligence regarding development possibilities. The property includes Tax Lots R191035 (0.34 acres), featuring the church building and parking area, and R191036 (0.19 acres), both to be sold together. Inside, the main-level sanctuary seats approximately 160 and includes additional office space. The lower level features a kitchen that opens to a large multi-purpose area, along with two restrooms. An additional half bath is located on the upper level. The building offers abundant space and storage throughout. This property is being sold as-is, with no repairs to be made by the seller. Shown by appointment only. With its flexible layout and prime location, this property also presents excellent potential for alternative uses such as a childcare center, private or charter school, or other community-focused opportunities.