Portland, 97219
5 Bed
5 Bath
4020 SqFt
41 DOM
Built: 1900
$975,000
$975000
5 Bed
5 Bath
4020 SqFt
41 DOM
Built: 1900
Principal Broker
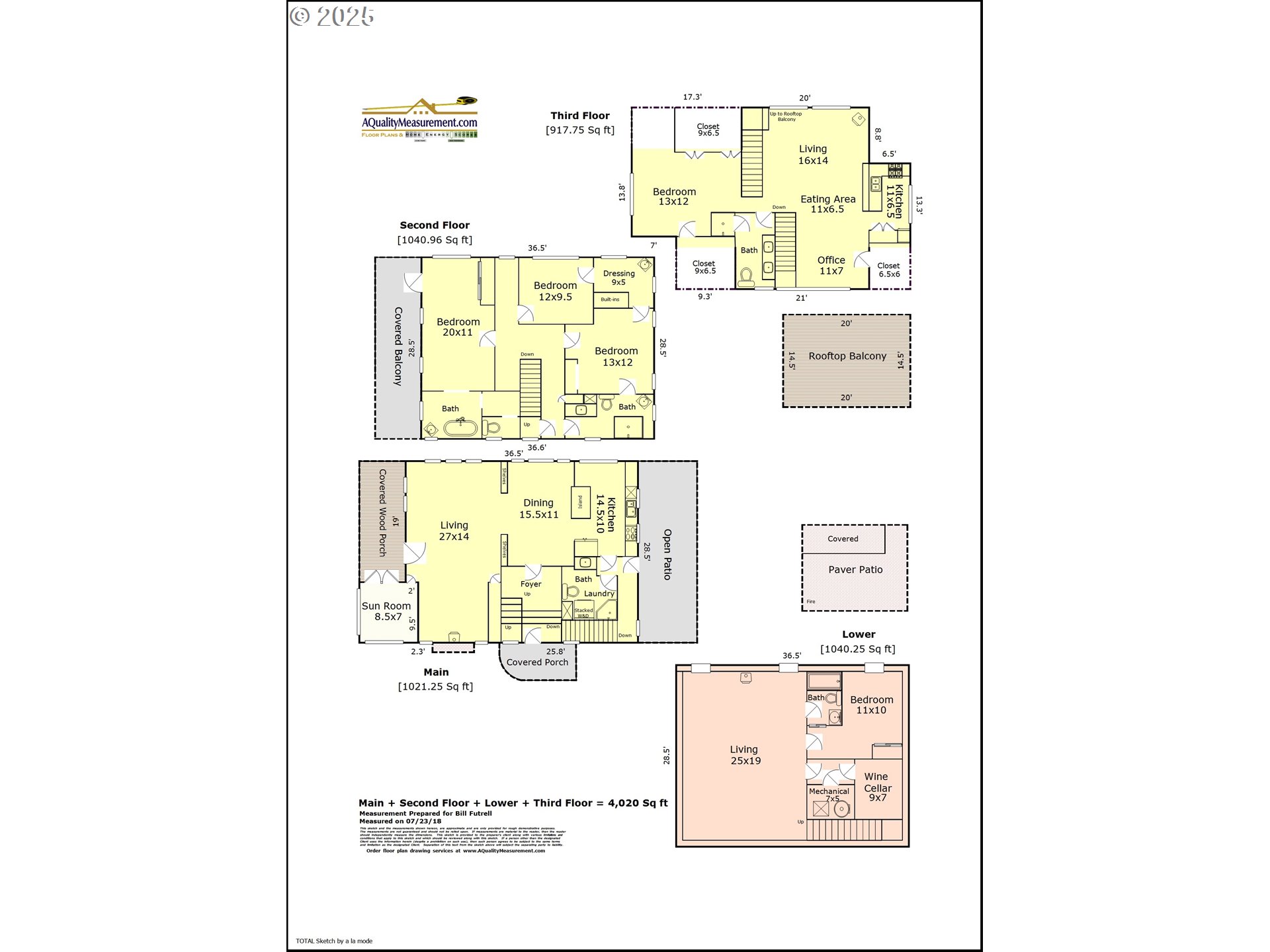
(503) 893-8874This is a very special property. Is currently the Fulton House Bed and Breakfast. Has financial records should buyer have interest in continuing it's commercial use. It would also make a wonderful large family home in a great location. The home has four suites and another bedroom for a total of 5 beds and 5 full baths. One bedroom on lower floor, two on second floor and one on the top floor with a second full kitchen and access to the rooftop deck with magnificent views of Mt Hood and the surrounding area. The lot is a corner lot with doors facing both Texas and Virginia. Has a large fenced yard with an amazing water feature and relaxing patio. Beautiful stained glass and many period features. Just a short distance to Zupan's and many restaurants and shops. Have your broker make an appointment to view this wonderful piece of Portland's history. [Home Energy Score = 1. HES Report at https://rpt.greenbuildingregistry.com/hes/OR10076253]
Listing Provided Courtesy of Bill Futrell, Windermere Realty Trust
243643136
SingleFamilyResidence
41 DOM
5
5227.2 SqFt
5
4020
1900
SFR
Multnomah
R273185
Capitol Hill 7/10
Jackson 8/10
Ida B Wells
Residential
SingleFamilyResidence
SOUTHERN PORTLAND, BLOCK 16, LOT 1
Listing Provided Courtesy of Bill Futrell, Windermere Realty Trust
Krishna Realty data last checked: Apr 11, 2026 14:38 | Listing last modified Apr 11, 2026 00:12,
Source:
Download our Mobile app
1041
1021
1040
4020
Appraiser
2062
3/Gas
5
5
0
5
Composition
Craftsman,Farmhouse
OnStreet
5
1900
Yes
Cedar, ShingleSiding
Finished,FullBasement
Finished,FullBasemen
ConcretePerimeter
BuiltinFeatures, Deck, Fireplace, HardwoodFloors
ConvectionOven, Dishwasher, FreeStandingGasRange, FreeStandingRefrigerator, GasAppliances, WineCooler
Floor4th, CeilingFan, HardwoodFloors, Laundry, SeparateLivingQuartersApartmentAuxLivingUnit, VaultedCeili
CoveredDeck, Fenced, Garden, Patio, Sprinkler, WaterFeature, Yard
Other
Electricity
Radiant
PublicSewer
Electricity
Electricity, Gas
12967.88
0
Conventional,VALoan
03-01-2026
No
No
41
41
Conventional,VALoan
$975,000
$975,000
Apr 11, 2026 00:12
Listing courtesy of Windermere Realty Trust.
The content relating to real estate for sale on this site comes in part from the IDX program of the RMLS of Portland, Oregon.
Real Estate listings held by brokerage firms other than this firm are marked with the RMLS logo, and
detailed information about these properties include the name of the listing's broker.
Listing content is copyright © 2019 RMLS of Portland, Oregon.
All information provided is deemed reliable but is not guaranteed and should be independently verified.
Krishna Realty data last checked: Apr 11, 2026 14:38 | Listing last modified Apr 11, 2026 00:12.
Some properties which appear for sale on this web site may subsequently have sold or may no longer be available.
Principal Broker
(503) 893-8874This is a very special property. Is currently the Fulton House Bed and Breakfast. Has financial records should buyer have interest in continuing it's commercial use. It would also make a wonderful large family home in a great location. The home has four suites and another bedroom for a total of 5 beds and 5 full baths. One bedroom on lower floor, two on second floor and one on the top floor with a second full kitchen and access to the rooftop deck with magnificent views of Mt Hood and the surrounding area. The lot is a corner lot with doors facing both Texas and Virginia. Has a large fenced yard with an amazing water feature and relaxing patio. Beautiful stained glass and many period features. Just a short distance to Zupan's and many restaurants and shops. Have your broker make an appointment to view this wonderful piece of Portland's history. [Home Energy Score = 1. HES Report at https://rpt.greenbuildingregistry.com/hes/OR10076253]
Download our Mobile app