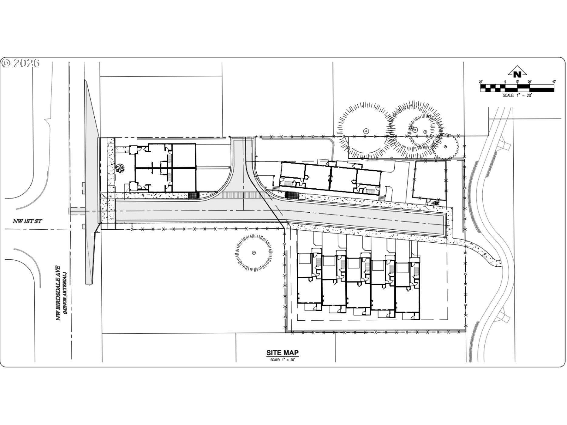
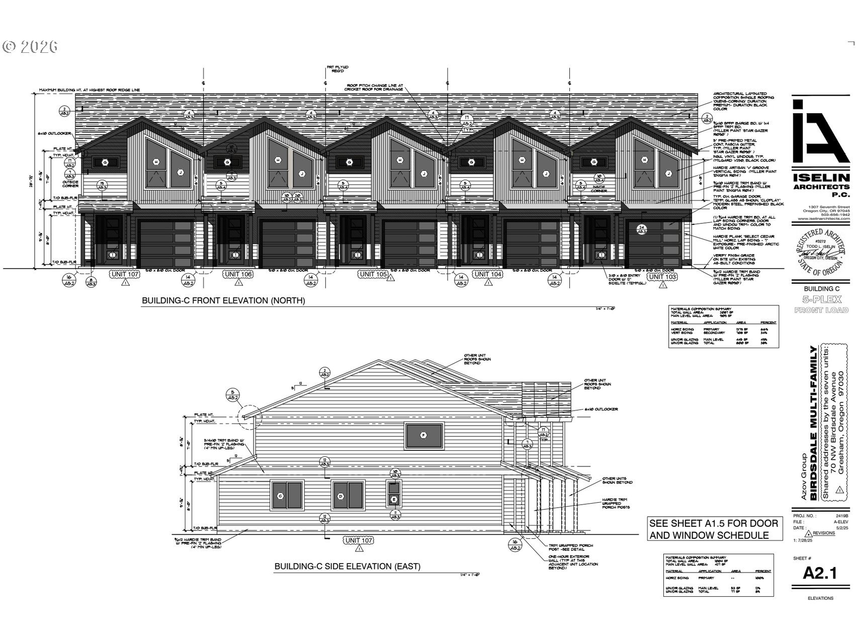
Permit-ready 9-unit townhome development site in Gresham — city only requires permit fees to begin construction. Fully entitled with approved architectural, civil engineering, and landscape plans. Two tax lots totaling 0.78 acres zoned CMU (Corridor Mixed Use), approved for two duplexes and one fiveplex. All nine units designed as 3-bedroom, 2.5-bath two-story townhomes averaging approximately 1,400 SF each (~12,600 SF total livable). Each unit includes a private garage with driveway parking. Site plan includes private driveways, children's play area, stormwater management, bike parking, and landscaped buffers. Flat, cleared lot with all utilities available at the street including public water, sewer, natural gas, and electricity. No existing structures. Located south of Powell Blvd near NW Civic Dr with easy access to MAX light rail, Gresham Station shopping, and Highway 26. Strong rental demand in the Gresham market makes this an ideal build-to-rent or build-to-sell opportunity. Complete entitlement package transfers with sale including civil drawings, architectural plans, and landscape permit set. Buyer selects general contractor and interior finishes. Seller is a licensed Oregon real estate broker with ownership interest in the property.
Listing Provided Courtesy of Daniel Tishchenko, Kelly Right Real Estate of Portland, LLC
General Information
624969330
MultiFamily
32
DOM
0.78 acres
CMU
Multnomah
R310803
North Gresham 4/10
Clear Creek 6/10
Gresham
Land
MultiFamily
WONDER VIEW AC, LOT 4&5 TL 4200 and TL 5000
Listing Provided Courtesy of Daniel Tishchenko, Kelly Right Real Estate of Portland, LLC
Krishna Realty data last checked: May 05, 2026 03:48 | Listing last modified Apr 25, 2026 21:54,
Source:
Download our Mobile app
Residence Information
No
Features and Utilities
Financial
3310.9
0
CallListingAgent,Cash,Conventional
03-24-2026
No
No
Comparable Information
32
42
CallListingAgent,Cash,Conventional
$1,000,000
$850,000
Apr 25, 2026 21:54
Schools
public Elementary : North Gresham
4/10Ratingspublic Middle : Clear Creek
6/10Ratingsprivate High : GreshamN/ARatings
Map
Listing courtesy of Kelly Right Real Estate of Portland, LLC.
Permit-ready 9-unit townhome development site in Gresham — city only requires permit fees to begin construction. Fully entitled with approved architectural, civil engineering, and landscape plans. Two tax lots totaling 0.78 acres zoned CMU (Corridor Mixed Use), approved for two duplexes and one fiveplex. All nine units designed as 3-bedroom, 2.5-bath two-story townhomes averaging approximately 1,400 SF each (~12,600 SF total livable). Each unit includes a private garage with driveway parking. Site plan includes private driveways, children's play area, stormwater management, bike parking, and landscaped buffers. Flat, cleared lot with all utilities available at the street including public water, sewer, natural gas, and electricity. No existing structures. Located south of Powell Blvd near NW Civic Dr with easy access to MAX light rail, Gresham Station shopping, and Highway 26. Strong rental demand in the Gresham market makes this an ideal build-to-rent or build-to-sell opportunity. Complete entitlement package transfers with sale including civil drawings, architectural plans, and landscape permit set. Buyer selects general contractor and interior finishes. Seller is a licensed Oregon real estate broker with ownership interest in the property.