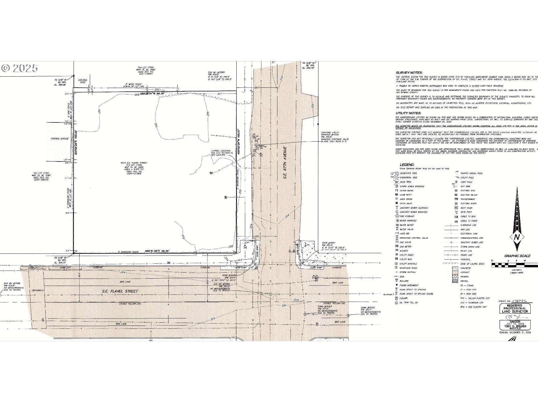
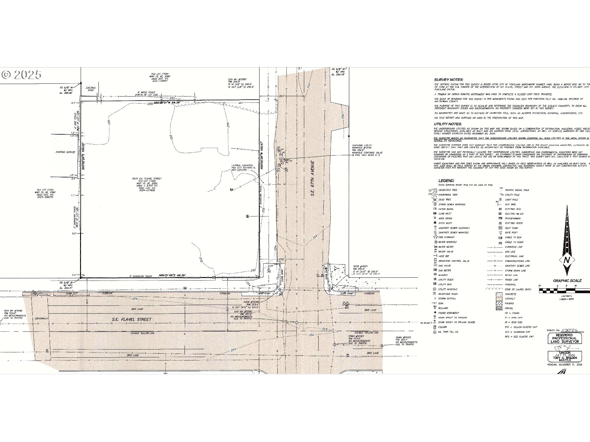
Calling all builders and developers! This is your chance to capitalize on Portland’s infill zoning and middle housing incentives. The double corner lot is located in one of Portland's most desirable growth areas near schools, parks, and walkable neighborhood amenities. It has been fully cleared of trees and structures and is perfectly level—-ready for your next project. Multiple build options make this property ideal for a variety of business models and investment strategies. Work with the city to create a charming cottage cluster, or easily split the lot into two parcels to accommodate up to eight residential units. Several other product types and configurations can be accommodated here in pursuit of the highest and best use for you. Buyers will need to do all of their due diligence with the city to explore all that this lot has to offer. Enjoy massive cost savings with no SDC fees for the next three years! All utilities, water, sewer, and power are available for connection, and a corner ADA ramp has already been installed. Survey will be included with the sale. Don’t miss this incredible opportunity, contact your agent today for details!
Listing Provided Courtesy of Adriane Bovero, All County Real Estate
General Information
136394200
SingleFamilyResidence
29
DOM
10018.8 SqFt
R5
Multnomah
R120456
Whitman 5/10
Lane 4/10
Cleveland
Land
SingleFamilyResidence
BRENTWOOD & SUB, BLOCK 16, LOT 5 EXC N 60'
Listing Provided Courtesy of Adriane Bovero, All County Real Estate
Krishna Realty data last checked: Dec 05, 2025 08:15 | Listing last modified Nov 06, 2025 06:44,
Source:
Download our Mobile app
Residence Information
No
Features and Utilities
Financial
5129.81
0
Cash,Conventional
11-06-2025
No
No
Comparable Information
29
29
Cash,Conventional
$395,000
$395,000
Nov 06, 2025 06:44
Schools
public Elementary : Whitman
5/10Ratingspublic Middle : Lane
4/10Ratings High : ClevelandN/ARatings
Calling all builders and developers! This is your chance to capitalize on Portland’s infill zoning and middle housing incentives. The double corner lot is located in one of Portland's most desirable growth areas near schools, parks, and walkable neighborhood amenities. It has been fully cleared of trees and structures and is perfectly level—-ready for your next project. Multiple build options make this property ideal for a variety of business models and investment strategies. Work with the city to create a charming cottage cluster, or easily split the lot into two parcels to accommodate up to eight residential units. Several other product types and configurations can be accommodated here in pursuit of the highest and best use for you. Buyers will need to do all of their due diligence with the city to explore all that this lot has to offer. Enjoy massive cost savings with no SDC fees for the next three years! All utilities, water, sewer, and power are available for connection, and a corner ADA ramp has already been installed. Survey will be included with the sale. Don’t miss this incredible opportunity, contact your agent today for details!