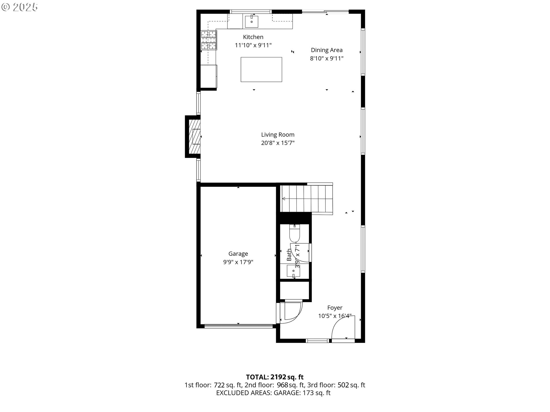
BOM after contingent sale failed. No fault of seller or home. Built in 2023, this stunning like new 4-bedroom, 3.5-bath home blends contemporary design, thoughtful upgrades, and an unbeatable location just blocks from Brentwood Park. Offering 2,135 square feet of stylish living space, this move-in-ready residence features an open-concept layout perfect for modern lifestyles. The bright and spacious kitchen showcases stainless steel appliances, ample storage, and a large island that connects seamlessly to the dining and living areas; ideal for entertaining or relaxing with family. Upstairs, the primary suite provides a peaceful retreat with a beautifully finished en-suite bath and generous closet space. Additional bedrooms offer flexibility for guests, a home office, or hobbies.Recent updates include new air conditioning and custom window coverings throughout, adding comfort and style. Enjoy a low-maintenance front yard and a well-designed floor plan that maximizes both space and natural light. Located in the desirable Brentwood-Darlington neighborhood, you’ll love the parks, schools, shops, and local dining favorites. Easy access to nearby Sellwood and Woodstock means weekend markets, coffee spots, and vibrant community amenities are just minutes away. Experience the perfect balance of modern living and Portland charm; this home truly has it all!
Listing Provided Courtesy of Logan Straub, SimpliHOM
General Information
783031299
SingleFamilyResidence
64
DOM
4
3049.2 SqFt
3.5
2135
2023
Multnomah
R709576
Whitman 5/10
Lane 4/10
Franklin 5/10
Residential
SingleFamilyResidence
PARTITION PLAT 2021-23, LOT 3
Listing Provided Courtesy of Logan Straub, SimpliHOM
Krishna Realty data last checked: Jan 19, 2026 14:01 | Listing last modified Jan 16, 2026 17:18,
Source:
Download our Mobile app
Residence Information
1398
737
0
2135
Builder
2135
1/Gas
4
3
1
3.5
Composition
1, Attached
Traditional,TriLevel
OffStreet
3
2023
No
CementSiding, LapSiding
CrawlSpace
CrawlSpace
ConcretePerimeter
VinylFrames
Features and Utilities
Fireplace
Dishwasher, FreeStandingRefrigerator, GasAppliances, Island, Microwave, StainlessSteelAppliance
HardwoodFloors, WalltoWallCarpet
Fenced, Yard
GarageonMain, NaturalLighting
CentralAir
Electricity
ForcedAir
PublicSewer
Electricity
Gas
Financial
8255.13
0
Cash,Conventional,FHA,VALoan
11-14-2025
No
No
Comparable Information
64
66
Cash,Conventional,FHA,VALoan
$609,900
$609,900
Jan 16, 2026 17:18
Schools
public Elementary : Whitman
5/10Ratingspublic Middle : Lane
4/10Ratingspublic High : Franklin
5/10Ratings
BOM after contingent sale failed. No fault of seller or home. Built in 2023, this stunning like new 4-bedroom, 3.5-bath home blends contemporary design, thoughtful upgrades, and an unbeatable location just blocks from Brentwood Park. Offering 2,135 square feet of stylish living space, this move-in-ready residence features an open-concept layout perfect for modern lifestyles. The bright and spacious kitchen showcases stainless steel appliances, ample storage, and a large island that connects seamlessly to the dining and living areas; ideal for entertaining or relaxing with family. Upstairs, the primary suite provides a peaceful retreat with a beautifully finished en-suite bath and generous closet space. Additional bedrooms offer flexibility for guests, a home office, or hobbies.Recent updates include new air conditioning and custom window coverings throughout, adding comfort and style. Enjoy a low-maintenance front yard and a well-designed floor plan that maximizes both space and natural light. Located in the desirable Brentwood-Darlington neighborhood, you’ll love the parks, schools, shops, and local dining favorites. Easy access to nearby Sellwood and Woodstock means weekend markets, coffee spots, and vibrant community amenities are just minutes away. Experience the perfect balance of modern living and Portland charm; this home truly has it all!