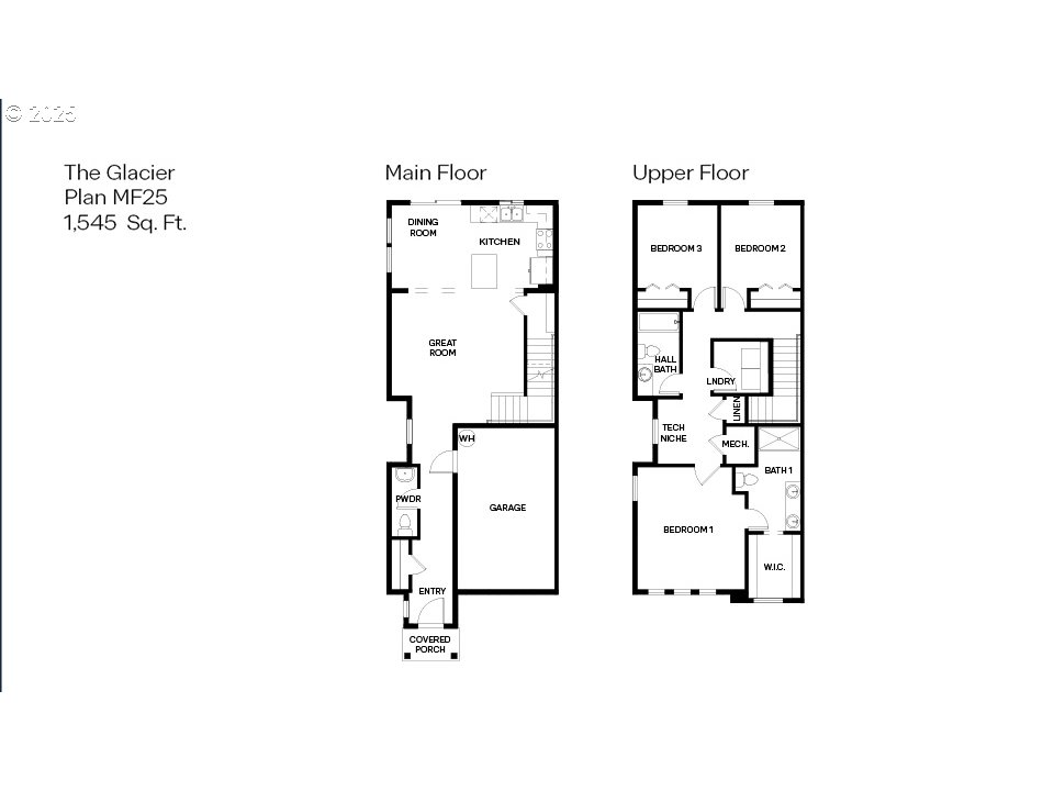
New construction corner unit in Gresham with spacious backyard! This two-story Glacier townhome features 3 bedrooms, 2.5 bathrooms, an attached garage, and offers 1,545 square feet of space with extended flooring. Past the entryway, the space opens into a seamless and sparkling great room that flows into the kitchen and dining area. Foodies will rejoice in the chef-inspired kitchen that features solid quartz countertops, a spacious pantry, an island, and stainless-steel appliances. The upstairs has a lovely tech niche for added space, and a laundry room for added convenience. The spacious primary bedroom features a spacious walk-in closet and double vanity. The second and third bedroom are located by the secondary bathroom, giving you the option to create a home gym or an at-home office space. Receive closing cost credit with use of builder’s preferred lender, reach out for more details. Photos are representative of plan only and finishes may vary as built. The community offers serene living in Gresham, with convenient access to the highway. Discover nearby shopping centers and scenic parks, providing the perfect balance of beautiful views and outdoor adventure. Come visit The Vineyards at Blue Pearl and claim your Glacier today! Sales office hours are Wednesdays and Sundays 9:30am – 4:30pm and by appointment!
Listing Provided Courtesy of Heather Quirke, D. R. Horton, Inc Portland
General Information
561548106
Attached
0
DOM
3
2.5
1545
2026
Multnomah
New Construction
Powell Valley 3/10
Gordon Russell 4/10
Sam Barlow 4/10
Residential
Attached
The Vineyards at Blue Pearl
Listing Provided Courtesy of Heather Quirke, D. R. Horton, Inc Portland
Krishna Realty data last checked: Dec 29, 2025 16:02 | Listing last modified Dec 29, 2025 09:51,
Source:
Open House
Wed, Dec 31st, 9AM to 4PM
Sun, Jan 4th, 9AM to 4PM
Wed, Jan 7th, 9AM to 4PM
Download our Mobile app
Residence Information
688
857
0
1545
Builder
1545
3
2
1
2.5
Composition,Shingle
1, Attached
Stories2,Townhouse
Driveway,OffStreet
2
2026
No
CementSiding
CrawlSpace
CrawlSpace
DoublePaneWindows,Vi
Commons, ExteriorMain
Features and Utilities
Dishwasher, FreeStandingRange, Island, Microwave, Pantry, PlumbedForIceMaker, Quartz, StainlessSteelApplian
Laundry, LuxuryVinylPlank
Patio, Yard
HeatPump, MiniSplit
Electricity
HeatPump, MiniSplit
PublicSewer
Electricity
Electricity
Financial
0
1
176 / Month
Cash,Conventional,FHA,VALoan
12-29-2025
No
No
Comparable Information
0
0
Cash,Conventional,FHA,VALoan
$399,995
$399,995
Dec 29, 2025 09:51
Schools
public Elementary : Powell Valley
3/10Ratingspublic Middle : Gordon Russell
4/10Ratingspublic High : Sam Barlow
4/10Ratings
New construction corner unit in Gresham with spacious backyard! This two-story Glacier townhome features 3 bedrooms, 2.5 bathrooms, an attached garage, and offers 1,545 square feet of space with extended flooring. Past the entryway, the space opens into a seamless and sparkling great room that flows into the kitchen and dining area. Foodies will rejoice in the chef-inspired kitchen that features solid quartz countertops, a spacious pantry, an island, and stainless-steel appliances. The upstairs has a lovely tech niche for added space, and a laundry room for added convenience. The spacious primary bedroom features a spacious walk-in closet and double vanity. The second and third bedroom are located by the secondary bathroom, giving you the option to create a home gym or an at-home office space. Receive closing cost credit with use of builder’s preferred lender, reach out for more details. Photos are representative of plan only and finishes may vary as built. The community offers serene living in Gresham, with convenient access to the highway. Discover nearby shopping centers and scenic parks, providing the perfect balance of beautiful views and outdoor adventure. Come visit The Vineyards at Blue Pearl and claim your Glacier today! Sales office hours are Wednesdays and Sundays 9:30am – 4:30pm and by appointment!