Portland, 97202
3 Bed
2 Bath
2174 SqFt
0 DOM
Built: 1946
$699,000
$699000
3 Bed
2 Bath
2174 SqFt
0 DOM
Built: 1946
Open House
Principal Broker
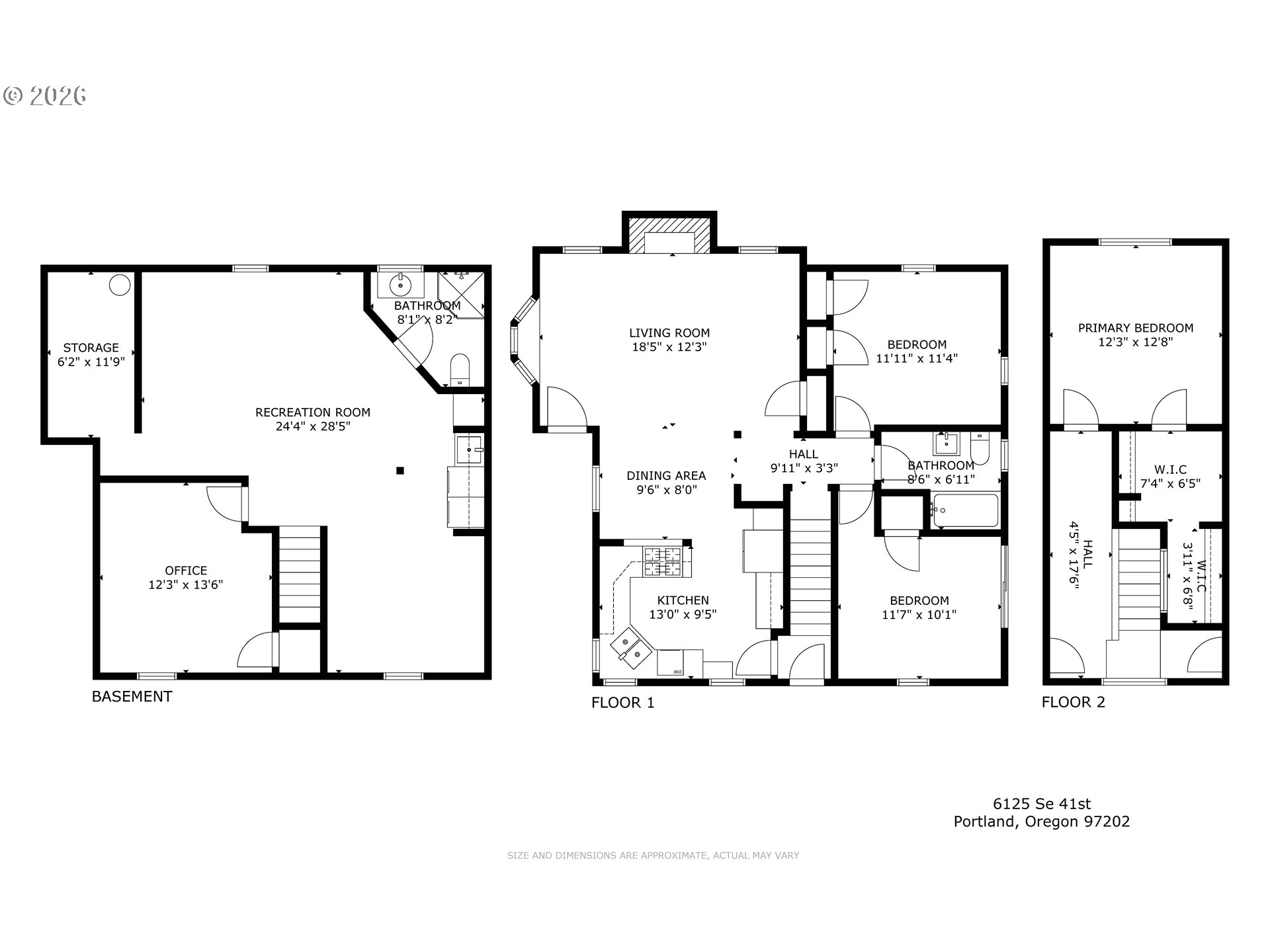
(503) 893-8874This storybook charmer is nestled just around the corner from coveted Woodstock shops, restaurants, and parks. With the perfect blend of original details and updates, the main level features two bedrooms and a full bathroom, the upper level has a serene primary bedroom with walk-in closet, and the basement has a generous family room, office, game nook, and a second full bathroom. Throughout you'll find original oak floors and original fireplace with immaculate 1940s tile, a sweetly refreshed kitchen, updated windows, built-ins and plenty of storage, and newer fixtures. The backyard is an urban sanctuary, with a new covered deck and gardens just starting to pop for spring, plus a detached garage with workshop space. All of this with Eastmoreland schools and one of the most idyllic neighborhoods Portland has to offer. [Home Energy Score = 3. HES Report at https://rpt.greenbuildingregistry.com/hes/OR10227254]
Listing Provided Courtesy of Natalie Tracy, Living Room Realty
103780303
SingleFamilyResidence
0 DOM
3
5227.2 SqFt
2
2174
1946
Multnomah
R312736
Duniway 6/10
Sellwood 8/10
Cleveland 5/10
Residential
SingleFamilyResidence
WOODSTOCK, BLOCK 46, N 1/2 OF LOT 2
Listing Provided Courtesy of Natalie Tracy, Living Room Realty
Krishna Realty data last checked: Mar 19, 2026 22:35 | Listing last modified Mar 19, 2026 16:57,
Source:
Sat, Mar 21st, 1PM to 3PM
Download our Mobile app
330
922
922
2174
RMLS
1252
1/Gas
3
2
0
2
Composition
1, Detached
Capecod
Driveway,OffStreet
3
1946
Yes
ShakeSiding, WoodSiding
Finished,FullBasement
Finished,FullBasemen
ConcretePerimeter
DoublePaneWindows
BayWindow, HardwoodFloors
Dishwasher, FreeStandingGasRange, FreeStandingRefrigerator, Microwave, StainlessSteelAppliance
CeilingFan, HardwoodFloors, Laundry, WalltoWallCarpet, WasherDryer
CoveredDeck, Fenced, Garden, PoultryCoop, RaisedBeds, Yard
MainFloorBedroomBath
CentralAir
Gas
ForcedAir
PublicSewer
Gas
Gas
7032.63
0
Cash,Conventional,FHA,VALoan
03-19-2026
No
No
0
0
Cash,Conventional,FHA,VALoan
$699,000
$699,000
Mar 19, 2026 16:57
Listing courtesy of Living Room Realty.
The content relating to real estate for sale on this site comes in part from the IDX program of the RMLS of Portland, Oregon.
Real Estate listings held by brokerage firms other than this firm are marked with the RMLS logo, and
detailed information about these properties include the name of the listing's broker.
Listing content is copyright © 2019 RMLS of Portland, Oregon.
All information provided is deemed reliable but is not guaranteed and should be independently verified.
Krishna Realty data last checked: Mar 19, 2026 22:35 | Listing last modified Mar 19, 2026 16:57.
Some properties which appear for sale on this web site may subsequently have sold or may no longer be available.
Principal Broker
(503) 893-8874This storybook charmer is nestled just around the corner from coveted Woodstock shops, restaurants, and parks. With the perfect blend of original details and updates, the main level features two bedrooms and a full bathroom, the upper level has a serene primary bedroom with walk-in closet, and the basement has a generous family room, office, game nook, and a second full bathroom. Throughout you'll find original oak floors and original fireplace with immaculate 1940s tile, a sweetly refreshed kitchen, updated windows, built-ins and plenty of storage, and newer fixtures. The backyard is an urban sanctuary, with a new covered deck and gardens just starting to pop for spring, plus a detached garage with workshop space. All of this with Eastmoreland schools and one of the most idyllic neighborhoods Portland has to offer. [Home Energy Score = 3. HES Report at https://rpt.greenbuildingregistry.com/hes/OR10227254]
Download our Mobile app