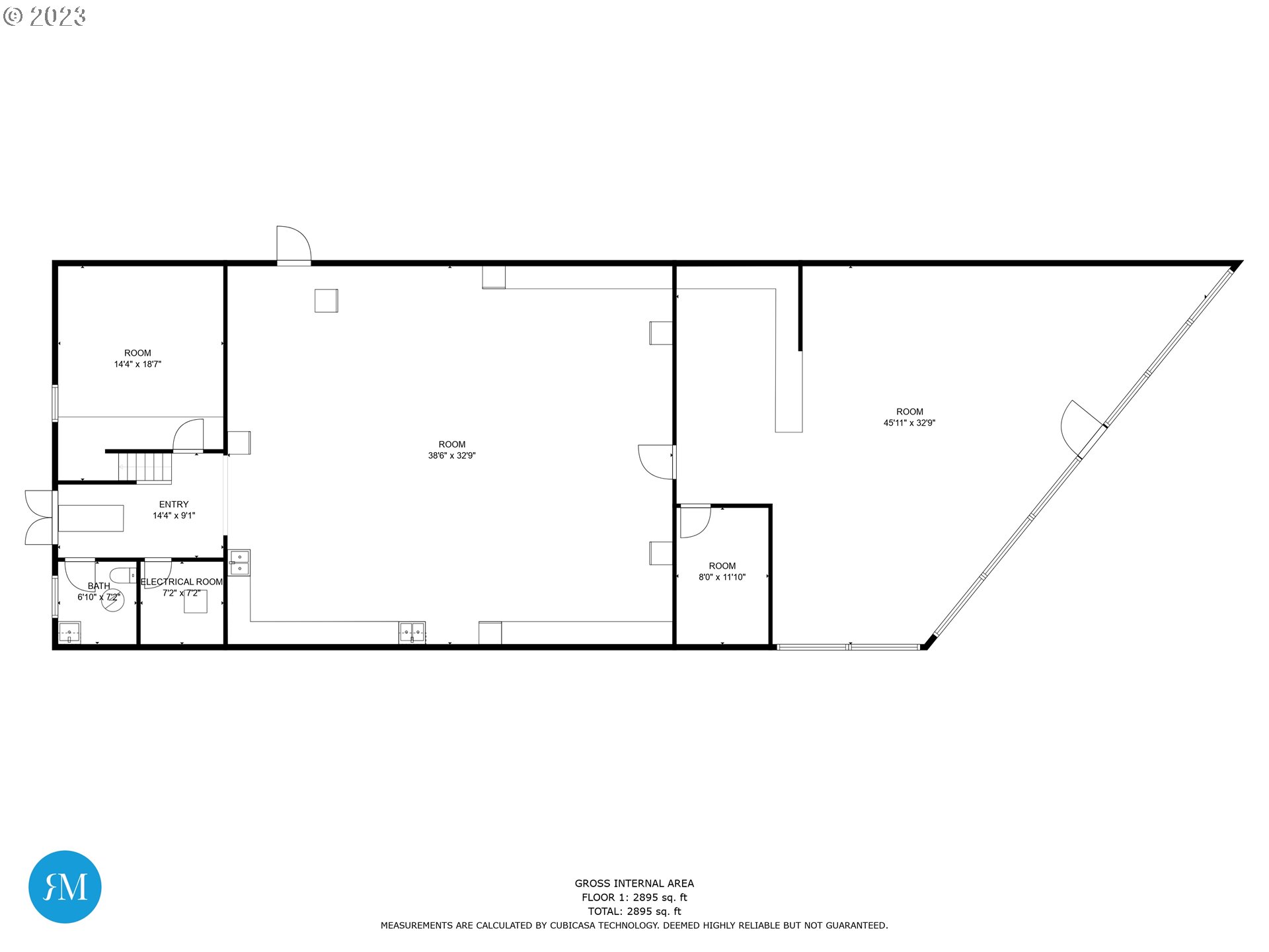
NEW PRICE! Standalone 3,167 SF commercial building with strong visibility along SE Foster Road. The cedar-clad facade and tall storefront windows provide excellent presence on a well-traveled corridor. CE zoning supports a broad mix of business types, allowing future owners to operate retail, office, wellness, studio, counseling, or light production concepts. This zoning flexibility makes the property attractive to both owner-users and investors seeking a versatile asset in a high-exposure location.The front of the building includes a large showroom with 12-foot ceilings and expansive windows that bring in natural light. A built-in cashier/checkout stand provides a ready-made setup for retail or service businesses. A private office is also included, offering space for administrative or consulting use.The rear section of the building offers additional workspace, well-suited for production, storage, or future buildout. A set of rear double freight-style doors provide practical access for equipment and supplies, with street-grade entry leading into the shop.Recent improvements include windows and new rear doors, along with an upgraded security system. The property can serve as an owner-user opportunity or investment.Positioned directly on SE Foster Road, the property benefits from steady daily traffic of approximately 19,000 vehicles, providing excellent visibility and exposure. On-street parking in front of the building makes it easy for customers and clients to access the site. The location is approximately 2.5 miles from Interstate 205 and 4 miles from Highway 26, ensuring convenient connectivity throughout the Portland metro area.
Listing Provided Courtesy of John McClay, Berkshire Hathaway HomeServices NW Real Estate
General Information
23036589
Commercial
1137
DOM
3049.2 SqFt
3167
1949
CE MU-C
Multnomah
R224570
CommercialSale
Commercial
MYRTLE PK, BLOCK 2, INC STRIP N OF & ADJ W 35' OF LOT 6
Listing Provided Courtesy of John McClay, Berkshire Hathaway HomeServices NW Real Estate
Krishna Realty data last checked: Apr 28, 2026 15:58 | Listing last modified Apr 17, 2026 17:27,
Source:
Download our Mobile app
Residence Information
3167
TarGravel
OnStreet
1
1949
No
Features and Utilities
ForcedAir
PublicSewer
Oil
Financial
5138.12
Cash,Conventional
03-08-2023
Yes
No
Comparable Information
1137
1147
Cash,Conventional
$1,100,000
$639,000
Apr 17, 2026 17:27
Schools
Map
Listing courtesy of Berkshire Hathaway HomeServices NW Real Estate.
NEW PRICE! Standalone 3,167 SF commercial building with strong visibility along SE Foster Road. The cedar-clad facade and tall storefront windows provide excellent presence on a well-traveled corridor. CE zoning supports a broad mix of business types, allowing future owners to operate retail, office, wellness, studio, counseling, or light production concepts. This zoning flexibility makes the property attractive to both owner-users and investors seeking a versatile asset in a high-exposure location.The front of the building includes a large showroom with 12-foot ceilings and expansive windows that bring in natural light. A built-in cashier/checkout stand provides a ready-made setup for retail or service businesses. A private office is also included, offering space for administrative or consulting use.The rear section of the building offers additional workspace, well-suited for production, storage, or future buildout. A set of rear double freight-style doors provide practical access for equipment and supplies, with street-grade entry leading into the shop.Recent improvements include windows and new rear doors, along with an upgraded security system. The property can serve as an owner-user opportunity or investment.Positioned directly on SE Foster Road, the property benefits from steady daily traffic of approximately 19,000 vehicles, providing excellent visibility and exposure. On-street parking in front of the building makes it easy for customers and clients to access the site. The location is approximately 2.5 miles from Interstate 205 and 4 miles from Highway 26, ensuring convenient connectivity throughout the Portland metro area.