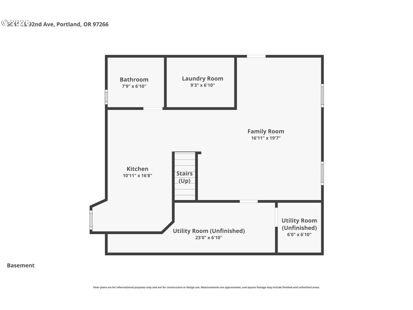
Nicely remodeled with detached studio and rentable lower level in the heart of Lents. Updated kitchen features shaker cabinets, slab granite counters, glass mosaic tile backsplash and stainless appliances. Living and dining rooms have hardwood floors, original built-ins and a wood-burning fireplace. Three bedrooms, all on main level, with two having beautiful fir floors. Remodeled main bath with subway tile tub/shower and updated vanity with solid surface counter. Lower level with outside entry, kitchenette and second full bathroom has been separately rented as ADU by current owners. Detached studio with built-ins, skylites, sliding door, beverage refrigerator and electricity perfect for work from home, artist space or yoga/exercise room. Outside, enjoy a large paver stone patio, five raised garden beds, a greenhouse made from reclaimed shower doors, two covered porches, and many fruit-bearing plants, including figs, grapes, kiwi and blueberries. Centrally located in up-and-coming Lents, with walk score of 84, very walkable and bike score of 93, biker’s paradise. Less than two blocks to brew pubs, coffee, cocktails and Farmer’s market in Lents Town Center. One block in other direction to Lents Park with Walker Stadium, the home of the Portland Pickles. Easy access to MAX light rail and the Springwater Corridor trail.
Listing Provided Courtesy of Andrew Berlinberg, Keller Williams Realty Professionals
General Information
190963839
SingleFamilyResidence
1
DOM
3
6098.4 SqFt
2
2416
1925
Multnomah
R115531
Lent 2/10
Kellogg
Franklin
Residential
SingleFamilyResidence
BERNHARDT PK, BLOCK 2, E 85' OF LOT 3 EXC PT IN STS
Listing Provided Courtesy of Andrew Berlinberg, Keller Williams Realty Professionals
Krishna Realty data last checked: Mar 31, 2026 09:26 | Listing last modified Mar 30, 2026 10:45,
Source:
Nicely remodeled with detached studio and rentable lower level in the heart of Lents. Updated kitchen features shaker cabinets, slab granite counters, glass mosaic tile backsplash and stainless appliances. Living and dining rooms have hardwood floors, original built-ins and a wood-burning fireplace. Three bedrooms, all on main level, with two having beautiful fir floors. Remodeled main bath with subway tile tub/shower and updated vanity with solid surface counter. Lower level with outside entry, kitchenette and second full bathroom has been separately rented as ADU by current owners. Detached studio with built-ins, skylites, sliding door, beverage refrigerator and electricity perfect for work from home, artist space or yoga/exercise room. Outside, enjoy a large paver stone patio, five raised garden beds, a greenhouse made from reclaimed shower doors, two covered porches, and many fruit-bearing plants, including figs, grapes, kiwi and blueberries. Centrally located in up-and-coming Lents, with walk score of 84, very walkable and bike score of 93, biker’s paradise. Less than two blocks to brew pubs, coffee, cocktails and Farmer’s market in Lents Town Center. One block in other direction to Lents Park with Walker Stadium, the home of the Portland Pickles. Easy access to MAX light rail and the Springwater Corridor trail.