Great townhouse with forested/greenspace feel all around, yet convenient for commutes to Portland or to Metro Westside. New cabinets in kitchen and new (not lived on!) carpet on the main and upper floors. Home is being prepped, but available to be shown. New photos coming soon. Big updates underway by HOA. Improvements have already been made to this buildings with new stairs and composite decks. Great location as quick to get to Multnomah Village as well as Garden Home Districts. Shopping and popular restaurants & taverns within 5 minutes drive! [Home Energy Score = 6. HES Report at https://rpt.greenbuildingregistry.com/hes/OR10240037]
Listing Provided Courtesy of John Walsh, John L. Scott
General Information
369925330
Attached
139
DOM
2
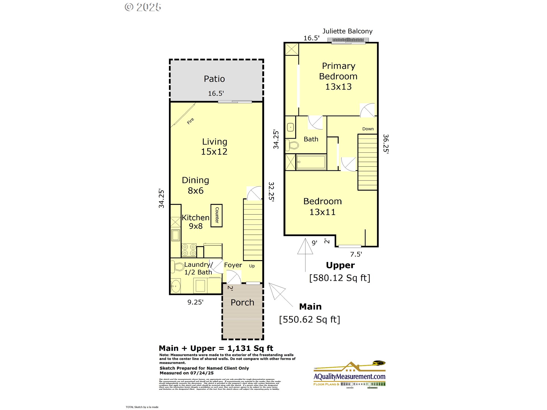
871.2 SqFt
1.5
1130
1980
Multnomah
R179557
Maplewood 6/10
Jackson 8/10
Ida B Wells
Residential
Attached
HIDDEN VILLAGE TWNHOUSES, LOT 16, INC UND INT TRACT A
Listing Provided Courtesy of John Walsh, John L. Scott
Krishna Realty data last checked: Dec 25, 2025 15:42 | Listing last modified Dec 01, 2025 14:15,
Source:
Great townhouse with forested/greenspace feel all around, yet convenient for commutes to Portland or to Metro Westside. New cabinets in kitchen and new (not lived on!) carpet on the main and upper floors. Home is being prepped, but available to be shown. New photos coming soon. Big updates underway by HOA. Improvements have already been made to this buildings with new stairs and composite decks. Great location as quick to get to Multnomah Village as well as Garden Home Districts. Shopping and popular restaurants & taverns within 5 minutes drive! [Home Energy Score = 6. HES Report at https://rpt.greenbuildingregistry.com/hes/OR10240037]