Portland, 97211
3 Bed
1.5 Bath
3026 SqFt
68 DOM
Built: 1907
$849,900
Portland 97211
$849900
Open House
Request Tour, Ask a Question or Start an Offer
Principal Broker
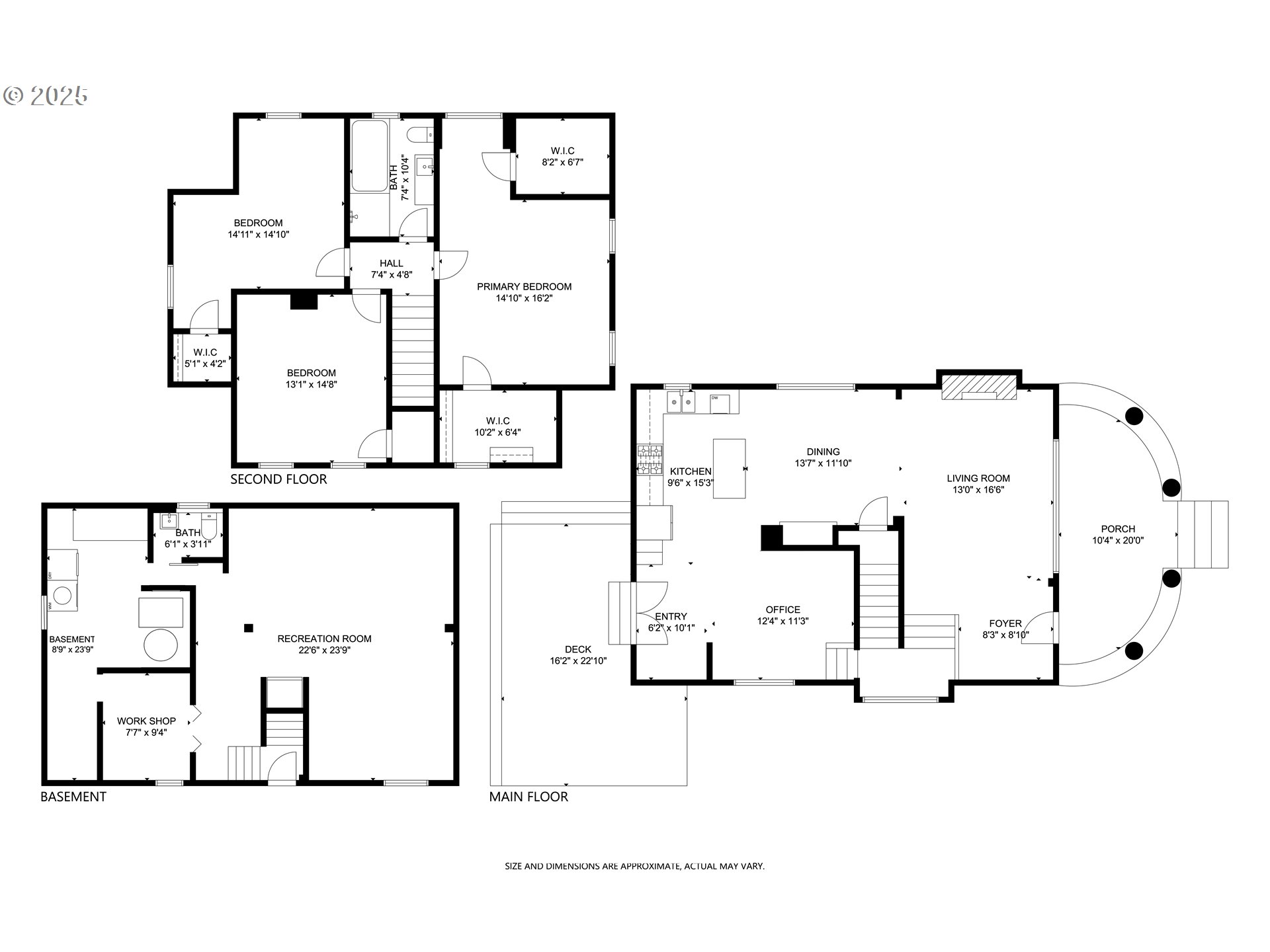
Welcome to this classic Portland Foursquare, perfectly placed in the city’s thriving foodie epicenter: an unbeatable trifecta of locations between the Alberta Arts, Mississippi, and Williams corridors. Experience the best of Portland living with cafés, music venues, bars, and bistros just moments from NE Cleveland. This Humboldt home sits on a tree-lined street and greets you with lush landscaping, garden paths, and a spacious round covered porch. Inside, you’ll find vintage charm: wraparound stairs, built-ins, and wood floors (wood floors under the LVP too!), +paired with modern must-haves like a gas fireplace, generous layout, open floor plan, and French doors leading to the covered deck for year-round enjoyment. ***Refinish bid for removal of vinyl and refinishing wood floors available upon request*** Upstairs, three extra-large bedrooms each feature walk-in closets, along with a spacious bathroom offering a walk-in shower and soaking tub. The finished lower level adds versatility with a separate exterior entry and a flexible layout—perfect for a rec room, media space, studio, or future bedroom, guest suite, or even ADU potential. Out back, enjoy chill hangs or lively gatherings under the covered deck, surrounded by thoughtful landscaping, easy-care turf, and a fully fenced yard wrapped in mature greenery for peace and privacy. All of this in vibrant NE Portland, just blocks from neighborhood coffee shops, restaurants, breweries, the farmers market, New Seasons, and more. Come see what makes this place feel like home. [Home Energy Score = 6. HES Report at https://rpt.greenbuildingregistry.com/hes/OR10202900]
Listing Provided Courtesy of Ella Gray, Living Room Realty
MLS #184121140
TypeSingleFamilyResidence
Days on Market 68 DOM
Beds3
Lot Size 5227.2 SqFt
Baths1.5
SqFt3026
Year built1907
ZoningR2.5
CountyMultnomah
Tax IDR298061
ElemBoise-Eliot
MiddleHarriet Tubman
HighJefferson
PropCategoryResidential
PropTypeSingleFamilyResidence
Neighborhood (Legal)WALNUT PK, BLOCK 21, LOT 11
Krishna Realty data last checked: Dec 30, 2025 21:50 | Listing last modified Dec 29, 2025 17:51, Source:
Open DateSat, Jan 3rd, 11AM to 1PM
Please Sign In or Create Account to view more details.
Download our Mobile app
Upper SqFt1032
Main SqFt1006
Lower SqFt988
Total SqFt3026
SFSrcPMaps
TotUp/Mn2038
Fireplaces1/Gas
Bdrms3
Full Bath1
Partial Bath1
Total Bath1.5
RoofComposition
Garage
StyleFourSquare
ParkingDriveway,OnStreet
Levels3
Year Built1907
Green CertYes
Energy Eff
ExteriorCedar, CementSiding
Bsmt/FndFinished,FullBasement,Unfinished
RV
URM
BasementFinished,FullBasemen
FoundationConcretePerimeter
WindowsWoodFrames
Amenities
LivingFireplace
KitchenApplianceGarage, Dishwasher, FreeStandingGasRange, FreeStandingRefrigerator, Granite, Island, Pantry, Stain
InteriorLaundry, LuxuryVinylPlank, WasherDryer, WoodFloors
ExteriorCoveredDeck, CoveredPatio, Deck, Fenced, Porch, Yard
AccessibilityNaturalLighting
CoolOther, WindowUnit
WaterElectricity
HeatForcedAir
SewerPublicSewer
Hot WaterElectricity
FuelElectricity, Gas
PTax/Yr6443.87
HOA0
HOA Incl
HOA Fee
Other Dues
Terms ConsideredCash,Conventional,FHA,VALoan
List Date10-23-2025
Rent (If Rented)
Bank Owned/REONo
Short SaleNo
Pending Date
DOM 68
CDOM 68
Sold Date
TermsCash,Conventional,FHA,VALoan
Original Price$849,900
List Price$849,900
Sold Price
Last ModifiedDec 29, 2025 17:51
Listing courtesy of Living Room Realty.
The content relating to real estate for sale on this site comes in part from the IDX program of the RMLS of Portland, Oregon. Real Estate listings held by brokerage firms other than this firm are marked with the RMLS logo, and detailed information about these properties include the name of the listing's broker. Listing content is copyright © 2019 RMLS of Portland, Oregon. All information provided is deemed reliable but is not guaranteed and should be independently verified. Krishna Realty data last checked: Dec 30, 2025 21:50 | Listing last modified Dec 29, 2025 17:51. Some properties which appear for sale on this web site may subsequently have sold or may no longer be available.
Please Sign In or Create Account to view more listings.
$620,000
2 Bath
2604 SqFt
4 DOM
$614,800
4 Bed
1910 SqFt
6 DOM
$408,000
2.5 Bath
1778 SqFt
15 DOM
$309,000
2 Bed
1 Bath
726 SqFt
19 DOM
<
>
Choose at least one recipient
You don't have access to share. Please contact admin.