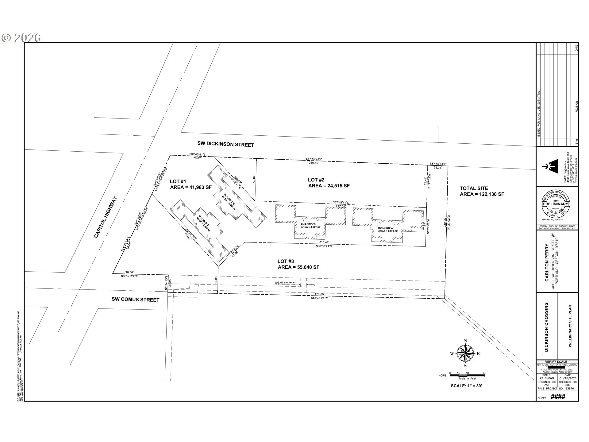
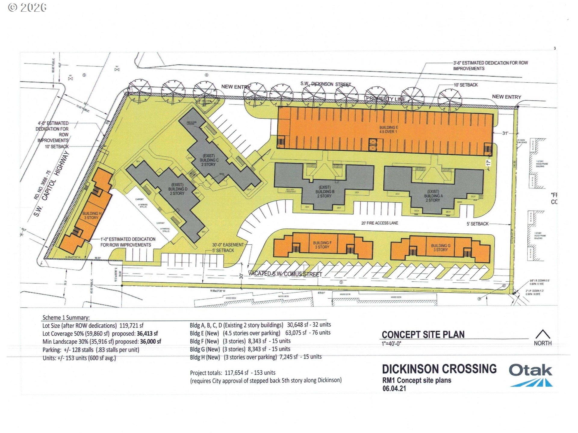
Dickinson Crossing presents a rare & flexible investment opportunity in SW Portland. The offering includes 43 well-maintained 1- & 2-bedroom units (41,970 sf lot) plus add'l 80,168 SF of raw land on 2 separate tax lot(s). Seller is completing a 3 lot partition to separate the apartments from raw land, allowing for either a partial sale or full property sale. (Partial sale subject to final plat recording). The vacant land is zoned RM1, offering multiple development options, apartments, townhomes, or other middle-housing concepts. Buyers to perform their own due diligence. The existing apartment community has been carefully maintained by long-term ownership, with clean grounds and many long-term renters. Strong demand in this location supports stable occupancy. The property sits directly on a TriMet bus line and minutes from RESTAURANTS - Walter Mitty's, Original Pancake House, The Old Barn, Buster's BBQ, Kuang's, Sushi. FAST FOOD - Dominos, Taco Time, Wendy's, McDonald's. LODGING - Aladdin Inn & Suites, Comfort Suites, All comfort Residential Care. SERVICES - Tri Met Transit Center, Les Schwab Tire Center, Veterinary Hospital, Goodwill Donation. GROCERY - Walgreens, Fred Meyer, Safeway, Barbur Liquor. SCHOOLS - PCC Campus, Markham, Jackson & Wilson, Oregon School of Massage. PARKS - Holly Farm, Dickinson, Spring Garden. GAS - Chevron, Shell. Lot B). 24,515 sf lot for future dev/building along Dickinson St. Lot C). 55,653 sf lot for future dev/building, on SW Comus St. The development potential creates an outstanding opportunity.
Listing Provided Courtesy of Rett Pratt, Premiere Property Group, LLC
General Information
585932628
74
DOM
9
2.76 acres
9
30940
1971
R2
Multnomah
R290456
Markham 3/10
Jackson 8/10
Other
MultiFamily
TRIO ADDITION, BLOCK 1 TL 100
Listing Provided Courtesy of Rett Pratt, Premiere Property Group, LLC
Krishna Realty data last checked: Apr 26, 2026 21:42 | Listing last modified Feb 11, 2026 09:10,
Source:
Dickinson Crossing presents a rare & flexible investment opportunity in SW Portland. The offering includes 43 well-maintained 1- & 2-bedroom units (41,970 sf lot) plus add'l 80,168 SF of raw land on 2 separate tax lot(s). Seller is completing a 3 lot partition to separate the apartments from raw land, allowing for either a partial sale or full property sale. (Partial sale subject to final plat recording). The vacant land is zoned RM1, offering multiple development options, apartments, townhomes, or other middle-housing concepts. Buyers to perform their own due diligence. The existing apartment community has been carefully maintained by long-term ownership, with clean grounds and many long-term renters. Strong demand in this location supports stable occupancy. The property sits directly on a TriMet bus line and minutes from RESTAURANTS - Walter Mitty's, Original Pancake House, The Old Barn, Buster's BBQ, Kuang's, Sushi. FAST FOOD - Dominos, Taco Time, Wendy's, McDonald's. LODGING - Aladdin Inn & Suites, Comfort Suites, All comfort Residential Care. SERVICES - Tri Met Transit Center, Les Schwab Tire Center, Veterinary Hospital, Goodwill Donation. GROCERY - Walgreens, Fred Meyer, Safeway, Barbur Liquor. SCHOOLS - PCC Campus, Markham, Jackson & Wilson, Oregon School of Massage. PARKS - Holly Farm, Dickinson, Spring Garden. GAS - Chevron, Shell. Lot B). 24,515 sf lot for future dev/building along Dickinson St. Lot C). 55,653 sf lot for future dev/building, on SW Comus St. The development potential creates an outstanding opportunity.