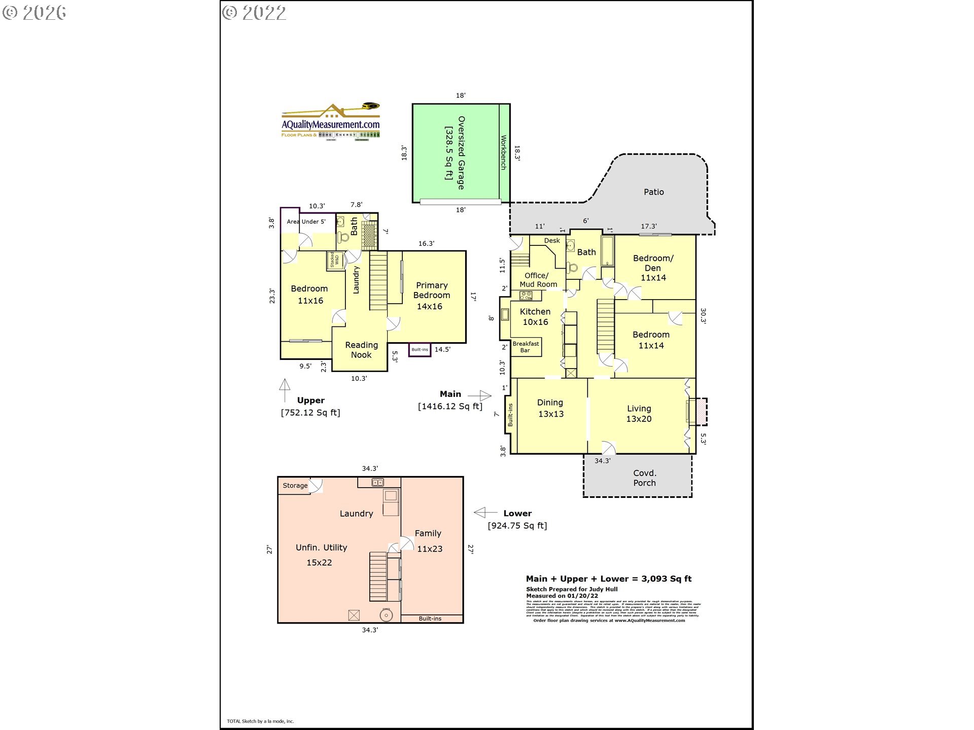
The best of Park life and urban awesomeness - Belmont, Hawthorne, Division, SE 28th & more. This convenient-to-everything Vintage Bungalow combines modern updates in the best kind of way. The expansive main floor (1400+ sf) includes 2 large bedrooms and a bath. Plenty of spaces for offices & play as well. The updated kitchen features an induction cooktop, quartz counters, 2 wall ovens, a breakfast bar and a pantry. Updated windows (Milgard), Roof (2018). HVAC (2022). Upper level Mini splits. Ready to move in, spread out and enjoy! [Home Energy Score = 2. HES Report at https://rpt.greenbuildingregistry.com/hes/OR10188691]
Listing Provided Courtesy of Aimee Virnig, Windermere Realty Trust
General Information
528549714
SingleFamilyResidence
0
DOM
4
6098.4 SqFt
2
3093
1923
Multnomah
R203906
Sunnyside Env 5/10
Sunnyside Env 5/10
Franklin
Residential
SingleFamilyResidence
LAURELHURST, BLOCK 93, N 1/2 OF LOT 12
Listing Provided Courtesy of Aimee Virnig, Windermere Realty Trust
Krishna Realty data last checked: Apr 22, 2026 22:43 | Listing last modified Apr 22, 2026 16:19,
Source:
The best of Park life and urban awesomeness - Belmont, Hawthorne, Division, SE 28th & more. This convenient-to-everything Vintage Bungalow combines modern updates in the best kind of way. The expansive main floor (1400+ sf) includes 2 large bedrooms and a bath. Plenty of spaces for offices & play as well. The updated kitchen features an induction cooktop, quartz counters, 2 wall ovens, a breakfast bar and a pantry. Updated windows (Milgard), Roof (2018). HVAC (2022). Upper level Mini splits. Ready to move in, spread out and enjoy! [Home Energy Score = 2. HES Report at https://rpt.greenbuildingregistry.com/hes/OR10188691]