Portland, 97217
6 Bed
5 Bath
3757 SqFt
2 DOM
Built: 1907
$1,160,000
$1160000
6 Bed
5 Bath
3757 SqFt
2 DOM
Built: 1907
Principal Broker
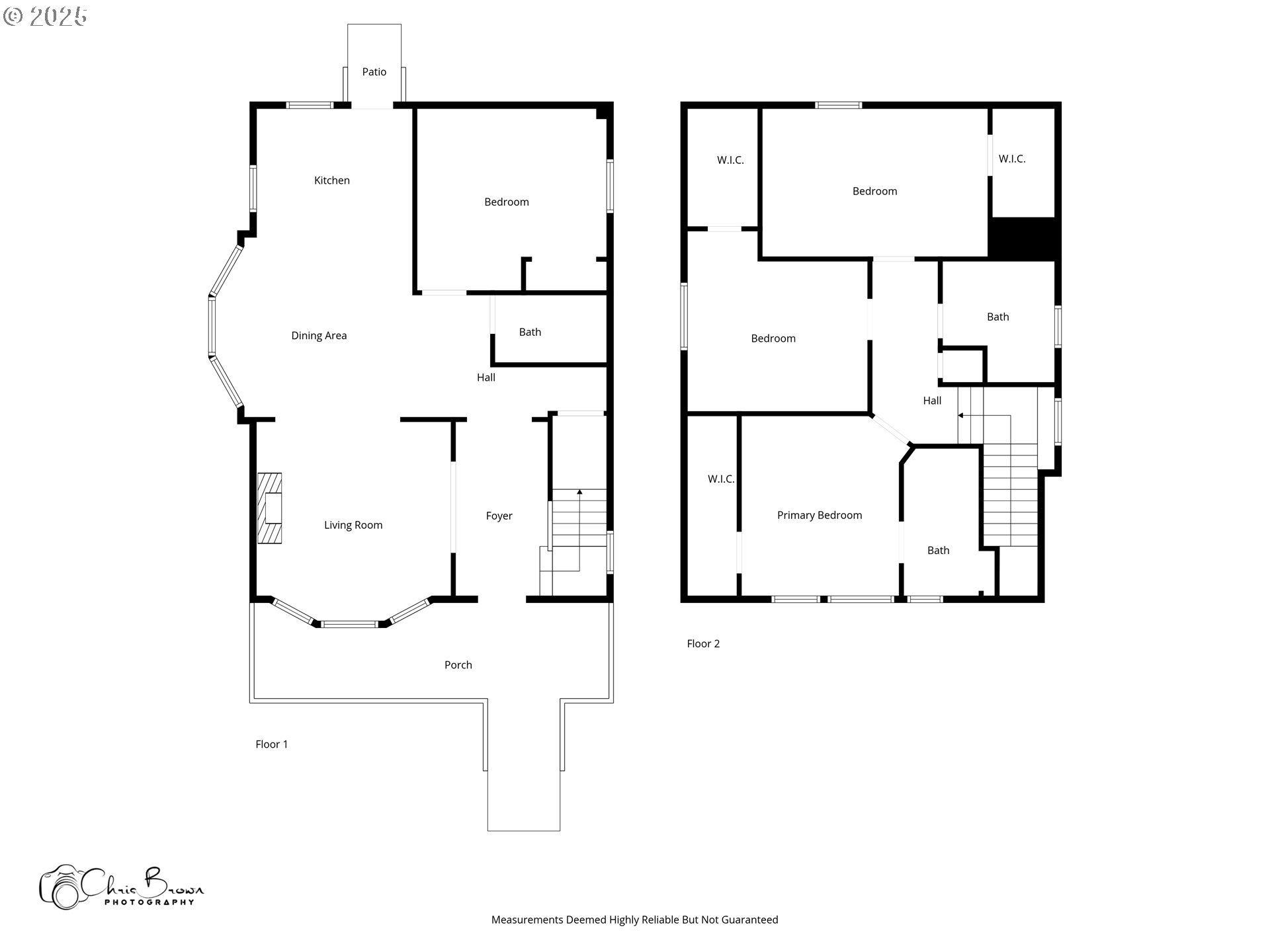
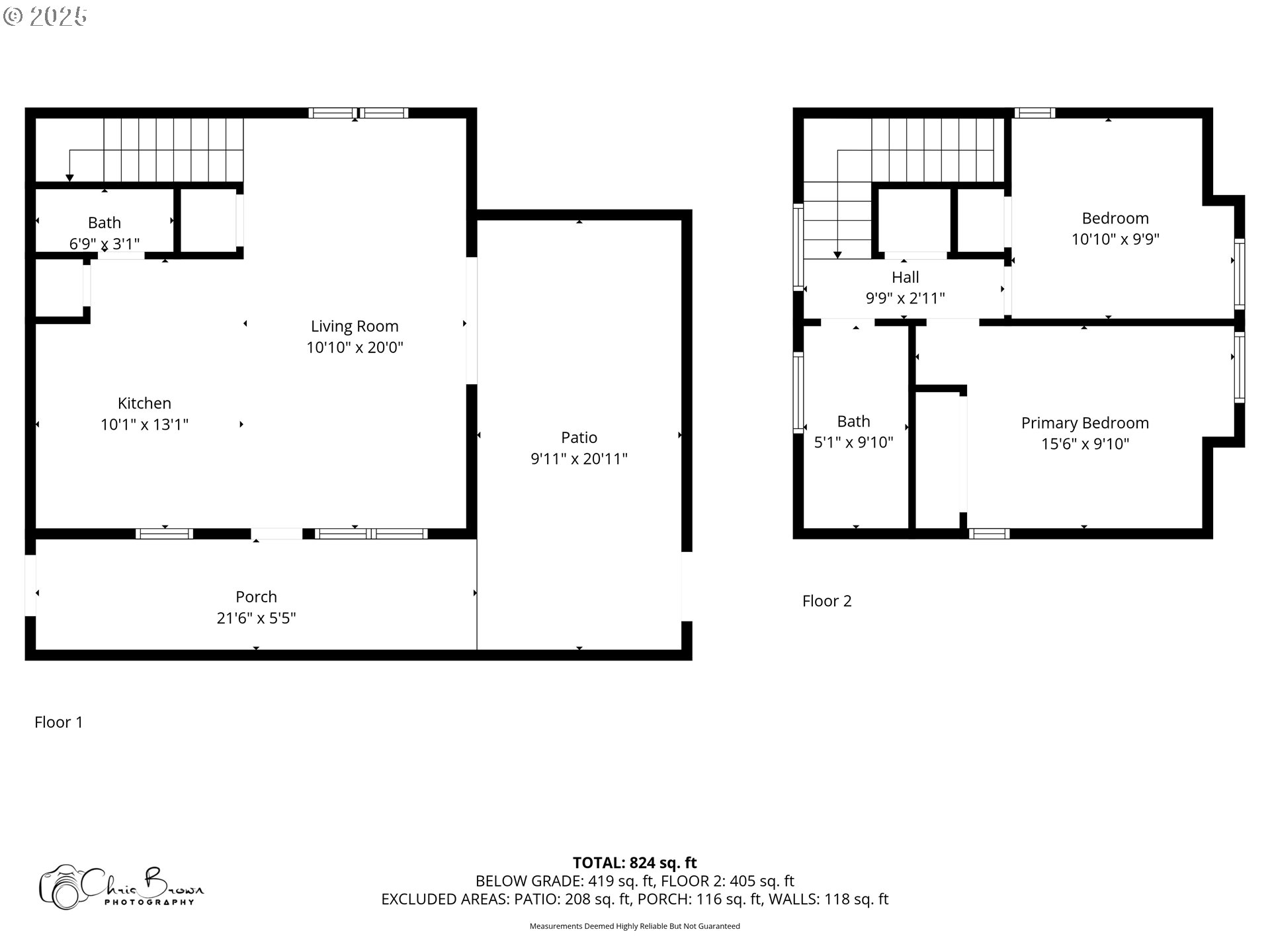
(503) 893-8874Situated in Portland's sought after Humboldt neighborhood, this property offers unbeatable access to the city's most beloved corridors - Mississippi, Williams and Alberta Arts. Convenience is at your doorstep, offering an impressive 100 BikeScore and a walkable location thats close to coffee shops, retail & dining, grocery stores, parks, and public transportation! Featuring 2 onsite units and spanning over 3,700 sqft across three levels & a detached ADU, this property is perfect for full time living, long-term rentals or multi-gen living. This beautifully renovated home perfectly blends historic charm with modern updates. The main home offers 1800 sqft of living space with 4 beds and 3 full baths, featuring hardwood floors and original architectural details alongside thoughtful upgrades throughout. A fully finished basement with private exterior entrance adds 2 beds and 1 bath, ideal for an in-law suite or guests. The detached ADU provides an additional 2 beds and 1.5 baths with private patio, creating a versatile setup for multi-gen living or investment opportunity. Whether you're seeking a charming home with rental potential or a turnkey rental investment, this property combines historic neighborhood character, strong rental demand and unbeatable proximity to Portland's creative core. [Home Energy Score = 3. HES Report at https://rpt.greenbuildingregistry.com/hes/OR10229272]
Listing Provided Courtesy of Becca Kolibaba, Premiere Property Group LLC
323665786
2 DOM
6
4791.6 SqFt
5
3757
1907
R2.5
Multnomah
R130861
Boise-Eliot
Harriet Tubman
Jefferson 4/10
MultiFamily
CENTRAL ALBINA, BLOCK 2, LOT 2
Listing Provided Courtesy of Becca Kolibaba, Premiere Property Group LLC
Krishna Realty data last checked: Jan 08, 2026 14:49 | Listing last modified Jan 06, 2026 18:31,
Source:
Download our Mobile app
3757
6
5
Composition
Driveway,OnStreet
3
1907
Yes
CementSiding, LapSiding
ExteriorEntry,Finished,FullBasement
ExteriorEntry,Finish
ConcretePerimeter,Sl
AirConditioningReady
Electricity, Tankless
ForcedAir, WallHeater
PublicSewer
Electricity, Tankless
Electricity, Gas
10032.38
0
TrashCollection
Cash,Conventional
01-05-2026
No
No
2
3
Cash,Conventional
$1,160,000
$1,160,000
Jan 06, 2026 18:31
Listing courtesy of Premiere Property Group LLC.
The content relating to real estate for sale on this site comes in part from the IDX program of the RMLS of Portland, Oregon.
Real Estate listings held by brokerage firms other than this firm are marked with the RMLS logo, and
detailed information about these properties include the name of the listing's broker.
Listing content is copyright © 2019 RMLS of Portland, Oregon.
All information provided is deemed reliable but is not guaranteed and should be independently verified.
Krishna Realty data last checked: Jan 08, 2026 14:49 | Listing last modified Jan 06, 2026 18:31.
Some properties which appear for sale on this web site may subsequently have sold or may no longer be available.
Principal Broker
(503) 893-8874Situated in Portland's sought after Humboldt neighborhood, this property offers unbeatable access to the city's most beloved corridors - Mississippi, Williams and Alberta Arts. Convenience is at your doorstep, offering an impressive 100 BikeScore and a walkable location thats close to coffee shops, retail & dining, grocery stores, parks, and public transportation! Featuring 2 onsite units and spanning over 3,700 sqft across three levels & a detached ADU, this property is perfect for full time living, long-term rentals or multi-gen living. This beautifully renovated home perfectly blends historic charm with modern updates. The main home offers 1800 sqft of living space with 4 beds and 3 full baths, featuring hardwood floors and original architectural details alongside thoughtful upgrades throughout. A fully finished basement with private exterior entrance adds 2 beds and 1 bath, ideal for an in-law suite or guests. The detached ADU provides an additional 2 beds and 1.5 baths with private patio, creating a versatile setup for multi-gen living or investment opportunity. Whether you're seeking a charming home with rental potential or a turnkey rental investment, this property combines historic neighborhood character, strong rental demand and unbeatable proximity to Portland's creative core. [Home Energy Score = 3. HES Report at https://rpt.greenbuildingregistry.com/hes/OR10229272]
Download our Mobile app