Portland, 97219
4 Bed
3 Bath
1976 SqFt
1 DOM
Built: 1984
$595,000
$595000
4 Bed
3 Bath
1976 SqFt
1 DOM
Built: 1984
Principal Broker
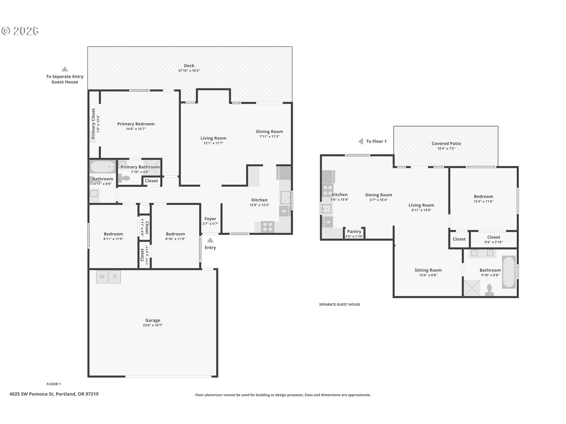
(503) 893-8874Tucked in a wooded setting, this flexible West Portland Park home offers room to grow and space to breathe. The 1,097 sq ft one-level main home features 3 beds, 2 baths, bamboo flooring, and a large deck for easy indoor-outdoor living. Downstairs, a separate 879 sq ft ADU with its own exterior entry includes a full kitchen plus dining and living areas, 1 bed, and 1 bath—ideal for guests, multi-generational living, or rental income. Fenced backyard completes the package.
Listing Provided Courtesy of Tony Apa, JMG - Jason Mitchell Group
733009336
SingleFamilyResidence
1 DOM
4
5227.2 SqFt
3
1976
1984
R7
Multnomah
R302383
Markham 3/10
Jackson 8/10
Ida B Wells
Residential
SingleFamilyResidence
WEST PORTLAND PK, BLOCK 28, LOT 35-36
Listing Provided Courtesy of Tony Apa, JMG - Jason Mitchell Group
Krishna Realty data last checked: Apr 25, 2026 14:12 | Listing last modified Feb 17, 2026 16:14,
Source:
Download our Mobile app
0
1097
879
1976
Tax
1097
4
3
0
3
Composition
2, Attached
Stories2,Ranch
Driveway,OffStreet
2
1984
No
WoodSiding
ExteriorEntry,Finished,SeparateLivingQuartersApartmentAuxLivingUnit
ExteriorEntry,Finish
ConcretePerimeter,St
DoublePaneWindows,Vi
BuiltinRange, Dishwasher, Disposal, FreeStandingRefrigerator, Microwave, Quartz, SolidSurfaceCountertop, St
AccessoryDwellingUnit, BambooFloor, GarageDoorOpener, HighCeilings, HighSpeedInternet, LuxuryVinylPlank, Q
CoveredPatio, Deck, Fenced, Yard
GarageonMain, MainFloorBedroomBath
CentralAir
Gas
ForcedAir
PublicSewer
Gas
Electricity
7928.46
0
Cash,Conventional,FHA,VALoan
02-16-2026
No
No
1
68
Cash,Conventional,FHA,VALoan
$595,000
$595,000
Feb 17, 2026 16:14
Listing courtesy of JMG - Jason Mitchell Group.
The content relating to real estate for sale on this site comes in part from the IDX program of the RMLS of Portland, Oregon.
Real Estate listings held by brokerage firms other than this firm are marked with the RMLS logo, and
detailed information about these properties include the name of the listing's broker.
Listing content is copyright © 2019 RMLS of Portland, Oregon.
All information provided is deemed reliable but is not guaranteed and should be independently verified.
Krishna Realty data last checked: Apr 25, 2026 14:12 | Listing last modified Feb 17, 2026 16:14.
Some properties which appear for sale on this web site may subsequently have sold or may no longer be available.
Principal Broker
(503) 893-8874Tucked in a wooded setting, this flexible West Portland Park home offers room to grow and space to breathe. The 1,097 sq ft one-level main home features 3 beds, 2 baths, bamboo flooring, and a large deck for easy indoor-outdoor living. Downstairs, a separate 879 sq ft ADU with its own exterior entry includes a full kitchen plus dining and living areas, 1 bed, and 1 bath—ideal for guests, multi-generational living, or rental income. Fenced backyard completes the package.
Download our Mobile app