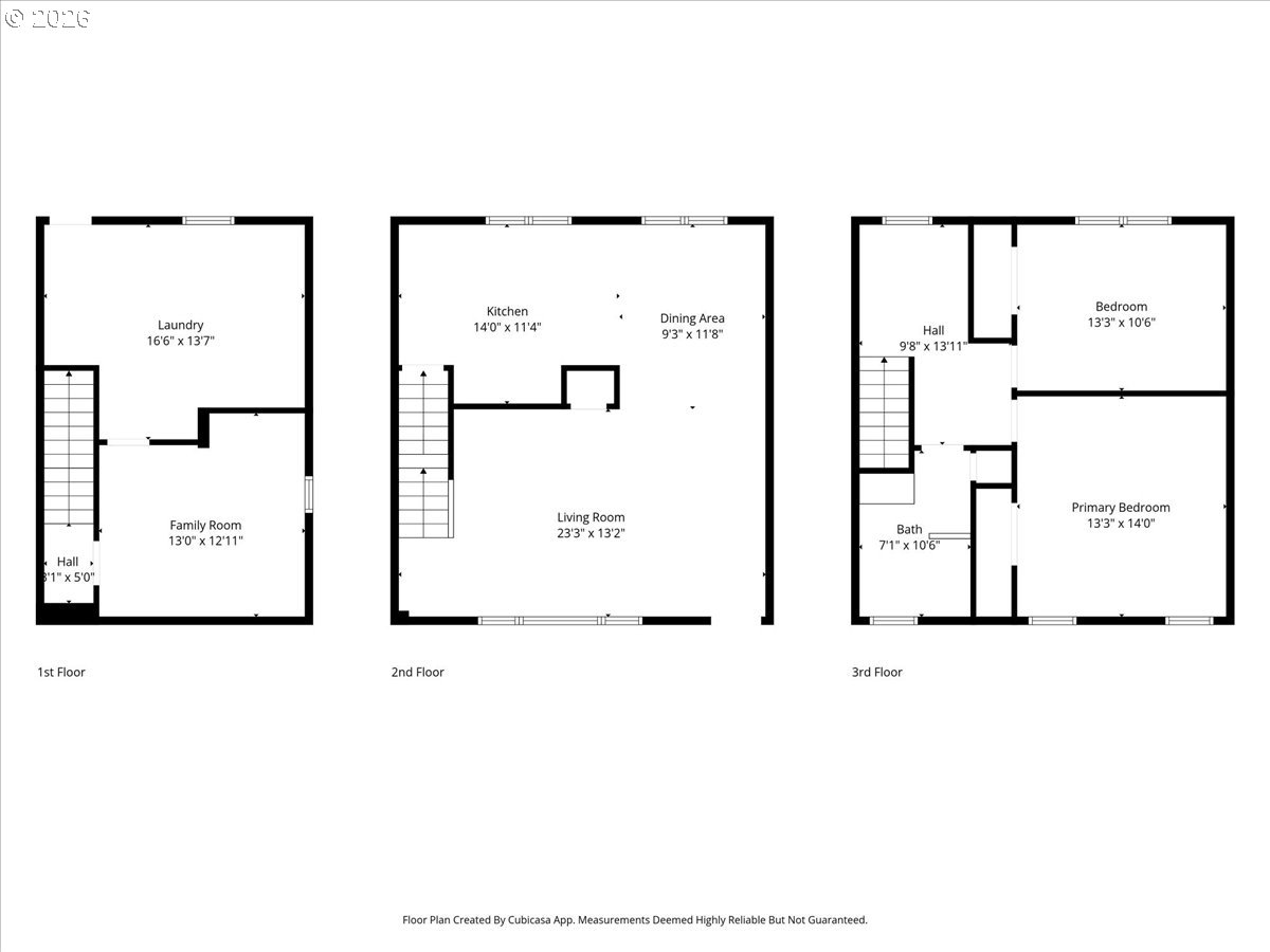
Built in 1950 with subtle mid-century modern vibes, this centrally located Portland townhome offers timeless character and thoughtful updates across 1,606 square feet. The entry opens into a spacious, warm, and welcoming living room that flows seamlessly into the dining area and kitchen—creating an open, connected layout ideal for everyday living and entertaining. Large living room windows fill the space with natural light and overlook peaceful, landscaped grounds. Hardwood floors, 8' ceilings, vinyl windows, and classic wood blinds enhance the home’s inviting feel throughout. The kitchen features warm wood cabinetry, stainless steel appliances, granite countertops, and durable Armstrong tile flooring, blending function and style within the open dining/kitchen combo. Upstairs, a sunny south-facing bedroom overlooks the quiet courtyard, while the second bedroom is privately positioned on the north side. Both offer double closets and hardwood floors. The full bath includes a pedestal sink, classic tile flooring, and a tub/shower combination. The lower level adds flexibility with a bonus room, laundry area, exterior entrance, and potential to add a bathroom—ideal for guests, a home office, or creative space. Quietly tucked away yet close to everything, you’ll enjoy assigned parking, a Walk Score of 86, Bike Score of 91, and easy access to Safeway, neighborhood cafes, and the greenspaces of Creston Park with summer swimming and a popular dog park. A/C units and bike rack included, piano negotiable. HOA dues cover water, sewer, garbage, landscaping, and professional management—making this a compelling opportunity in one of Portland’s most connected neighborhoods!
Listing Provided Courtesy of Jules Williamson, Realty One Group Prestige
General Information
241119995
Condominium
17
DOM
2
1
1606
1950
Multnomah
R590876
Creston 7/10
Hosford
Franklin 5/10
Residential
Condominium
CRESTON COURT CONDOMINIUM, LOT 3709
Listing Provided Courtesy of Jules Williamson, Realty One Group Prestige
Krishna Realty data last checked: Mar 26, 2026 01:24 | Listing last modified Mar 20, 2026 15:21,
Source:
Built in 1950 with subtle mid-century modern vibes, this centrally located Portland townhome offers timeless character and thoughtful updates across 1,606 square feet. The entry opens into a spacious, warm, and welcoming living room that flows seamlessly into the dining area and kitchen—creating an open, connected layout ideal for everyday living and entertaining. Large living room windows fill the space with natural light and overlook peaceful, landscaped grounds. Hardwood floors, 8' ceilings, vinyl windows, and classic wood blinds enhance the home’s inviting feel throughout. The kitchen features warm wood cabinetry, stainless steel appliances, granite countertops, and durable Armstrong tile flooring, blending function and style within the open dining/kitchen combo. Upstairs, a sunny south-facing bedroom overlooks the quiet courtyard, while the second bedroom is privately positioned on the north side. Both offer double closets and hardwood floors. The full bath includes a pedestal sink, classic tile flooring, and a tub/shower combination. The lower level adds flexibility with a bonus room, laundry area, exterior entrance, and potential to add a bathroom—ideal for guests, a home office, or creative space. Quietly tucked away yet close to everything, you’ll enjoy assigned parking, a Walk Score of 86, Bike Score of 91, and easy access to Safeway, neighborhood cafes, and the greenspaces of Creston Park with summer swimming and a popular dog park. A/C units and bike rack included, piano negotiable. HOA dues cover water, sewer, garbage, landscaping, and professional management—making this a compelling opportunity in one of Portland’s most connected neighborhoods!