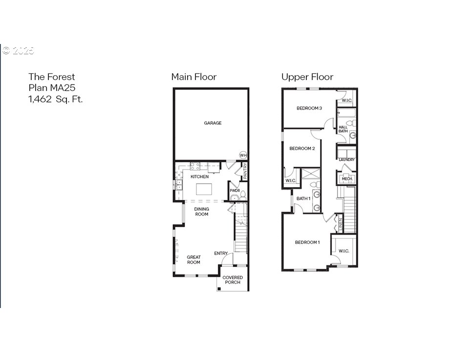
Corner homesite new construction home in Gresham! This 1,462 square foot Forest floor plan is a lovely two-story townhome with 3 bedrooms, 2.5 bathrooms, and an attached 2 car garage, fitting neatly into every stage in life. Upon entering there is a great room with a fireplace that is connected to the dining room and a kitchen. There is extended flooring on the main, making this space perfect for hosting. Come together for mealtimes at the island with a breakfast bar. Match any decorating style with solid quartz countertops, shaker-style cabinets, and stainless-steel appliances, creating a dashing elegance. The primary bedroom boasts ample amount of space along with a spacious walk-in closet, double vanity sink, walk-in shower, and an extra linen closet. The second and third bedroom both have walk-in closets, making it a great location to store extra clothes. Office open daily 9:30am - 4:30pm. Receive a closing cost credit with use of builder’s preferred lender, reach out for more details. Photos are representative of plan only and finishes may vary as built. Come visit Terrace at Pleasant Valley and claim your Forest today! Terrace at Pleasant Valley is just minutes from the highway for easy access into the Portland metro area, and outstanding outdoor activities like Powell Butte and Happy Valley Nature Park.
Listing Provided Courtesy of Heather Quirke, D. R. Horton, Inc Portland
General Information
198402246
Attached
21
DOM
3
2.5
1462
2025
Multnomah
New Construction
Pleasant Valley 6/10
Centennial
Centennial
Residential
Attached
Terrace at Pleasant Valley
Listing Provided Courtesy of Heather Quirke, D. R. Horton, Inc Portland
Krishna Realty data last checked: Dec 05, 2025 05:47 | Listing last modified Dec 03, 2025 10:36,
Source:
Open House
Fri, Dec 5th, 9AM to 4PM
Download our Mobile app
Residence Information
886
576
0
1462
Builder
1462
1/Gas
3
2
1
2.5
Composition
2, Attached
Stories2,Townhouse
Driveway,OnStreet
2
2025
No
CementSiding
CrawlSpace
CrawlSpace
ConcretePerimeter
DoublePaneWindows
AllLandscaping, Commo
Features and Utilities
Dishwasher, Disposal, FreeStandingRange, Island, Microwave, Pantry, Quartz, SolidSurfaceCountertop, Stainles
Corner homesite new construction home in Gresham! This 1,462 square foot Forest floor plan is a lovely two-story townhome with 3 bedrooms, 2.5 bathrooms, and an attached 2 car garage, fitting neatly into every stage in life. Upon entering there is a great room with a fireplace that is connected to the dining room and a kitchen. There is extended flooring on the main, making this space perfect for hosting. Come together for mealtimes at the island with a breakfast bar. Match any decorating style with solid quartz countertops, shaker-style cabinets, and stainless-steel appliances, creating a dashing elegance. The primary bedroom boasts ample amount of space along with a spacious walk-in closet, double vanity sink, walk-in shower, and an extra linen closet. The second and third bedroom both have walk-in closets, making it a great location to store extra clothes. Office open daily 9:30am - 4:30pm. Receive a closing cost credit with use of builder’s preferred lender, reach out for more details. Photos are representative of plan only and finishes may vary as built. Come visit Terrace at Pleasant Valley and claim your Forest today! Terrace at Pleasant Valley is just minutes from the highway for easy access into the Portland metro area, and outstanding outdoor activities like Powell Butte and Happy Valley Nature Park.