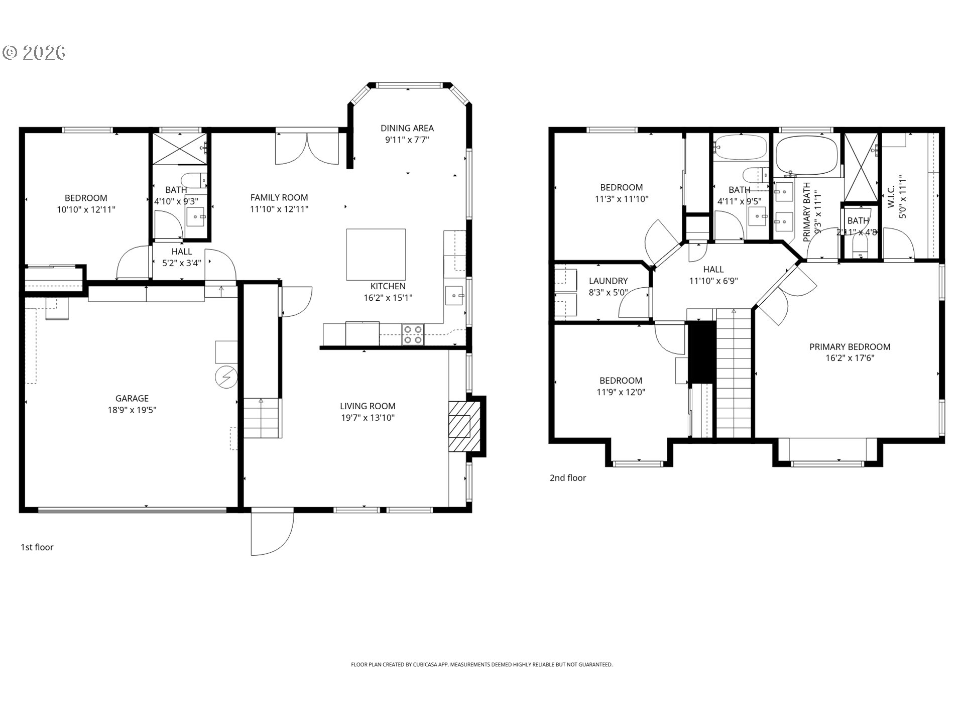
Tucked on a quiet, idyllic street in the heart of Kenton, this lovely Craftsman offers a great layout, prime location, and move-in ready updates. With 4 bedrooms and 3 bathrooms, the layout flows beautifully, with a cozy living room at the front of the home and open kitchen, dining, and family spaces at the back, along with a main-level bedroom and full bath that add flexibility for guests, working from home, or multigenerational living. The kitchen anchors the main living spaces and has been tastefully updated with new quartz counters, a custom backsplash, a new induction range, and plenty of storage. French doors off the family room open to a covered patio and fully fenced backyard, creating a space that works just as well for entertaining as it does for everyday living. Upstairs, the primary suite is a true retreat with vaulted ceilings and an updated bathroom with a soaking tub, walk-in shower, and large walk-in closet. Two additional bedrooms, a full bath, and the laundry room round out the upper level. This home is truly move-in ready, with important updates already completed including a new furnace and heat pump, composition roof, carpet, updated bathrooms, and epoxy garage floors. All of this just blocks from Kenton’s parks, coffee shops, and local favorites along Denver Avenue, making it easy to enjoy one of North Portland’s most loved, walkable neighborhoods. [Home Energy Score = 6. HES Report at https://rpt.greenbuildingregistry.com/hes/OR10154585]
Listing Provided Courtesy of Emily Corning, Hustle & Heart Homes
General Information
138232264
SingleFamilyResidence
0
DOM
4
3484.8 SqFt
3
2229
2007
Multnomah
R587695
Peninsula 4/10
Ockley Green 1/10
Jefferson 4/10
Residential
SingleFamilyResidence
WABASH PK, BLOCK 2, LOT 5
Listing Provided Courtesy of Emily Corning, Hustle & Heart Homes
Krishna Realty data last checked: Mar 19, 2026 13:09 | Listing last modified Mar 19, 2026 10:35,
Source:
Tucked on a quiet, idyllic street in the heart of Kenton, this lovely Craftsman offers a great layout, prime location, and move-in ready updates. With 4 bedrooms and 3 bathrooms, the layout flows beautifully, with a cozy living room at the front of the home and open kitchen, dining, and family spaces at the back, along with a main-level bedroom and full bath that add flexibility for guests, working from home, or multigenerational living. The kitchen anchors the main living spaces and has been tastefully updated with new quartz counters, a custom backsplash, a new induction range, and plenty of storage. French doors off the family room open to a covered patio and fully fenced backyard, creating a space that works just as well for entertaining as it does for everyday living. Upstairs, the primary suite is a true retreat with vaulted ceilings and an updated bathroom with a soaking tub, walk-in shower, and large walk-in closet. Two additional bedrooms, a full bath, and the laundry room round out the upper level. This home is truly move-in ready, with important updates already completed including a new furnace and heat pump, composition roof, carpet, updated bathrooms, and epoxy garage floors. All of this just blocks from Kenton’s parks, coffee shops, and local favorites along Denver Avenue, making it easy to enjoy one of North Portland’s most loved, walkable neighborhoods. [Home Energy Score = 6. HES Report at https://rpt.greenbuildingregistry.com/hes/OR10154585]