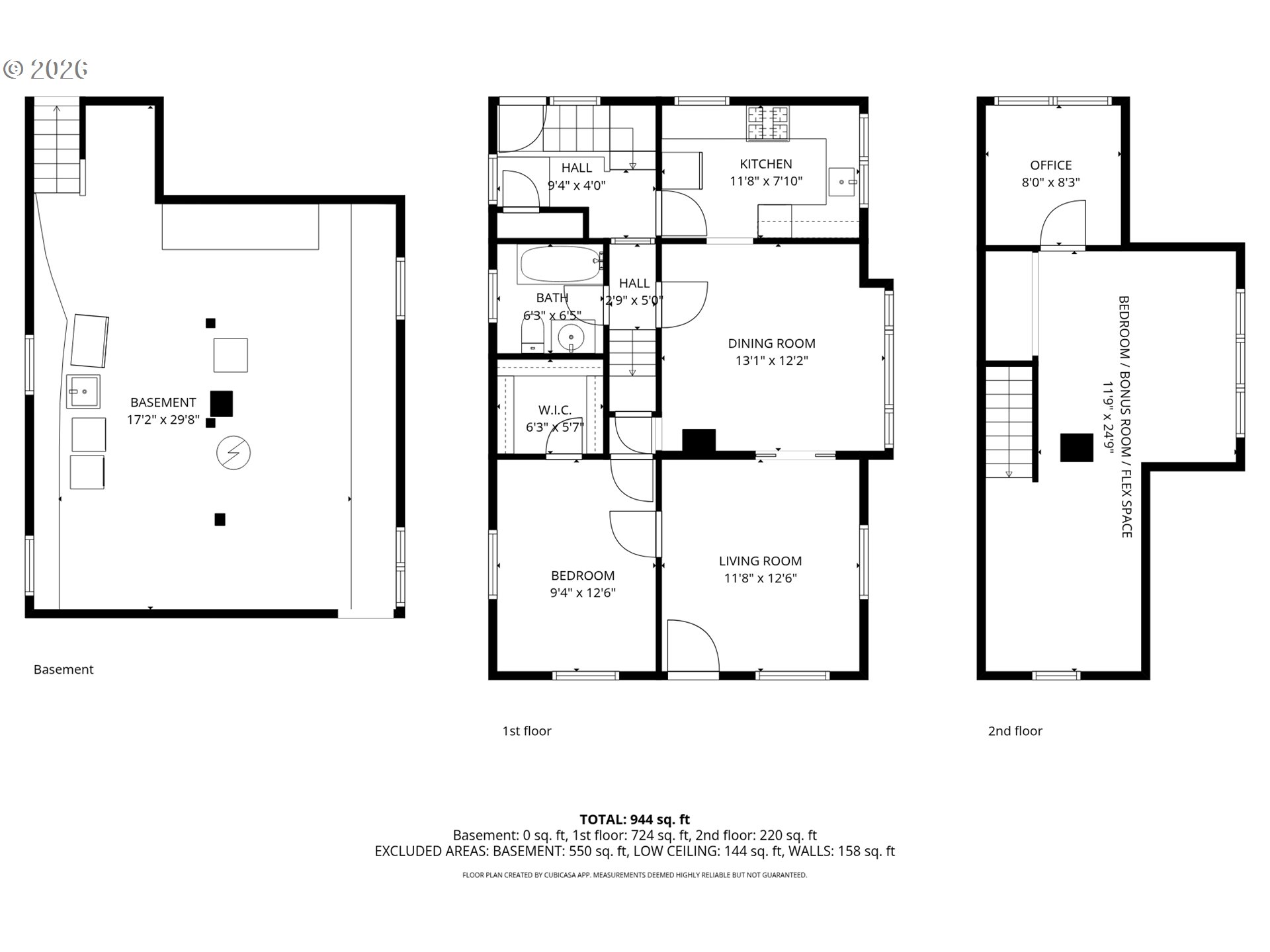
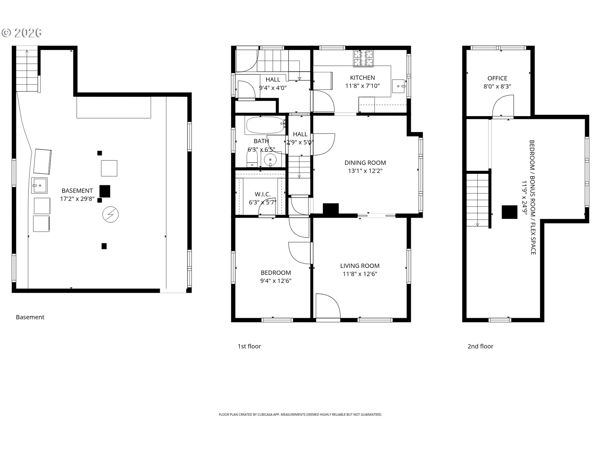
Classic 1914 Craftsman in desirable South Tabor, owned and cared for by the same family for over 30 years. This home blends original character with thoughtful updates throughout. Features include original hardwood floors, built-ins, millwork, and vintage lighting. The kitchen offers pink tile countertops, refreshed cabinetry, gas range, and dishwasher. Enjoy the covered front porch, perfect for morning coffee or relaxing while taking in the charm of this walkable neighborhood. Recent updates include new carpet on stairs, newer furnace, water heater, plumbing, and exterior paint. Use current office as a potential 3rd bedroom! Unfinished basement with good ceiling height provides excellent storage or potential for future finishing. Situated on a large lot with mature landscaping, established gardens, and a spacious storage shed. Located just minutes from Mt. Tabor Park, schools, dining, and shopping. Walk Score of 80 offers convenient access to everyday amenities. All appliances included. [Home Energy Score = 4. HES Report at https://rpt.greenbuildingregistry.com/hes/OR10246115]
Listing Provided Courtesy of Katharine Granum, Real Broker
General Information
776269996
SingleFamilyResidence
21
DOM
3
3920.4 SqFt
1
1344
1914
Multnomah
R201115
Atkinson 6/10
Harrison Park
Franklin 5/10
Residential
SingleFamilyResidence
LAMANDA PK, BLOCK 1, LOT 8
Listing Provided Courtesy of Katharine Granum, Real Broker
Krishna Realty data last checked: Apr 10, 2026 06:59 | Listing last modified Apr 07, 2026 14:44,
Source:
Classic 1914 Craftsman in desirable South Tabor, owned and cared for by the same family for over 30 years. This home blends original character with thoughtful updates throughout. Features include original hardwood floors, built-ins, millwork, and vintage lighting. The kitchen offers pink tile countertops, refreshed cabinetry, gas range, and dishwasher. Enjoy the covered front porch, perfect for morning coffee or relaxing while taking in the charm of this walkable neighborhood. Recent updates include new carpet on stairs, newer furnace, water heater, plumbing, and exterior paint. Use current office as a potential 3rd bedroom! Unfinished basement with good ceiling height provides excellent storage or potential for future finishing. Situated on a large lot with mature landscaping, established gardens, and a spacious storage shed. Located just minutes from Mt. Tabor Park, schools, dining, and shopping. Walk Score of 80 offers convenient access to everyday amenities. All appliances included. [Home Energy Score = 4. HES Report at https://rpt.greenbuildingregistry.com/hes/OR10246115]