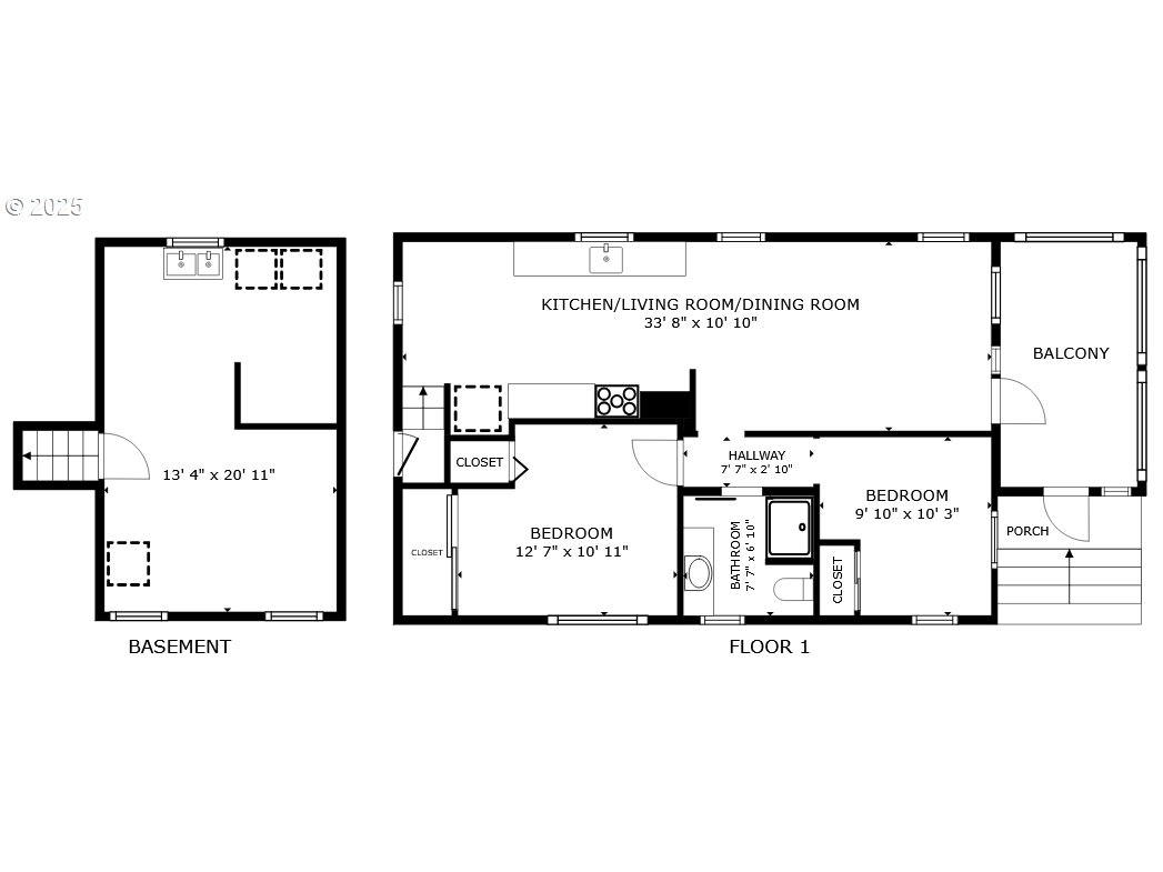
Welcome home to this remodeled bungalow in the heart of Portland’s sought-after Hosford-Abernethy neighborhood, just steps from the shops, restaurants, coffee spots and parks along Clinton & Division. The covered front porch leads into a light-filled sunroom entry—perfect for morning coffee or plant lovers. Inside, enjoy an updated interior with new luxury vinyl plank flooring, fresh interior and exterior paint, new trim and baseboards, modern fixtures, ceiling fans and newer vinyl windows. Remodeled kitchen features quartz countertops, white shaker cabinetry, stainless steel appliances, a garden window and an eating area. Both bedrooms offer great natural light and mirrored closets, with one featuring double closets for added storage. The updated bathroom includes a tiled walk-in shower, quartz vanity, new toilet and built-in storage. The recently painted basement offers laundry and flexible space with future potential for expansion, a home office or studio. Detached oversized one-car garage, long driveway with RV or boat parking and front and back yards ready for gardening or entertaining. With a Walk Score of 93 and Bike Score of 100, plus access to the highly regarded Abernethy, Hosford and Cleveland school path, this home blends classic Portland charm with modern updates and an unbeatable location. [Home Energy Score = 4. HES Report at https://rpt.greenbuildingregistry.com/hes/OR10242536]
Listing Provided Courtesy of Michael McKillion, Keller Williams Sunset Corridor
General Information
661992238
SingleFamilyResidence
85
DOM
2
3920.4 SqFt
1
1056
1926
R2.5
Multnomah
R221386
Abernethy
Hosford
Cleveland 5/10
Residential
SingleFamilyResidence
MOULTON & SCOBEYS SUB, BLOCK 2, LOT 4, N 1/2 OF LOT 5
Listing Provided Courtesy of Michael McKillion, Keller Williams Sunset Corridor
Krishna Realty data last checked: Jan 21, 2026 13:15 | Listing last modified Jan 15, 2026 12:04,
Source:
Welcome home to this remodeled bungalow in the heart of Portland’s sought-after Hosford-Abernethy neighborhood, just steps from the shops, restaurants, coffee spots and parks along Clinton & Division. The covered front porch leads into a light-filled sunroom entry—perfect for morning coffee or plant lovers. Inside, enjoy an updated interior with new luxury vinyl plank flooring, fresh interior and exterior paint, new trim and baseboards, modern fixtures, ceiling fans and newer vinyl windows. Remodeled kitchen features quartz countertops, white shaker cabinetry, stainless steel appliances, a garden window and an eating area. Both bedrooms offer great natural light and mirrored closets, with one featuring double closets for added storage. The updated bathroom includes a tiled walk-in shower, quartz vanity, new toilet and built-in storage. The recently painted basement offers laundry and flexible space with future potential for expansion, a home office or studio. Detached oversized one-car garage, long driveway with RV or boat parking and front and back yards ready for gardening or entertaining. With a Walk Score of 93 and Bike Score of 100, plus access to the highly regarded Abernethy, Hosford and Cleveland school path, this home blends classic Portland charm with modern updates and an unbeatable location. [Home Energy Score = 4. HES Report at https://rpt.greenbuildingregistry.com/hes/OR10242536]