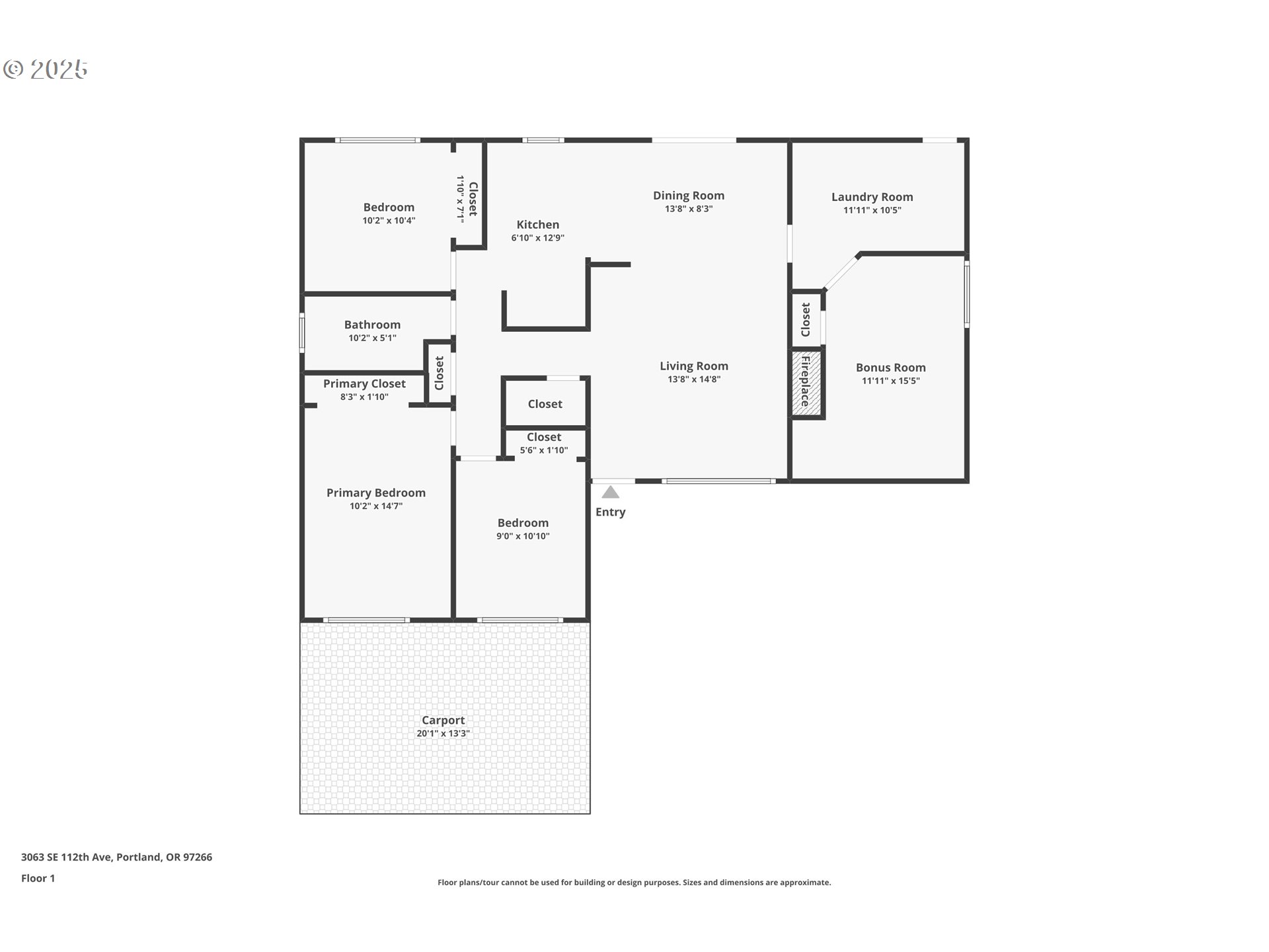
This well-laid-out single-level home sits on a very large lot with a fully fenced backyard that offers space to spread out, entertain, or simply enjoy the outdoors. Real hardwood floors run throughout, grounding the home with warmth and durability. The living room centers around a fireplace and flows easily into the dining area, where a sliding door connects the kitchen to the back patio and expansive yard. The kitchen features stainless steel appliances and functional workspace, while three comfortable bedrooms are positioned along the hallway near the full bathroom. A separate laundry room and an additional bonus/flex space add versatility for work, hobbies, or extra storage. A covered carport and the home’s straightforward single-story design makes living easy. Located in Portland, this property offers a rare combination of usable interior space and an oversized lot with room to grow. City-designated MHD zoning — land value with future development potential. Buyer to verify. [Home Energy Score = 3. HES Report at https://rpt.greenbuildingregistry.com/hes/OR10196168]
Listing Provided Courtesy of Henry Liu, Opt
General Information
173403089
SingleFamilyResidence
26
DOM
3
8712 SqFt
1.5
1305
1959
Multnomah
R258812
W Powellhurst
Ron Russell 6/10
David Douglas
Residential
SingleFamilyResidence
ROCOA PK, BLOCK 1, LOT 10 EXC PT IN ST
Listing Provided Courtesy of Henry Liu, Opt
Krishna Realty data last checked: Jan 10, 2026 12:21 | Listing last modified Jan 10, 2026 00:20,
Source:
This well-laid-out single-level home sits on a very large lot with a fully fenced backyard that offers space to spread out, entertain, or simply enjoy the outdoors. Real hardwood floors run throughout, grounding the home with warmth and durability. The living room centers around a fireplace and flows easily into the dining area, where a sliding door connects the kitchen to the back patio and expansive yard. The kitchen features stainless steel appliances and functional workspace, while three comfortable bedrooms are positioned along the hallway near the full bathroom. A separate laundry room and an additional bonus/flex space add versatility for work, hobbies, or extra storage. A covered carport and the home’s straightforward single-story design makes living easy. Located in Portland, this property offers a rare combination of usable interior space and an oversized lot with room to grow. City-designated MHD zoning — land value with future development potential. Buyer to verify. [Home Energy Score = 3. HES Report at https://rpt.greenbuildingregistry.com/hes/OR10196168]