Portland, 97236
3 Bed
1 Bath
836 SqFt
135 DOM
Built: 1980
$409,900
Price cut: $5K (04-24-2026)
$409900
Price cut: $5K (04-24-2026)
3 Bed
1 Bath
836 SqFt
135 DOM
Built: 1980
Principal Broker
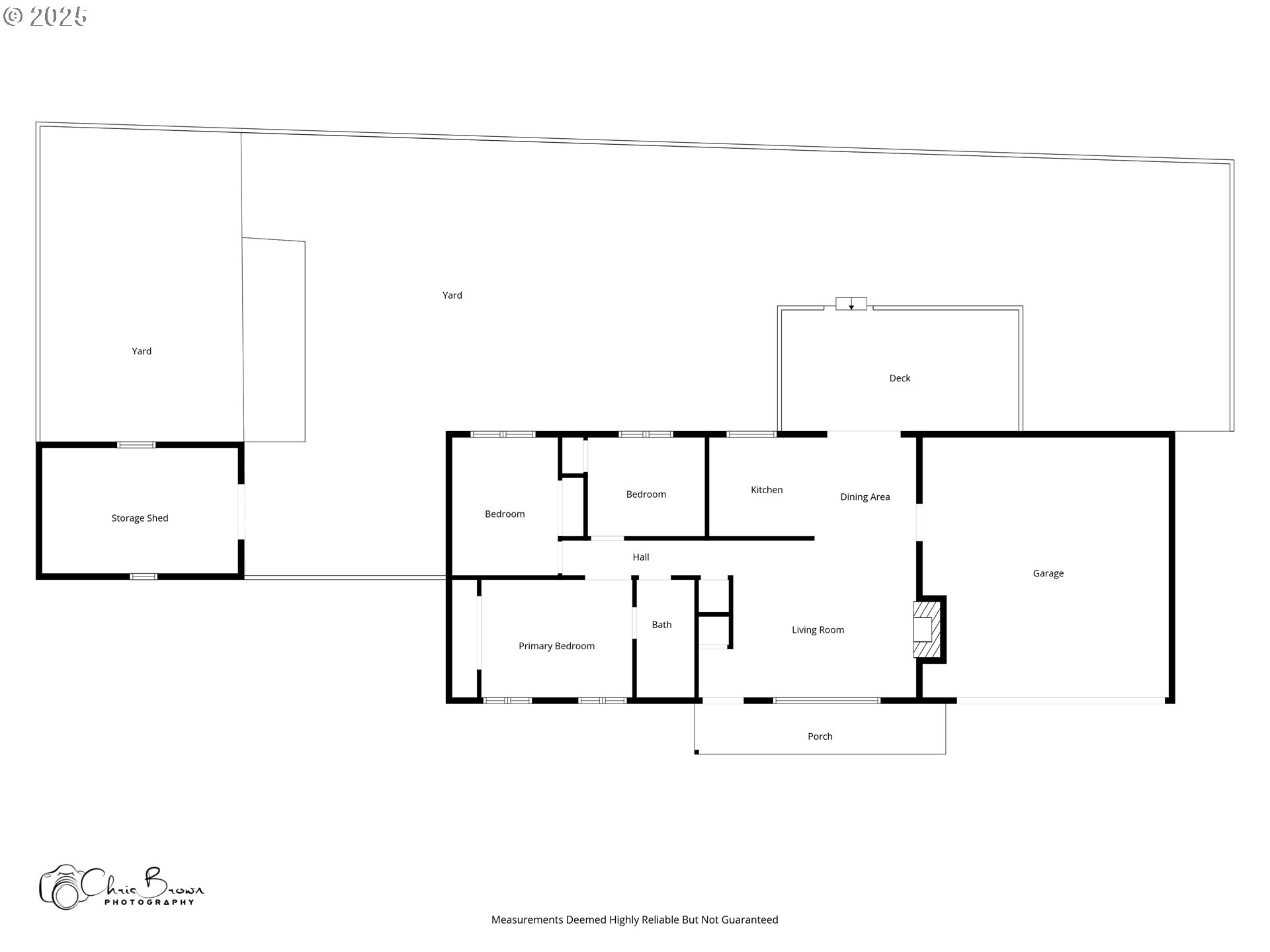
(503) 893-8874Move-in ready and recently price-adjusted, this thoughtfully refreshed one-level home is tucked away at the end of a cul-de-sac in outer SE Portland.Interior features include brand-new flooring, a fully updated kitchen (2025) with new cabinetry and updated appliances, and a remodeled bathroom with modern finishes. Energy-efficient heat pump for year-round comfort. Wood-burning fireplace with lined chimney, ready for insert.Light-filled layout offers comfortable living and functional flow.Exterior amenities include a 2+ car garage, RV parking, 10x16 Tuff Shed, and covered wood storage. Large, fully fenced backyard with new fencing provides space for outdoor living, gardening, or future expansion.Potential for ADU (buyer to perform due diligence) and existing chicken variance.Convenient location in Centennial School District with easy access to shopping, parks, and major routes.Recent price improvement—excellent opportunity for a move-in ready home with key updates already completed. [Home Energy Score = 9. HES Report at https://rpt.greenbuildingregistry.com/hes/OR10240106]
Listing Provided Courtesy of Annette Kienberger, Berkshire Hathaway HomeServices NW Real Estate
430628308
SingleFamilyResidence
135 DOM
3
8712 SqFt
1
836
1980
Multnomah
R274138
Powell Butte 3/10
Centennial 6/10
Centennial 6/10
Residential
SingleFamilyResidence
SPARKS LANE, LOT 2, INC UND INT TRACT A
Listing Provided Courtesy of Annette Kienberger, Berkshire Hathaway HomeServices NW Real Estate
Krishna Realty data last checked: Apr 30, 2026 00:55 | Listing last modified Apr 24, 2026 07:42,
Source:
Download our Mobile app
0
836
0
836
Trio
836
1/Gas
3
1
0
1
Composition
2, Attached
Stories1,Ranch
Driveway
1
1980
Yes
T111Siding, VinylSiding
CrawlSpace
RVParking
CrawlSpace
ConcretePerimeter
AluminumFrames
Dishwasher, FreeStandingRange, FreeStandingRefrigerator, Microwave
CeilingFan, GarageDoorOpener, LuxuryVinylTile, WasherDryer
Deck, DogRun, Fenced, RVParking, ToolShed, Yard
OneLevel
HeatPump
Electricity
HeatPump, WallHeater
PublicSewer
Electricity
Electricity
4073.65
0
Cash,Conventional,FHA,VALoan
12-10-2025
No
No
135
141
Cash,Conventional,FHA,VALoan
$424,900
$409,900
Apr 24, 2026 07:42
Listing courtesy of Berkshire Hathaway HomeServices NW Real Estate.
The content relating to real estate for sale on this site comes in part from the IDX program of the RMLS of Portland, Oregon.
Real Estate listings held by brokerage firms other than this firm are marked with the RMLS logo, and
detailed information about these properties include the name of the listing's broker.
Listing content is copyright © 2019 RMLS of Portland, Oregon.
All information provided is deemed reliable but is not guaranteed and should be independently verified.
Krishna Realty data last checked: Apr 30, 2026 00:55 | Listing last modified Apr 24, 2026 07:42.
Some properties which appear for sale on this web site may subsequently have sold or may no longer be available.
Principal Broker
(503) 893-8874Move-in ready and recently price-adjusted, this thoughtfully refreshed one-level home is tucked away at the end of a cul-de-sac in outer SE Portland.Interior features include brand-new flooring, a fully updated kitchen (2025) with new cabinetry and updated appliances, and a remodeled bathroom with modern finishes. Energy-efficient heat pump for year-round comfort. Wood-burning fireplace with lined chimney, ready for insert.Light-filled layout offers comfortable living and functional flow.Exterior amenities include a 2+ car garage, RV parking, 10x16 Tuff Shed, and covered wood storage. Large, fully fenced backyard with new fencing provides space for outdoor living, gardening, or future expansion.Potential for ADU (buyer to perform due diligence) and existing chicken variance.Convenient location in Centennial School District with easy access to shopping, parks, and major routes.Recent price improvement—excellent opportunity for a move-in ready home with key updates already completed. [Home Energy Score = 9. HES Report at https://rpt.greenbuildingregistry.com/hes/OR10240106]
Download our Mobile app