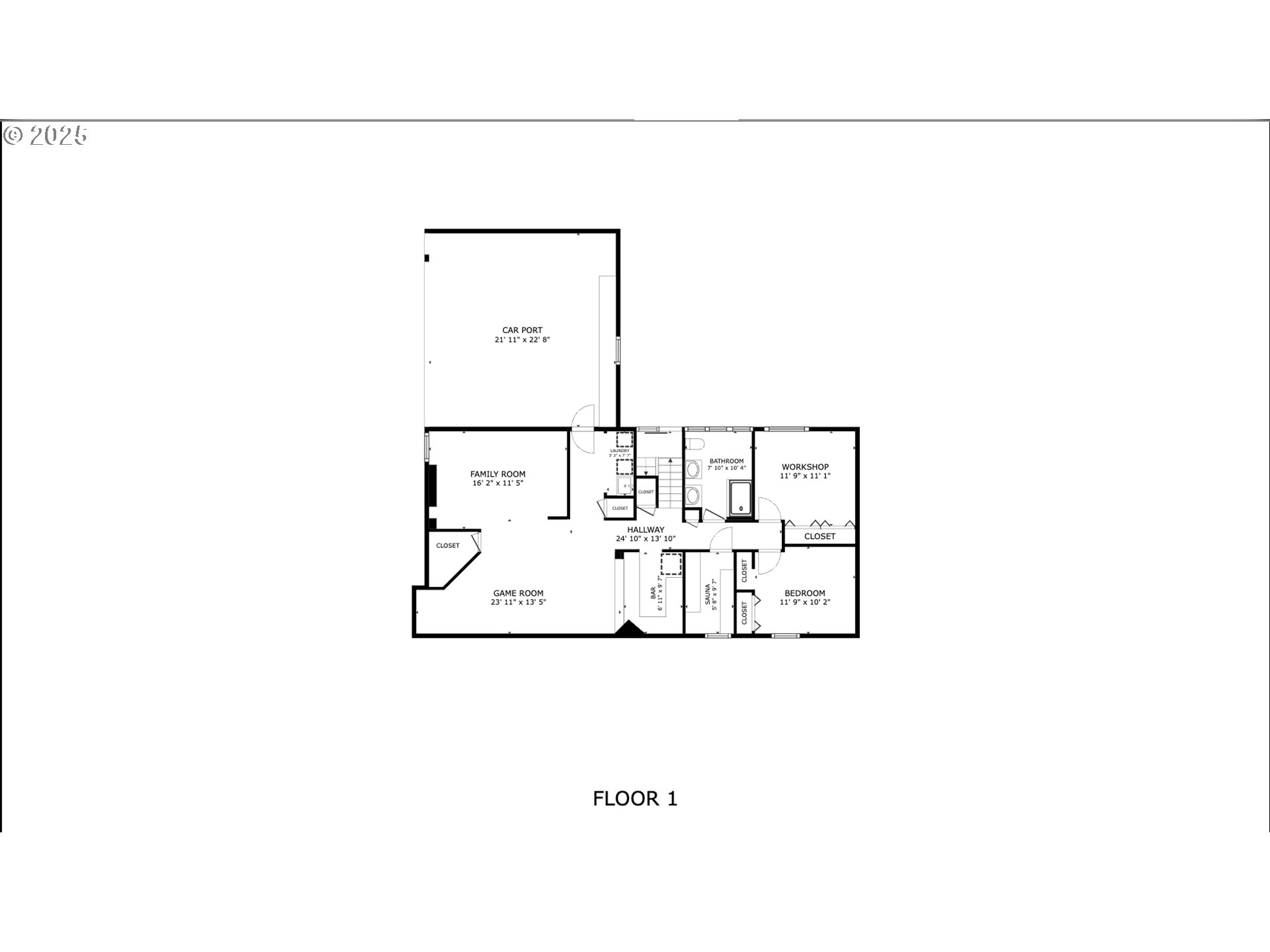
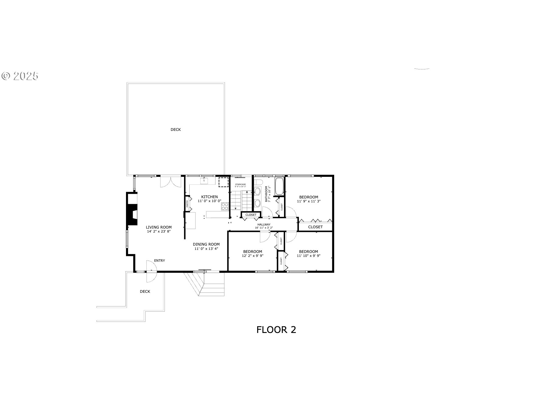
Making your new home your own is great, but not if it means replacing roofs and furnaces. Thankfully, the owners of this home have already replaced the roof, furnace, AC, water heater and has been connected to the public sewer....Main floor includes 3 bedrooms, a full bath, living and dining areas, and sliding-door access to a large deck: great for hosting or lounging....And the cool downstairs: Two more bedrooms, a second bathroom, a dry bar (could be a second kitchen with a little imagination), and a daylight basement with its own exterior entry that is flexible as a family room, media den, or mini-apartment....The outside perks: a big lot with plenty of room for RVs, boats, parking, a garden or play area. Yard space is generous.....If you’re ready for space, flexibility, and a handy set of upgrades, this one’s calling!
Listing Provided Courtesy of Dan Walters, Keller Williams Realty Portland Elite
General Information
315778208
SingleFamilyResidence
27
DOM
5
0.3 acres
2
2617
1964
Multnomah
R338847
Hollydale 4/10
Clear Creek
Gresham
Residential
SingleFamilyResidence
SECTION 09 1S 3E, TL 3800 0.30 ACRES
Listing Provided Courtesy of Dan Walters, Keller Williams Realty Portland Elite
Krishna Realty data last checked: Dec 11, 2025 10:36 | Listing last modified Dec 11, 2025 00:21,
Source:
Download our Mobile app
Residence Information
0
1309
1308
2617
RMLS
1309
2/Gas
5
2
0
2
Composition
2, Carport
Stories2
Driveway
2
1964
No
WoodSiding
Daylight,ExteriorEntry,Finished
Daylight,ExteriorEnt
Features and Utilities
Deck, Fireplace
Dishwasher, Disposal, FreeStandingRange
CentralAir
Electricity
ForcedAir
PublicSewer
Electricity
Gas
Financial
5886.74
0
Cash,FHA,VALoan
11-14-2025
No
No
Comparable Information
27
27
Cash,FHA,VALoan
$475,000
$475,000
Dec 11, 2025 00:21
Schools
public Elementary : Hollydale
4/10Ratings Middle : Clear Creek N/ARatingsprivate High : GreshamN/ARatings
Map
Listing courtesy of Keller Williams Realty Portland Elite.
Making your new home your own is great, but not if it means replacing roofs and furnaces. Thankfully, the owners of this home have already replaced the roof, furnace, AC, water heater and has been connected to the public sewer....Main floor includes 3 bedrooms, a full bath, living and dining areas, and sliding-door access to a large deck: great for hosting or lounging....And the cool downstairs: Two more bedrooms, a second bathroom, a dry bar (could be a second kitchen with a little imagination), and a daylight basement with its own exterior entry that is flexible as a family room, media den, or mini-apartment....The outside perks: a big lot with plenty of room for RVs, boats, parking, a garden or play area. Yard space is generous.....If you’re ready for space, flexibility, and a handy set of upgrades, this one’s calling!