Portland, 97212
6 Bed
3 Bath
4226 SqFt
1 DOM
Built: 1913
$888,000
$888000
6 Bed
3 Bath
4226 SqFt
1 DOM
Built: 1913
Principal Broker
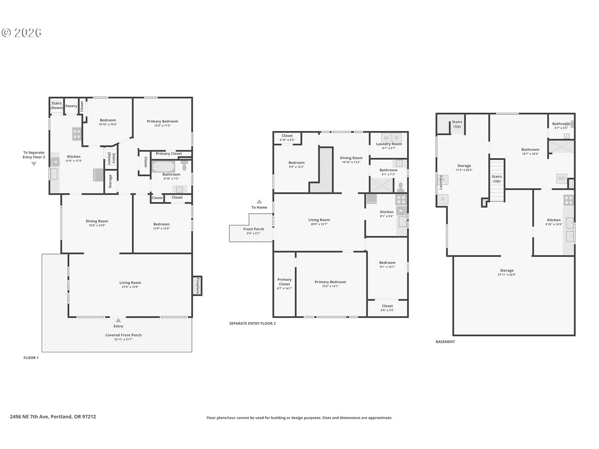
(503) 893-8874Classic Old Portland charm meets smart investment opportunity with 4 year old roof! This beautifully preserved Old-Portland style home has been converted to a legal duplex, offering flexibility for owner-occupants or investors alike. Each unit features separate gas heat and power for convenience and efficiency. The main level showcases timeless character with hardwood floors, built-ins, and a cozy fireplace that anchors the living space. Period details blend seamlessly with functional updates, creating a warm and inviting atmosphere. Situated on a desirable corner lot, the property is framed by mature landscaping that enhances both privacy and curb appeal. Located in a vibrant inner NE Portland neighborhood, this home offers excellent proximity to Irving Park, Alberta Park, and easy access to nearby walking and biking routes, making it simple to enjoy the outdoors and all the area has to offer. [Home Energy Score = 1. HES Report at https://rpt.greenbuildingregistry.com/hes/OR10246653]
Listing Provided Courtesy of William Grzebyk, Redfin
383931704
SingleFamilyResidence
1 DOM
6
5227.2 SqFt
3
4226
1913
R5
Multnomah
R189359
Irvington 3/10
Harriet Tubman
Jefferson
Residential
SingleFamilyResidence
IRVINGTON, BLOCK 118, LOT 20
Listing Provided Courtesy of William Grzebyk, Redfin
Krishna Realty data last checked: Apr 30, 2026 14:10 | Listing last modified Apr 10, 2026 10:15,
Source:
Download our Mobile app
1200
1500
1526
4226
approx
2700
2/Gas
6
3
0
3
Composition
Craftsman
OnStreet,ParkingPad
3
1913
Yes
Asbestos
FullBasement,SeparateLivingQuartersApartmentAuxLivingUnit,StorageSpace
FullBasement,Separat
AluminumFrames,Doubl
HardwoodFloors
Dishwasher, FreeStandingRange, FreeStandingRefrigerator, GasAppliances, Granite, Pantry, RangeHood, Stainle
BambooFloor, CeilingFan, Granite, HardwoodFloors, SeparateLivingQuartersApartmentAuxLivingUnit, TileFloor
Fenced, Patio, Porch, Yard
CentralAir, MiniSplit
ForcedAir, MiniSplit
PublicSewer
Gas
8018.79
0
Cash,Conventional,FHA,VALoan
04-09-2026
0
No
No
1
21
Cash,Conventional,FHA,VALoan
$888,000
$888,000
Apr 10, 2026 10:15
Listing courtesy of Redfin.
The content relating to real estate for sale on this site comes in part from the IDX program of the RMLS of Portland, Oregon.
Real Estate listings held by brokerage firms other than this firm are marked with the RMLS logo, and
detailed information about these properties include the name of the listing's broker.
Listing content is copyright © 2019 RMLS of Portland, Oregon.
All information provided is deemed reliable but is not guaranteed and should be independently verified.
Krishna Realty data last checked: Apr 30, 2026 14:10 | Listing last modified Apr 10, 2026 10:15.
Some properties which appear for sale on this web site may subsequently have sold or may no longer be available.
Principal Broker
(503) 893-8874Classic Old Portland charm meets smart investment opportunity with 4 year old roof! This beautifully preserved Old-Portland style home has been converted to a legal duplex, offering flexibility for owner-occupants or investors alike. Each unit features separate gas heat and power for convenience and efficiency. The main level showcases timeless character with hardwood floors, built-ins, and a cozy fireplace that anchors the living space. Period details blend seamlessly with functional updates, creating a warm and inviting atmosphere. Situated on a desirable corner lot, the property is framed by mature landscaping that enhances both privacy and curb appeal. Located in a vibrant inner NE Portland neighborhood, this home offers excellent proximity to Irving Park, Alberta Park, and easy access to nearby walking and biking routes, making it simple to enjoy the outdoors and all the area has to offer. [Home Energy Score = 1. HES Report at https://rpt.greenbuildingregistry.com/hes/OR10246653]