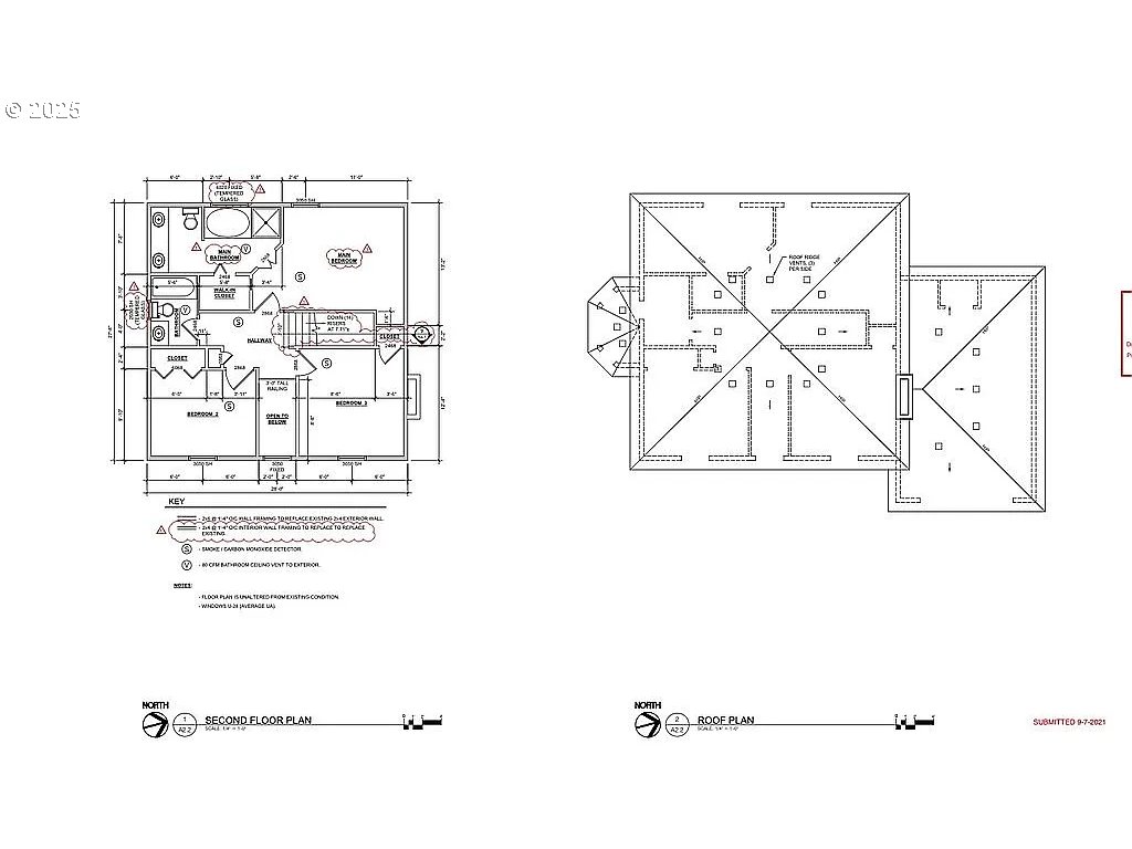
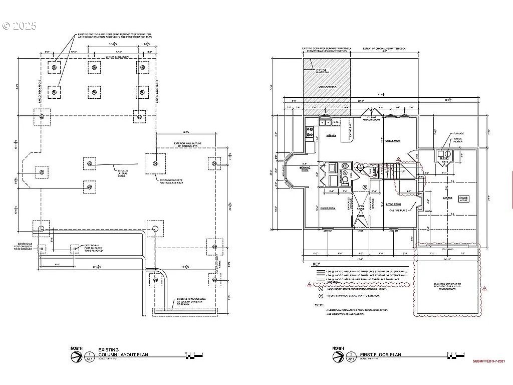
The Seller will review all offers at 5 p.m. on Saturday 1/17/26, then the property will go off the market on 1/18/26. UNHEARD of opportunity to build your dream home in the SW Hills flanked by multi-million dollar homes. No, not bare land - this is a developed lot with all utilities on site. The foundation and first floor structure of the original home are in place and build-ready. Most importantly, there is already an active building permit to rebuild the existing structure. Rebuild as designed, or submit for a permit revision to create your dream home! No development fees, no permit fees, no architect or engineering fees, and no new utility fees saves $250k+ and at least a year of pre-construction. Foundation and 1st floor in place saves another $150k+. Utilities in place saves $40k+. Additionally, property taxes have already been appealed and reassessed as if there is no structure on the site saving $6k+ year. Current owner is builder and can facilitate rebuild and/or redesign if desired. Do not enter site without permission.
Listing Provided Courtesy of Jared Barnes, Save Big Realty
General Information
588789896
SingleFamilyResidence
124
DOM
0.43 acres
R10
Multnomah
R128422
Ainsworth 9/10
West Sylvan
Lincoln
Land
SingleFamilyResidence
CARTERS ADD TO P, BLOCK 65, LOT 8 TL 5100
Listing Provided Courtesy of Jared Barnes, Save Big Realty
Krishna Realty data last checked: Jan 17, 2026 08:31 | Listing last modified Jan 07, 2026 08:54,
Source:
Download our Mobile app
Residence Information
No
Features and Utilities
Financial
6783.64
0
Cash,Conventional
09-05-2025
No
No
Comparable Information
124
134
Cash,Conventional
$399,999
$200,000
Jan 07, 2026 08:54
Schools
public Elementary : Ainsworth
9/10Ratings Middle : West Sylvan N/ARatings High : LincolnN/ARatings
The Seller will review all offers at 5 p.m. on Saturday 1/17/26, then the property will go off the market on 1/18/26. UNHEARD of opportunity to build your dream home in the SW Hills flanked by multi-million dollar homes. No, not bare land - this is a developed lot with all utilities on site. The foundation and first floor structure of the original home are in place and build-ready. Most importantly, there is already an active building permit to rebuild the existing structure. Rebuild as designed, or submit for a permit revision to create your dream home! No development fees, no permit fees, no architect or engineering fees, and no new utility fees saves $250k+ and at least a year of pre-construction. Foundation and 1st floor in place saves another $150k+. Utilities in place saves $40k+. Additionally, property taxes have already been appealed and reassessed as if there is no structure on the site saving $6k+ year. Current owner is builder and can facilitate rebuild and/or redesign if desired. Do not enter site without permission.