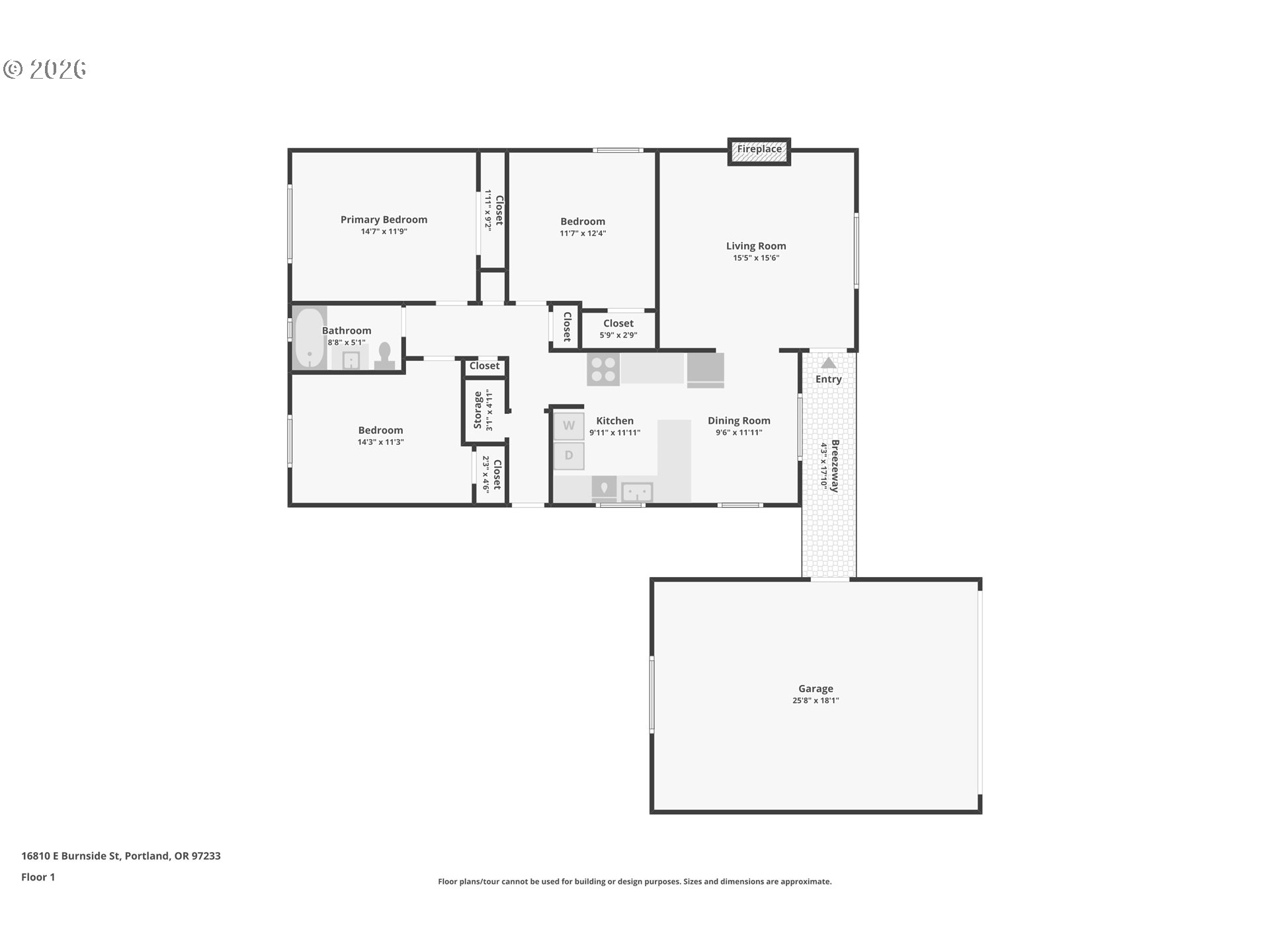
This thoughtfully improved home offers extensive upgrades and inviting living spaces designed for comfort and functionality. Major exterior improvements include a roof replacement completed in 2024, leaf filter gutter system added the same year, and brand new crawlspace vapor barriers installed in 2026, providing lasting peace of mind. Step inside to discover brand new interior paint, brand new carpet and tile, and warm oak wood flooring flowing through the living room, dining area, and kitchen. A cozy fireplace anchors the living room, creating a welcoming space to relax and gather. The kitchen and living areas are enhanced by updated plumbing, an upgraded junction box, and newer living and dining room windows installed in 2018, allowing abundant natural light. The primary bedroom features durable resin tile flooring, while guest bedrooms offer comfortable wall to wall carpet. A brand new electric garage door adds convenience and efficiency. Outdoors, the backyard includes a storage shed and an existing kennel/enclosed outdoor cat area that will remain with the property. As an added value, all tools currently in the garage and shed are included, such as a table saw and shelving. With a long list of meaningful improvements and move in ready condition, this home reflects pride of ownership and careful investment throughout. [Home Energy Score = 1. HES Report at https://rpt.greenbuildingregistry.com/hes/OR10244076]
Listing Provided Courtesy of Mia McCormick, Redfin
General Information
761087891
SingleFamilyResidence
97
DOM
3
6969.6 SqFt
1
1184
1955
Multnomah
R293954
Wilkes
H.B. Lee
Reynolds
Residential
SingleFamilyResidence
VERDANTA, LOT 14 TL 2400
Listing Provided Courtesy of Mia McCormick, Redfin
Krishna Realty data last checked: Apr 30, 2026 08:01 | Listing last modified Apr 03, 2026 16:29,
Source:
This thoughtfully improved home offers extensive upgrades and inviting living spaces designed for comfort and functionality. Major exterior improvements include a roof replacement completed in 2024, leaf filter gutter system added the same year, and brand new crawlspace vapor barriers installed in 2026, providing lasting peace of mind. Step inside to discover brand new interior paint, brand new carpet and tile, and warm oak wood flooring flowing through the living room, dining area, and kitchen. A cozy fireplace anchors the living room, creating a welcoming space to relax and gather. The kitchen and living areas are enhanced by updated plumbing, an upgraded junction box, and newer living and dining room windows installed in 2018, allowing abundant natural light. The primary bedroom features durable resin tile flooring, while guest bedrooms offer comfortable wall to wall carpet. A brand new electric garage door adds convenience and efficiency. Outdoors, the backyard includes a storage shed and an existing kennel/enclosed outdoor cat area that will remain with the property. As an added value, all tools currently in the garage and shed are included, such as a table saw and shelving. With a long list of meaningful improvements and move in ready condition, this home reflects pride of ownership and careful investment throughout. [Home Energy Score = 1. HES Report at https://rpt.greenbuildingregistry.com/hes/OR10244076]