Portland, 97236
3 Bed
1 Bath
1176 SqFt
153 DOM
Built: 1962
$415,000
$415000
3 Bed
1 Bath
1176 SqFt
153 DOM
Built: 1962
Open House
Principal Broker
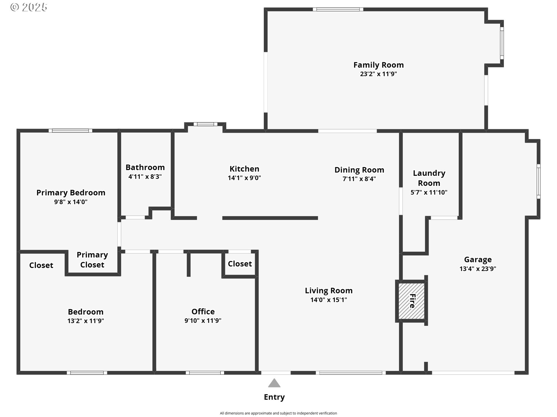
(503) 893-8874Back on the market and better than ever. New Electrical Panel, New Roof and more. Welcome to 16671 SE Haig Dr, Portland, OR – a well-cared-for single-level home offering comfort, functionality, and extra space for all your needs. Inside, you’ll find 3 bedrooms and 1 bathroom, thoughtfully designed to provide both privacy and flow. The heart of the home features an inviting living area that opens to the kitchen and dining spaces, while a large family room addition offers the perfect setting for gatherings, game nights, or a dedicated media space. The primary suite, and two additional bedrooms provide flexibility for guests, a home office, or hobbies. Step outside to enjoy a private fenced backyard, complete with a tool shed for extra storage and projects. The garage includes a dedicated shop area, making it ideal for woodworking, tinkering, or hobbies. Located in a friendly Southeast Portland neighborhood, this home offers easy access to parks, schools, shopping, and major roadways, providing both convenience and community.
Listing Provided Courtesy of Donald Clemons, JMG - Jason Mitchell Group
191647521
SingleFamilyResidence
153 DOM
3
8276.4 SqFt
1
1176
1962
Multnomah
R136778
Powell Butte 3/10
Centennial 6/10
Centennial 6/10
Residential
SingleFamilyResidence
COACHLIGHT MANOR, BLOCK 3, LOT 20
Listing Provided Courtesy of Donald Clemons, JMG - Jason Mitchell Group
Krishna Realty data last checked: Feb 22, 2026 03:40 | Listing last modified Feb 17, 2026 14:46,
Source:
Sun, Feb 22nd, 12PM to 2PM
Download our Mobile app
0
1176
0
1176
TAX
1176
1/Gas
3
1
0
1
Composition
1, Attached
Stories1
Driveway,RVAccessPar
1
1962
No
WoodSiding
CrawlSpace
RVParking,RVBoatStorage
CrawlSpace
ConcretePerimeter
AluminumFrames,Doubl
Fireplace
Dishwasher, Disposal, FreeStandingRange
CeilingFan, HighCeilings, Laundry, VaultedCeiling
Deck, Fenced, GasHookup, RVHookup, RVParking, Workshop, Yard
GarageonMain, GroundLevel, OneLevel
None
Gas
ForcedAir
PublicSewer
Gas
Electricity, Gas
4397.1
0
Cash,Conventional,FHA,VALoan
09-17-2025
No
No
153
158
Cash,Conventional,FHA,VALoan
$415,000
$415,000
Feb 17, 2026 14:46
Listing courtesy of JMG - Jason Mitchell Group.
The content relating to real estate for sale on this site comes in part from the IDX program of the RMLS of Portland, Oregon.
Real Estate listings held by brokerage firms other than this firm are marked with the RMLS logo, and
detailed information about these properties include the name of the listing's broker.
Listing content is copyright © 2019 RMLS of Portland, Oregon.
All information provided is deemed reliable but is not guaranteed and should be independently verified.
Krishna Realty data last checked: Feb 22, 2026 03:40 | Listing last modified Feb 17, 2026 14:46.
Some properties which appear for sale on this web site may subsequently have sold or may no longer be available.
Principal Broker
(503) 893-8874Back on the market and better than ever. New Electrical Panel, New Roof and more. Welcome to 16671 SE Haig Dr, Portland, OR – a well-cared-for single-level home offering comfort, functionality, and extra space for all your needs. Inside, you’ll find 3 bedrooms and 1 bathroom, thoughtfully designed to provide both privacy and flow. The heart of the home features an inviting living area that opens to the kitchen and dining spaces, while a large family room addition offers the perfect setting for gatherings, game nights, or a dedicated media space. The primary suite, and two additional bedrooms provide flexibility for guests, a home office, or hobbies. Step outside to enjoy a private fenced backyard, complete with a tool shed for extra storage and projects. The garage includes a dedicated shop area, making it ideal for woodworking, tinkering, or hobbies. Located in a friendly Southeast Portland neighborhood, this home offers easy access to parks, schools, shopping, and major roadways, providing both convenience and community.
Download our Mobile app