Portland, 97221
3 Bed
2 Bath
2672 SqFt
18 DOM
Built: 1940
$1,000,000
$1000000
3 Bed
2 Bath
2672 SqFt
18 DOM
Built: 1940
Principal Broker
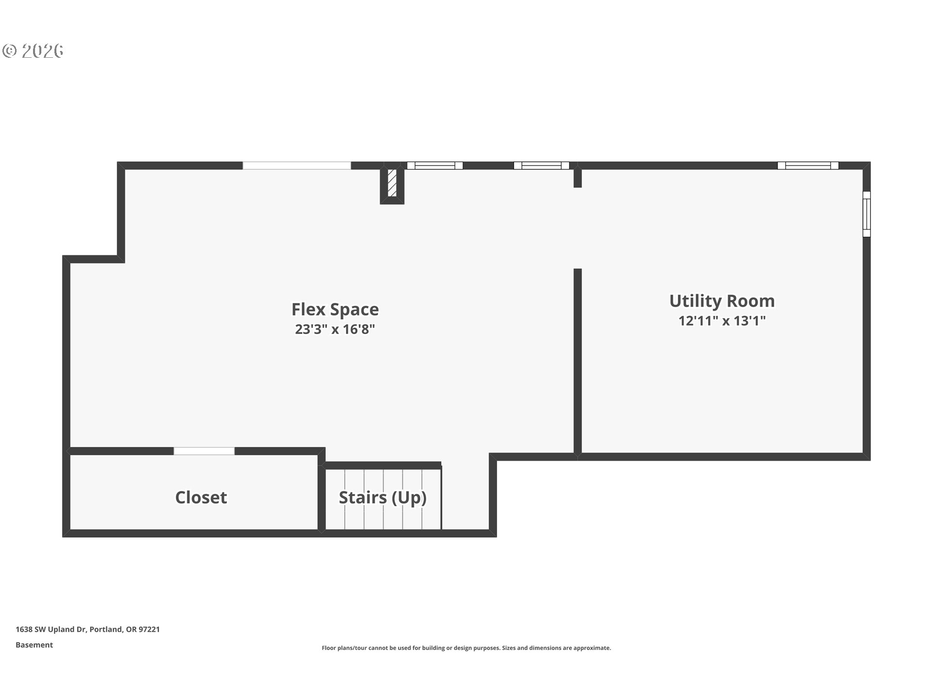
(503) 893-8874Beautiful remodel of this picture perfect home in tucked away neighborhood just steps from the Rose Garden and trails. Walk through the entry into the light-filled family room with updated fireplace. The dining room has plenty of room for dinner parties and is just steps from the updated kitchen. Chic design in the kitchen offers quartz counters, glass tile backsplash, refreshed cabinetry, high end appliances, and door out to the back deck perfect for entertaining, relaxing, or private dinners. Main floor bedroom and bathroom offer great flexibility. The open staircase leads to the upstairs true master suite with vaults, incredible light from oversized windows, walk-in closet, and freshly remodeled bathroom. French door leads to attached private office with built-ins. Additional bedroom and full bathroom complete the upper level. Outside you will find lounging areas in the front garden or large back deck. Lower level with storage, laundry, and exercise room. Do not miss the rare detached studio space perfect for guests, workspace, home office, or mother-in-law suite. Complete with full bath, kitchenette, private entrance, and living, dining, office, and bedroom spaces. Lots of flexibility and options with this gorgeous home. [Home Energy Score = 4. HES Report at https://rpt.greenbuildingregistry.com/hes/OR10246490]
Listing Provided Courtesy of Chris Suarez, Keller Williams Sunset Corridor
782959617
SingleFamilyResidence
18 DOM
3
9147.6 SqFt
2
2672
1940
Multnomah
R300927
Ainsworth
West Sylvan
Lincoln
Residential
SingleFamilyResidence
WEST HIGHLANDS & EXTD, BLOCK 1, LOT 9
Listing Provided Courtesy of Chris Suarez, Keller Williams Sunset Corridor
Krishna Realty data last checked: Apr 28, 2026 09:11 | Listing last modified Apr 25, 2026 14:04,
Source:
Download our Mobile app
928
1044
700
2672
Trio
1972
3
2
0
2
Composition
1, Carport
Traditional
Carport
3
1940
Yes
WoodComposite
PartialBasement,PartiallyFinished
PartialBasement,Part
Slab
DoublePaneWindows
Fireplace
BuiltinRange, Dishwasher, FreeStandingRefrigerator, GasAppliances, Island
CeilingFan, HardwoodFloors, SoakingTub, WalltoWallCarpet
Deck, Patio
CentralAir
Gas
ForcedAir
PublicSewer
Gas
Gas
11583.39
0
Cash,Conventional
04-07-2026
No
No
18
21
Cash,Conventional
$1,000,000
$1,000,000
Apr 25, 2026 14:04
Listing courtesy of Keller Williams Sunset Corridor.
The content relating to real estate for sale on this site comes in part from the IDX program of the RMLS of Portland, Oregon.
Real Estate listings held by brokerage firms other than this firm are marked with the RMLS logo, and
detailed information about these properties include the name of the listing's broker.
Listing content is copyright © 2019 RMLS of Portland, Oregon.
All information provided is deemed reliable but is not guaranteed and should be independently verified.
Krishna Realty data last checked: Apr 28, 2026 09:11 | Listing last modified Apr 25, 2026 14:04.
Some properties which appear for sale on this web site may subsequently have sold or may no longer be available.
Principal Broker
(503) 893-8874Beautiful remodel of this picture perfect home in tucked away neighborhood just steps from the Rose Garden and trails. Walk through the entry into the light-filled family room with updated fireplace. The dining room has plenty of room for dinner parties and is just steps from the updated kitchen. Chic design in the kitchen offers quartz counters, glass tile backsplash, refreshed cabinetry, high end appliances, and door out to the back deck perfect for entertaining, relaxing, or private dinners. Main floor bedroom and bathroom offer great flexibility. The open staircase leads to the upstairs true master suite with vaults, incredible light from oversized windows, walk-in closet, and freshly remodeled bathroom. French door leads to attached private office with built-ins. Additional bedroom and full bathroom complete the upper level. Outside you will find lounging areas in the front garden or large back deck. Lower level with storage, laundry, and exercise room. Do not miss the rare detached studio space perfect for guests, workspace, home office, or mother-in-law suite. Complete with full bath, kitchenette, private entrance, and living, dining, office, and bedroom spaces. Lots of flexibility and options with this gorgeous home. [Home Energy Score = 4. HES Report at https://rpt.greenbuildingregistry.com/hes/OR10246490]
Download our Mobile app