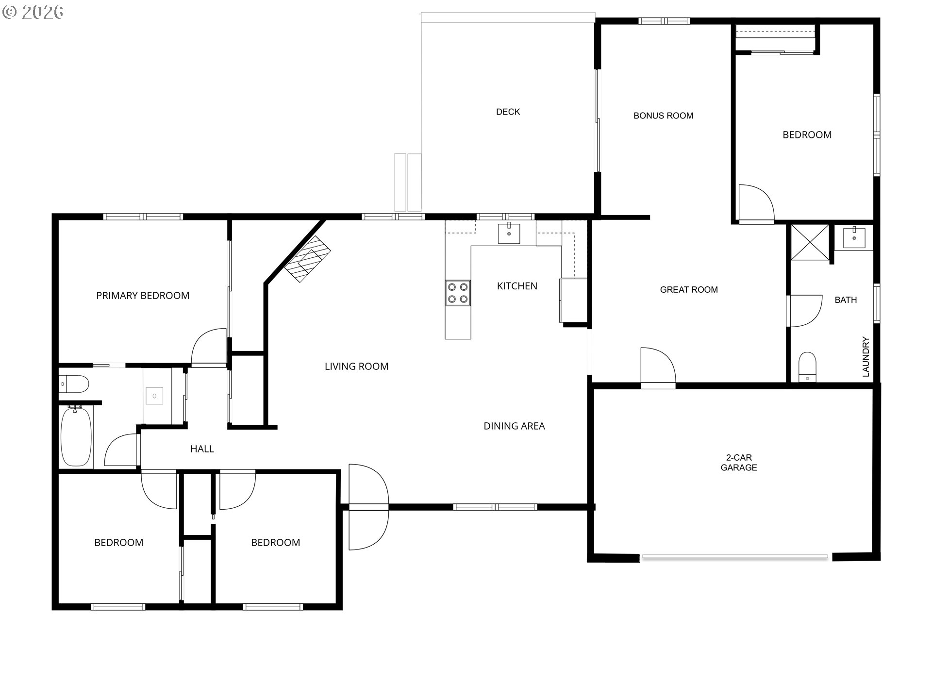
Charming meticulously maintained home located in a neighborhood that truly reflects pride of ownership, just blocks from Mt. Hood Community College and Gresham Golf Course. This inviting property features an open floor plan highlighted by an arched wood-burning fireplace in the living room.The beautifully updated kitchen showcases quartz countertops, classic shaker cabinetry, and stainless steel appliances—perfectly blending style and functionality. Recent updates include blonde luxury vinyl plank flooring, new carpet, and a freshly painted interior, creating a bright and modern feel throughout. The home offers three bedrooms and one full bathroom on one side, providing comfortable and functional living space. On the opposite end of the home, tucked behind the garage, you’ll find a versatile bonus area complete with a spacious family room, additional bedroom, and bathroom with laundry—ideal for an in-law suite, guest quarters, or multi-generational living. The family room opens to a large composite deck, perfect for indoor-outdoor entertaining.The backyard is thoughtfully designed and fully equipped, featuring a fully fenced yard, garden boxes, lawn space, bamboo privacy hedges, custom privacy screens, and a convenient tool shed— offering both beauty and versatility.
Listing Provided Courtesy of Wendy Ebster, ROI Realty
General Information
326604884
SingleFamilyResidence
1
DOM
4
7840.8 SqFt
2
1448
1976
R7
Multnomah
R244014
Hall 4/10
Gordon Russell
Sam Barlow
Residential
SingleFamilyResidence
PINEBROOK, BLOCK 2, LOT 17
Listing Provided Courtesy of Wendy Ebster, ROI Realty
Krishna Realty data last checked: Apr 18, 2026 02:27 | Listing last modified Apr 17, 2026 17:43,
Source:
Charming meticulously maintained home located in a neighborhood that truly reflects pride of ownership, just blocks from Mt. Hood Community College and Gresham Golf Course. This inviting property features an open floor plan highlighted by an arched wood-burning fireplace in the living room.The beautifully updated kitchen showcases quartz countertops, classic shaker cabinetry, and stainless steel appliances—perfectly blending style and functionality. Recent updates include blonde luxury vinyl plank flooring, new carpet, and a freshly painted interior, creating a bright and modern feel throughout. The home offers three bedrooms and one full bathroom on one side, providing comfortable and functional living space. On the opposite end of the home, tucked behind the garage, you’ll find a versatile bonus area complete with a spacious family room, additional bedroom, and bathroom with laundry—ideal for an in-law suite, guest quarters, or multi-generational living. The family room opens to a large composite deck, perfect for indoor-outdoor entertaining.The backyard is thoughtfully designed and fully equipped, featuring a fully fenced yard, garden boxes, lawn space, bamboo privacy hedges, custom privacy screens, and a convenient tool shed— offering both beauty and versatility.