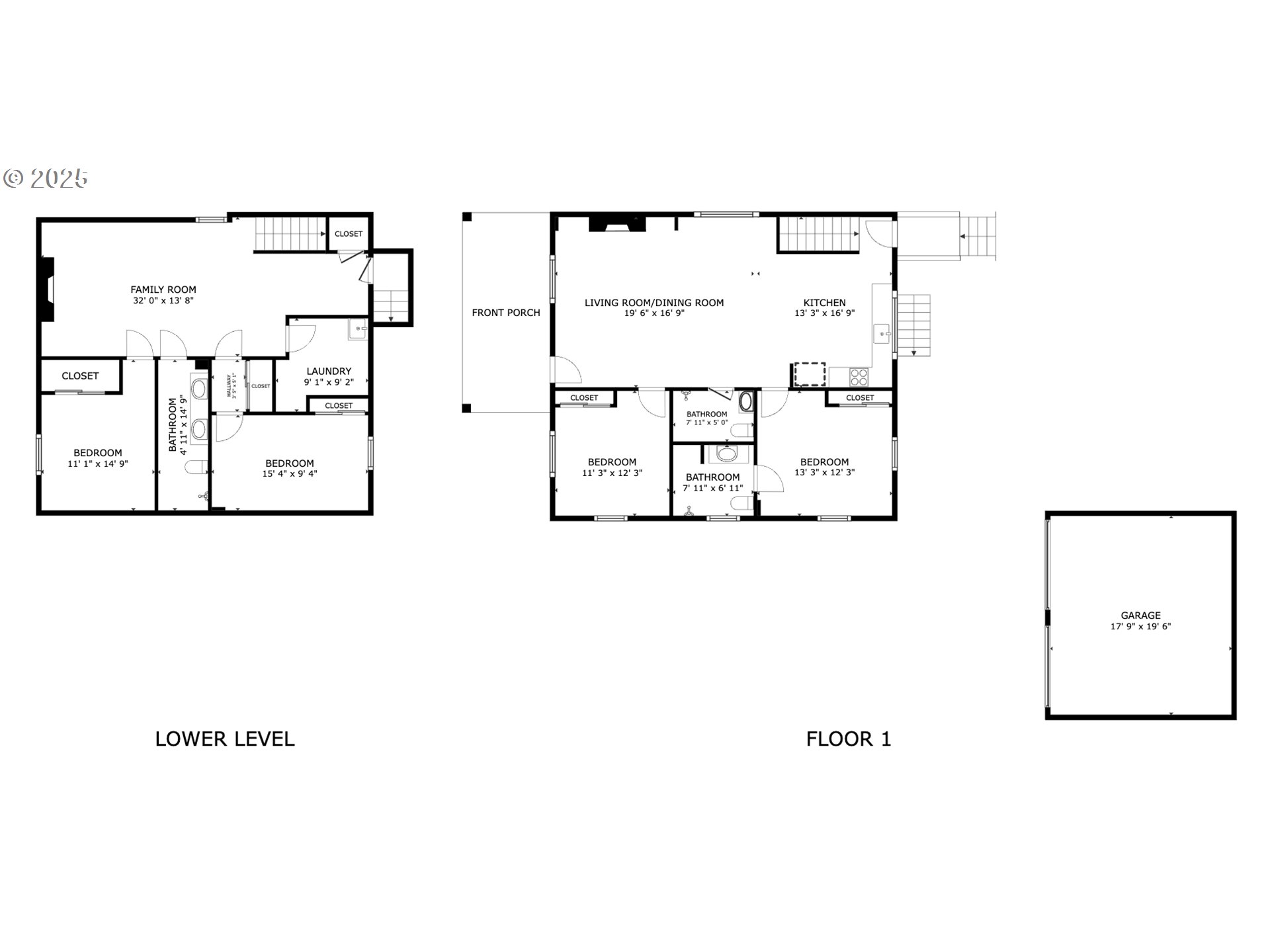
This isn’t a cosmetic update. It’s a ground-up reset, wrapped in a classic Portland bungalow....Tucked on a quiet street near Laurelhurst Park, this home blends early-century architecture with a true stud-out rebuild. Roof, plumbing, electrical, HVAC, and central AC have all been replaced, delivering the reliability of new construction while preserving the character that makes these homes special in the first place....The main level is designed for everyday comfort. Warm wood floors, abundant natural light, a generous primary suite, and a second bedroom create a layout that feels both open and intentional. The kitchen is clean and contemporary, outfitted with stainless appliances and finishes that prioritize function over flash...Downstairs, the flexibility sets this home apart. With its own exterior entrance, two additional bedrooms, a full bath with dual sinks, and a large family room, the lower level adapts easily. Guest space. Home office. Media room. Or a private living area that works independently from the main floor. Options that are increasingly hard to find in this neighborhood....Outside, the low-maintenance lot keeps weekends free, while NE Glisan’s cafés, restaurants, and the open green space of Laurelhurst Park are just moments away....This is a thoughtfully rebuilt bungalow in one of Portland’s most established neighborhoods. Solid where it matters. Flexible where it counts. And ready for its next chapter.
Listing Provided Courtesy of Dan Walters, Keller Williams Realty Portland Elite
General Information
138347612
SingleFamilyResidence
156
DOM
4
5662.8 SqFt
3
2040
1920
Multnomah
R202434
Laurelhurst
Laurelhurst
Grant
Residential
SingleFamilyResidence
LAURELCREST, BLOCK 3, N 8.65' OF LOT 11, LOT 12
Listing Provided Courtesy of Dan Walters, Keller Williams Realty Portland Elite
Krishna Realty data last checked: Apr 18, 2026 04:35 | Listing last modified Apr 18, 2026 00:12,
Source:
This isn’t a cosmetic update. It’s a ground-up reset, wrapped in a classic Portland bungalow....Tucked on a quiet street near Laurelhurst Park, this home blends early-century architecture with a true stud-out rebuild. Roof, plumbing, electrical, HVAC, and central AC have all been replaced, delivering the reliability of new construction while preserving the character that makes these homes special in the first place....The main level is designed for everyday comfort. Warm wood floors, abundant natural light, a generous primary suite, and a second bedroom create a layout that feels both open and intentional. The kitchen is clean and contemporary, outfitted with stainless appliances and finishes that prioritize function over flash...Downstairs, the flexibility sets this home apart. With its own exterior entrance, two additional bedrooms, a full bath with dual sinks, and a large family room, the lower level adapts easily. Guest space. Home office. Media room. Or a private living area that works independently from the main floor. Options that are increasingly hard to find in this neighborhood....Outside, the low-maintenance lot keeps weekends free, while NE Glisan’s cafés, restaurants, and the open green space of Laurelhurst Park are just moments away....This is a thoughtfully rebuilt bungalow in one of Portland’s most established neighborhoods. Solid where it matters. Flexible where it counts. And ready for its next chapter.