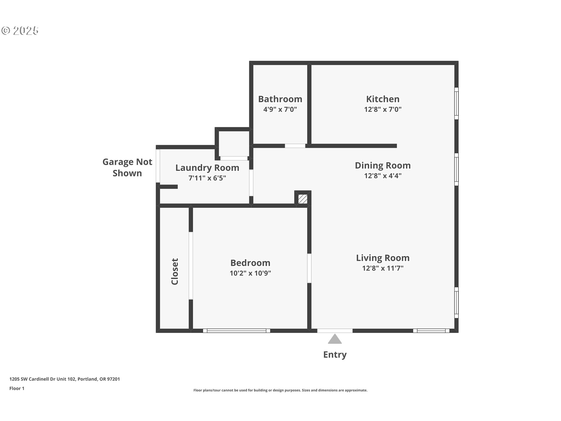
OPEN HOUSE 1/31 12:30-1:30! Tucked away behind PSU, yet just moments from everything, this one-of-a-kind condo offers the perfect blend of urban convenience and quiet comfort. Enjoy easy access to the PSU Farmers Market, the Cultural District, downtown, freeways, the street car, an abundance of restaurants and shops all within walking distance. This unique unit is freshly painted & the only one in the building with private, exterior access, offering a rare level of privacy and convenience. Step inside to an open-concept living space, bathed in natural light and offering peaceful city views. Relax or entertain with ease, you’re even close enough to watch PSU football games from the comfort of your own home! The kitchen features full-size appliances, granite countertops, and a charming eat-in bar that seamlessly connecting the kitchen and living areas. The recently updated bathroom is fresh, light, and bright, with modern finishes throughout. The well-maintained HOA includes water, sewer, garbage, gas, insurance, and building maintenance, plus recent upgrades like a newer roof and an energy-efficient mini-split heating & cooling system. This condo also offers in-unit washer & dryer, a separate secure storage unit, and easy street parking with a Zone B permit for just $100/year. Perfect for first-time buyers, PSU faculty or students, or anyone seeking a downtown pied-à-terre, this condo is also an excellent option for investors (no rental cap). Don’t miss the opportunity to make this urban gem your own! Seller concessions available towards buyer's closing costs, temporary rate buy down, or HOA dues with acceptable offer!
Listing Provided Courtesy of Chris Suarez, Keller Williams Sunset Corridor
General Information
156742961
Condominium
107
DOM
1
1
580
1951
Multnomah
R603089
Ainsworth 9/10
West Sylvan
Lincoln
Residential
Condominium
CARDINELL VIEW LOFTS CONDOMINIUM, LOT 102
Listing Provided Courtesy of Chris Suarez, Keller Williams Sunset Corridor
Krishna Realty data last checked: Feb 21, 2026 22:44 | Listing last modified Feb 21, 2026 00:12,
Source:
OPEN HOUSE 1/31 12:30-1:30! Tucked away behind PSU, yet just moments from everything, this one-of-a-kind condo offers the perfect blend of urban convenience and quiet comfort. Enjoy easy access to the PSU Farmers Market, the Cultural District, downtown, freeways, the street car, an abundance of restaurants and shops all within walking distance. This unique unit is freshly painted & the only one in the building with private, exterior access, offering a rare level of privacy and convenience. Step inside to an open-concept living space, bathed in natural light and offering peaceful city views. Relax or entertain with ease, you’re even close enough to watch PSU football games from the comfort of your own home! The kitchen features full-size appliances, granite countertops, and a charming eat-in bar that seamlessly connecting the kitchen and living areas. The recently updated bathroom is fresh, light, and bright, with modern finishes throughout. The well-maintained HOA includes water, sewer, garbage, gas, insurance, and building maintenance, plus recent upgrades like a newer roof and an energy-efficient mini-split heating & cooling system. This condo also offers in-unit washer & dryer, a separate secure storage unit, and easy street parking with a Zone B permit for just $100/year. Perfect for first-time buyers, PSU faculty or students, or anyone seeking a downtown pied-à-terre, this condo is also an excellent option for investors (no rental cap). Don’t miss the opportunity to make this urban gem your own! Seller concessions available towards buyer's closing costs, temporary rate buy down, or HOA dues with acceptable offer!